Bildegalleri

Velkommen til fantastiske Engerdal, Sømådalen og denne trivelige fritidseiendommen i Gloføklia øst 16! Eiendommen ligger fint i terrenget, med utsikt mot innsjø, skog og mark.
SØMÅDALEN - ENGERDAL
Trivelig fritidsbolig med 3 sov, med turområder og skiløyper rett ved. Kort vei til Femunden, dagligvare og turistsenter
Prisantydning1 400 000 kr
- Omkostninger
- 40 150 kr
- Totalpris
- 1 440 150 kr
- Kommunale avg.
- 4 354 kr per år
- Formuesverdi
- 242 550 kr
Pris på lån: fra 6 030 kr/mnd
Eff.rente 6,19 %. 840 000 o/20 år. Kostnad: 607 200 kr. Totalt 1 447 200 kr.
LånekalkulatorDenne annonsen har fått ekstra effekt fra Aktiv Treff
Nøkkelinfo
- Beliggenhet
- På fjellet
- Boligtype
- Hytte
- Eieform
- Eier (Selveier)
- Internt bruksareal
- 79 m² (BRA-i)
- Bruksareal
- 82 m²
- Eksternt bruksareal
- 3 m² (BRA-e)
- Balkong/Terrasse
- 36 m² (TBA)
- Tomteareal
- 1 000 m² (festet)
- Festeavgift
- 3 175 kr
- Byggeår
- 1991
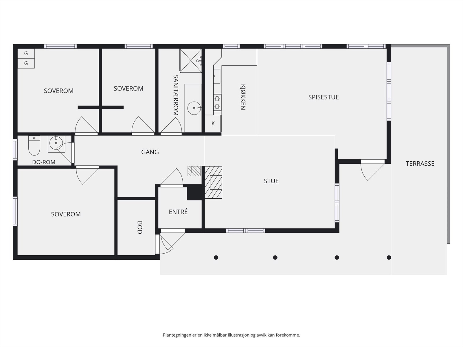
- Soverom
- 3
- Rom
- 4
- Energimerking
- F - Oransje
Fasiliteter
Innlagt vann
Balkong/Terrasse
Barnevennlig
Bilvei frem
Peis/Ildsted
Rolig
Utsikt
Fiskemulighet
Innlagt strøm
Turterreng
Visning
søndag, 14. desember
12:30 – 13:00
Ved annonsert visning er det viktig at du melder deg på visningen ved å bruke visningspåmeldingsknappen eller kontakter megler. Annonserte visninger hvor det ikke er noen påmeldte innen kl. 16.00 dagen før visningsdagen vil ikke bli avholdt.
For visninger utover dette, ta direkte kontakt med megler.
Husk å lese komplett salgsoppgave før visning. Bestill komplett, utskriftsvennlig salgsoppgave.
VisningspåmeldingOm boligen
Velkommen til fantastiske Engerdal, Sømådalen og denne trivelige fritidseiendommen i Gloføklia øst 16!
Eiendommen ligger fint i terrenget, med utsikt mot innsjø, skog og mark! Området som ligger ved Langsjøen byr på flotte turmuligheter med nærhet til flere toppturmål, nydelige friluftsområder og langrennsløyper. Her kan du nyte roen og den friske fjellufta, samtidig som du har enkel tilgang til dagligvarehandel. 1 km fra eiendommen ligger Johnsgård turistsenter, som siden 1968 har tatt imot friluftsglade og aktive turister og gjester hele året!
Til Femunden og Buvika er det ca. 11,5 km, og her kan du i sommerhalvåret gå ombord på ærverdige "MS Fæmund II" for å oppleve et minicruise på Norges nest største innsjø, eller benytte båtturen som din innfallsport til Femundsmarka Nasjonalpark
Eiendommen ligger fint i terrenget, med utsikt mot innsjø, skog og mark! Området som ligger ved Langsjøen byr på flotte turmuligheter med nærhet til flere toppturmål, nydelige friluftsområder og langrennsløyper. Her kan du nyte roen og den friske fjellufta, samtidig som du har enkel tilgang til dagligvarehandel. 1 km fra eiendommen ligger Johnsgård turistsenter, som siden 1968 har tatt imot friluftsglade og aktive turister og gjester hele året!
Til Femunden og Buvika er det ca. 11,5 km, og her kan du i sommerhalvåret gå ombord på ærverdige "MS Fæmund II" for å oppleve et minicruise på Norges nest største innsjø, eller benytte båtturen som din innfallsport til Femundsmarka Nasjonalpark
NB: Knappen for å vise hele beskrivelsen har kun en visuell effekt.
NB: Knappen for å vise hele beskrivelsen har kun en visuell effekt.
Salgsoppgaven beskriver vesentlig og lovpålagt informasjon om eiendommen
Se komplett salgsoppgaveNærområdet
Aktiv Innlandet
Annonseinformasjon
| FINN-kode | 440217277 |
|---|---|
| Sist endret | 05. des. 2025 11:58 |
| Referanse | 1211250326 |
Annonsene kan være mangelfulle i forhold til lovpålagt opplysningsplikt. Før bindende avtale inngås oppfordres interessenter til å innhente komplett informasjon fra meglerforetaket, selger eller utleier.



































