Bildegalleri

Velkommen til et pent og moderne 1/2 part vartikaldelt tomannsbolig fra 2018 med en sentral beliggenhet. Her kan du flytte rett inn og begynne å leve det gode liv med en gang. Foto Efkt (Olafur Kiljan)
Rotnes
Moderne og lys 1/2 part av tomannsbolig fra 2018. God standard og planløsning. Sentralt og barnevennlig. Garasje.
Prisantydning5 800 000 kr
Nøkkelinfo
- Boligtype
- Tomannsbolig
- Eieform
- Eier (Selveier)
- Soverom
- 3
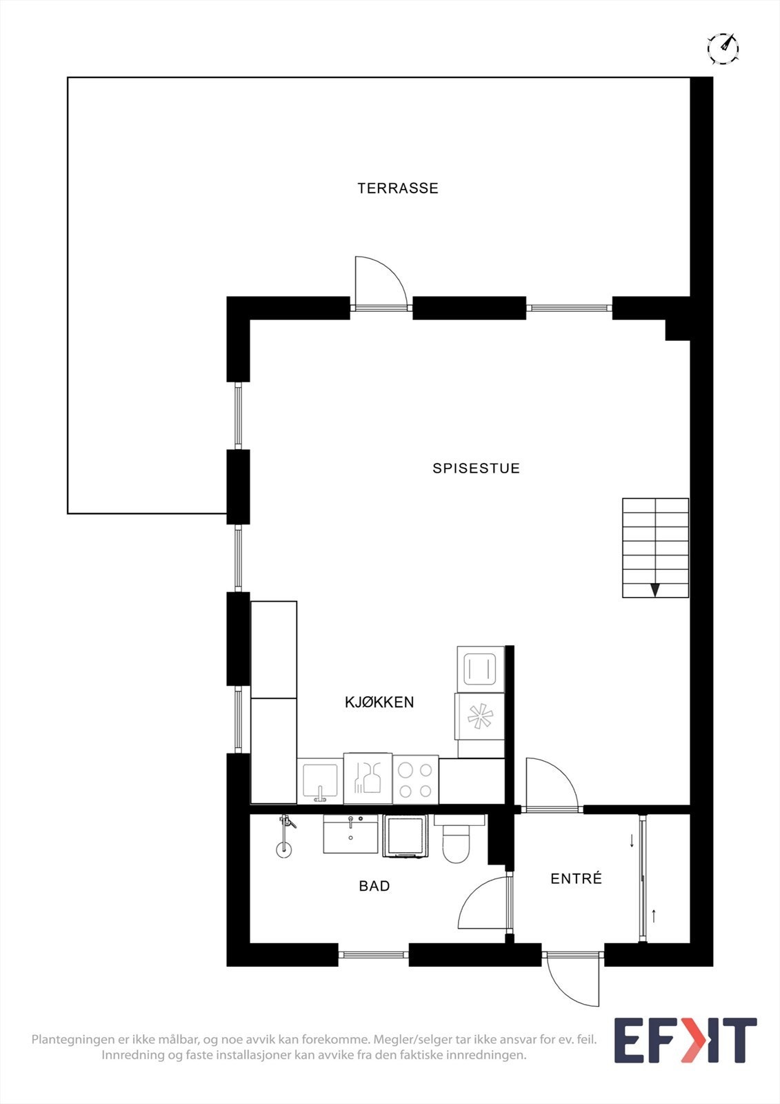
- Internt bruksareal
- 126 m² (BRA-i)
- Bruksareal
- 150 m²
- Eksternt bruksareal
- 24 m² (BRA-e)
- Balkong/Terrasse
- 32 m² (TBA)
- Etasje
- 3
- Byggeår
- 2018
- Energimerking
- C - Gul
- Rom
- 5
- Tomteareal
- 631 m² (eiet)
Fasiliteter
Balkong/Terrasse
Barnevennlig
Bredbåndstilknytning
Garasje/P-plass
Hage
Kjæledyr tillatt
Offentlig vann/kloakk
Peis/Ildsted
Rolig
Sentralt
Turterreng
Balansert ventilasjon
Visning
For visninger utover de annonserte, ta kontakt med megler på telefon 926 36 617.
Husk å melde deg på visning. Dersom det ikke er noen påmeldt dagen før oppsatt visning, kan visningen bli utsatt.
VisningspåmeldingOm boligen
I et rolig, barnevennlig nabolag, tett på natur, skole og tog, finner du denne moderne og lyse halvparten av en tomannsbolig fra 2018. Her er alt lagt til rette for en praktisk og behagelig hverdag, enten du er en voksende familie eller bare ønsker god plass og en gjennomtenkt planløsning. Boligen byr på tre romslige soverom, to stuer med flotte lysforhold og to pene bad, alt utført i god standard med moderne løsninger.
Ute har du en passe stor tomt med plass til lek og avslapning, et trygt og trivelig sted for både store og små. Garasje, med plass til én bil, samt biloppstillingsplass følger også med, og gjør hverdagen litt enklere.
Her er det bare å flytte rett inn. Perfekt for barnefamilien som ønsker kort vei til alt, gangavstand til skoler på alle trinn, marka og toget like ved.
Ute har du en passe stor tomt med plass til lek og avslapning, et trygt og trivelig sted for både store og små. Garasje, med plass til én bil, samt biloppstillingsplass følger også med, og gjør hverdagen litt enklere.
Her er det bare å flytte rett inn. Perfekt for barnefamilien som ønsker kort vei til alt, gangavstand til skoler på alle trinn, marka og toget like ved.
NB: Knappen for å vise hele beskrivelsen har kun en visuell effekt.
NB: Knappen for å vise hele beskrivelsen har kun en visuell effekt.
Salgsoppgaven beskriver vesentlig og lovpålagt informasjon om eiendommen
Se komplett salgsoppgaveNyttige lenker
Nærområdet
EiendomsMegler 1 Nittedal
Vi loser deg trygt gjennom hele boligsalget
Annonseinformasjon
| FINN-kode | 440193925 |
|---|---|
| Sist endret | 15. des. 2025 09:40 |
| Referanse | 1214250206 |
Annonsene kan være mangelfulle i forhold til lovpålagt opplysningsplikt. Før bindende avtale inngås oppfordres interessenter til å innhente komplett informasjon fra meglerforetaket, selger eller utleier.



















































