Bildegalleri

Velkommen til Løbergvegen 13 - Presenteres av Stian Løge v/PrivatMegleren Jæren.
Lys og tiltalende rekkehus fra 2023 med praktisk planløsning over to plan, 3 soverom og solrikt uteområde.
Prisantydning3 990 000 kr
Nøkkelinfo
- Boligtype
- Rekkehus
- Eieform
- Eier (Selveier)
- Soverom
- 3
- Internt bruksareal
- 78 m² (BRA-i)
- Bruksareal
- 83 m²
- Eksternt bruksareal
- 5 m² (BRA-e)
- Etasje
- 2
- Byggeår
- 2023
- Energimerking
- C - Gul
- Tomteareal
- 122 m² (eiet)
Fasiliteter
Balkong/Terrasse
Moderne
Om boligen
Velkommen til Løbergvegen 13!
Kort fortalt:
- Lys og tiltalende rekkehus fra 2023 med praktisk planløsning over to plan
- Det er tre soverom, hvorav to av soverommene er plassert i boligens første etasje og et i boligens andre etasje
- Stue og kjøkken i åpen løsning
- Store vindusflater som slipper inn rikelig med naturlig lys
- Utgang til balkong fra kjøkken/stue
- Moderne kjøkken med integrerte hvitevarer
- Flislagt bad med opplegg til vaskemaskin
Innhold:
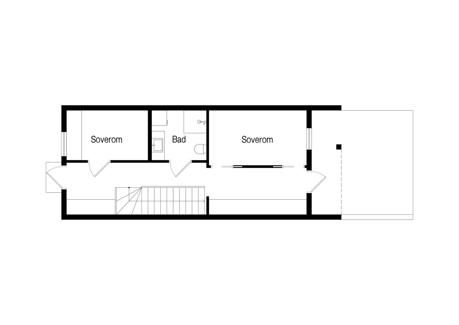
1.etasje: Entré/gang/bod, soverom 1, bad/vaskerom og soverom 2.
2.etasje: Stue/kjøkken, soverom og bod/teknisk rom.
Annet: Utvendig bod.
Kort fortalt:
- Lys og tiltalende rekkehus fra 2023 med praktisk planløsning over to plan
- Det er tre soverom, hvorav to av soverommene er plassert i boligens første etasje og et i boligens andre etasje
- Stue og kjøkken i åpen løsning
- Store vindusflater som slipper inn rikelig med naturlig lys
- Utgang til balkong fra kjøkken/stue
- Moderne kjøkken med integrerte hvitevarer
- Flislagt bad med opplegg til vaskemaskin
Innhold:
1.etasje: Entré/gang/bod, soverom 1, bad/vaskerom og soverom 2.
2.etasje: Stue/kjøkken, soverom og bod/teknisk rom.
Annet: Utvendig bod.
NB: Knappen for å vise hele beskrivelsen har kun en visuell effekt.
NB: Knappen for å vise hele beskrivelsen har kun en visuell effekt.
Salgsoppgaven beskriver vesentlig og lovpålagt informasjon om eiendommen
Se komplett salgsoppgaveNyttige lenker
Nærområdet

Privatmegleren Jæren
Kun det beste på dine vegne
Annonseinformasjon
| FINN-kode | 440183203 |
|---|---|
| Sist endret | 27. jan. 2026 05:06 |
| Referanse | 310251009 |
Annonsene kan være mangelfulle i forhold til lovpålagt opplysningsplikt. Før bindende avtale inngås oppfordres interessenter til å innhente komplett informasjon fra meglerforetaket, selger eller utleier.


























