Bildegalleri

Slemdal
Innholdsrik 1/2-part tomannsbolig | Solrikt og skjermet | 3 p-plasser | Barnevennlig | Kjeller m/egen inngang
Prisantydning13 000 000 kr
Nøkkelinfo
- Boligtype
- Tomannsbolig
- Eieform
- Eier (Selveier)
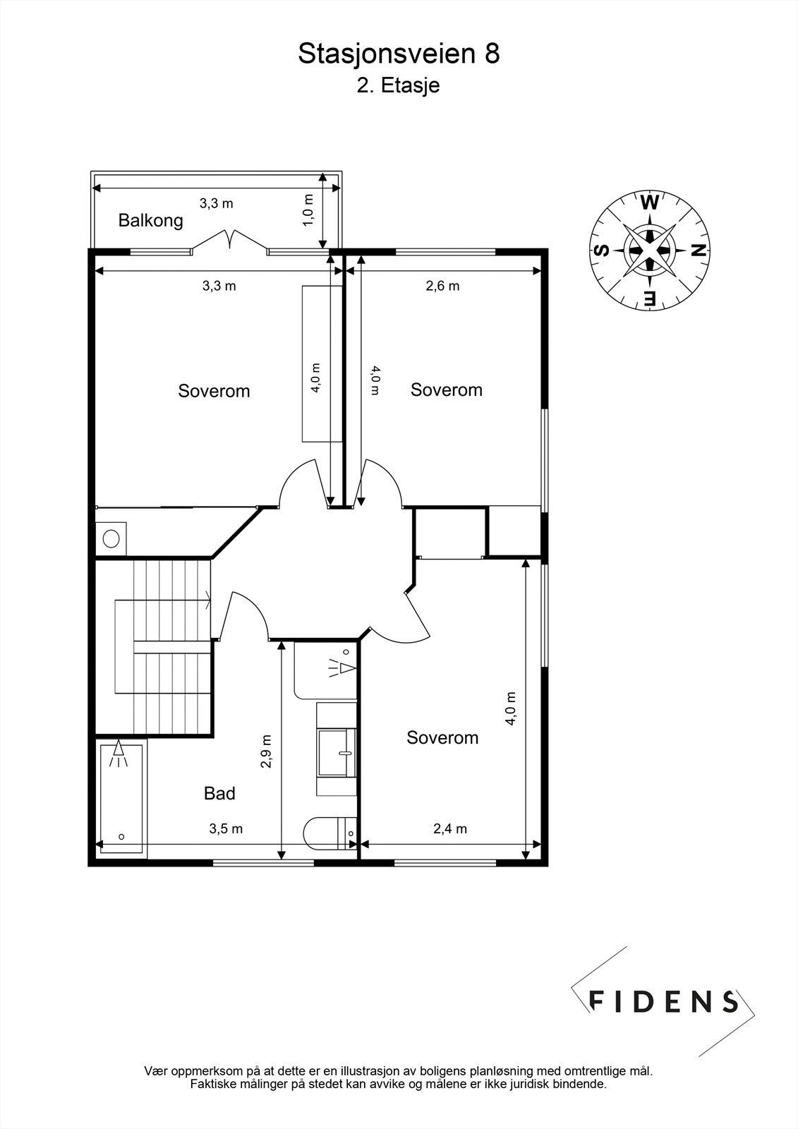
- Soverom
- 3
- Internt bruksareal
- 154 m² (BRA-i)
- Bruksareal
- 154 m²
- Balkong/Terrasse
- 3 m² (TBA)
- Etasje
- 3
- Byggeår
- 2005
- Energimerking
- C - Gul
- Rom
- 4
- Tomteareal
- 1 485 m² (eiet)
Fasiliteter
Balkong/Terrasse
Barnevennlig
Garasje/P-plass
Hage
Kjæledyr tillatt
Offentlig vann/kloakk
Parkett
Peis/Ildsted
Rolig
Sentralt
Turterreng
Lademulighet
Om boligen
Velkommen til Stasjonsveien 8B - familievennlig halvpart av tomannsbolig beliggende i veletablert boligområde på Slemdal!
Boligen går over to plan og kjeller, og har en praktisk planløsning. Boligen oppleves lys og luftig med gjennomgående gode vindusflater som slipper inn rikelig med dagslys. Eiendommen har et flott, sydvestvendt hageområde som er pent opparbeidet og beplantet, og byr på meget gode solforhold. Tomten er helt inngjerdet og det er satt opp levegg mot nabo, som gjør området skjermet og privat. Det er også bygget trapp ned fra hagen og til Bjørnveien.
Verdt å nevne:
- 3 p-plasser
- Meget familievennlig
- Kjeller m/ egen inngang
- 3 soverom, 2 bad
- Godt med lagringsplass
Beliggenheten er et eldorado for barnefamilier som ønsker å bo sentralt!
Boligen går over to plan og kjeller, og har en praktisk planløsning. Boligen oppleves lys og luftig med gjennomgående gode vindusflater som slipper inn rikelig med dagslys. Eiendommen har et flott, sydvestvendt hageområde som er pent opparbeidet og beplantet, og byr på meget gode solforhold. Tomten er helt inngjerdet og det er satt opp levegg mot nabo, som gjør området skjermet og privat. Det er også bygget trapp ned fra hagen og til Bjørnveien.
Verdt å nevne:
- 3 p-plasser
- Meget familievennlig
- Kjeller m/ egen inngang
- 3 soverom, 2 bad
- Godt med lagringsplass
Beliggenheten er et eldorado for barnefamilier som ønsker å bo sentralt!
NB: Knappen for å vise hele beskrivelsen har kun en visuell effekt.
NB: Knappen for å vise hele beskrivelsen har kun en visuell effekt.
Salgsoppgaven beskriver vesentlig og lovpålagt informasjon om eiendommen
Se komplett salgsoppgaveNyttige lenker
Nærområdet
EiendomsMegler 1 Sør-Norge avd Ullevål
En del av Sparebank 1 Sør-Norge
Annonseinformasjon
| FINN-kode | 440180774 |
|---|---|
| Sist endret | 31. jan. 2026 07:46 |
| Referanse | 2802250419 |
Annonsene kan være mangelfulle i forhold til lovpålagt opplysningsplikt. Før bindende avtale inngås oppfordres interessenter til å innhente komplett informasjon fra meglerforetaket, selger eller utleier.








































