Bildegalleri

Eiendomsmegler1 v/Ole-Marius Heggstad presenterer Øvre Hoffland 10 - Enebolig med renoveringsbehov beliggende på sydvendt utsiktstomt! |Foto: JC Eiendomsfoto v/John Colbensen
Innholdsrik enebolig med renoveringsbehov beliggende på flott tomt i barnevennlige omgivelser.
Prisantydning2 600 000 kr
Nøkkelinfo
- Boligtype
- Enebolig
- Eieform
- Eier (Selveier)
- Soverom
- 1
- Primærrom
- 173 m²
- Bruksareal
- 191 m²
- Byggeår
- 1969
- Energimerking
- F - Gul
- Rom
- 7
- Tomteareal
- 736 m² (eiet)
Om boligen
Eiendomsmegler 1 v/Ole-Marius Heggstad presenterer Øvre Hoffland 10 - En innholdsrik enebolig som står ovenfor modernisering og renovering.
Boligen ligger på en fin sydvendt utsiktstomt på Hoffland - Ellingsøya. Her er det gangavstand til skole, barnehage buss og butikk. Kort vei til Ålesund sentrum. Området byr også på flotte og varierte turområder, både ved sjøen og på fjellet.
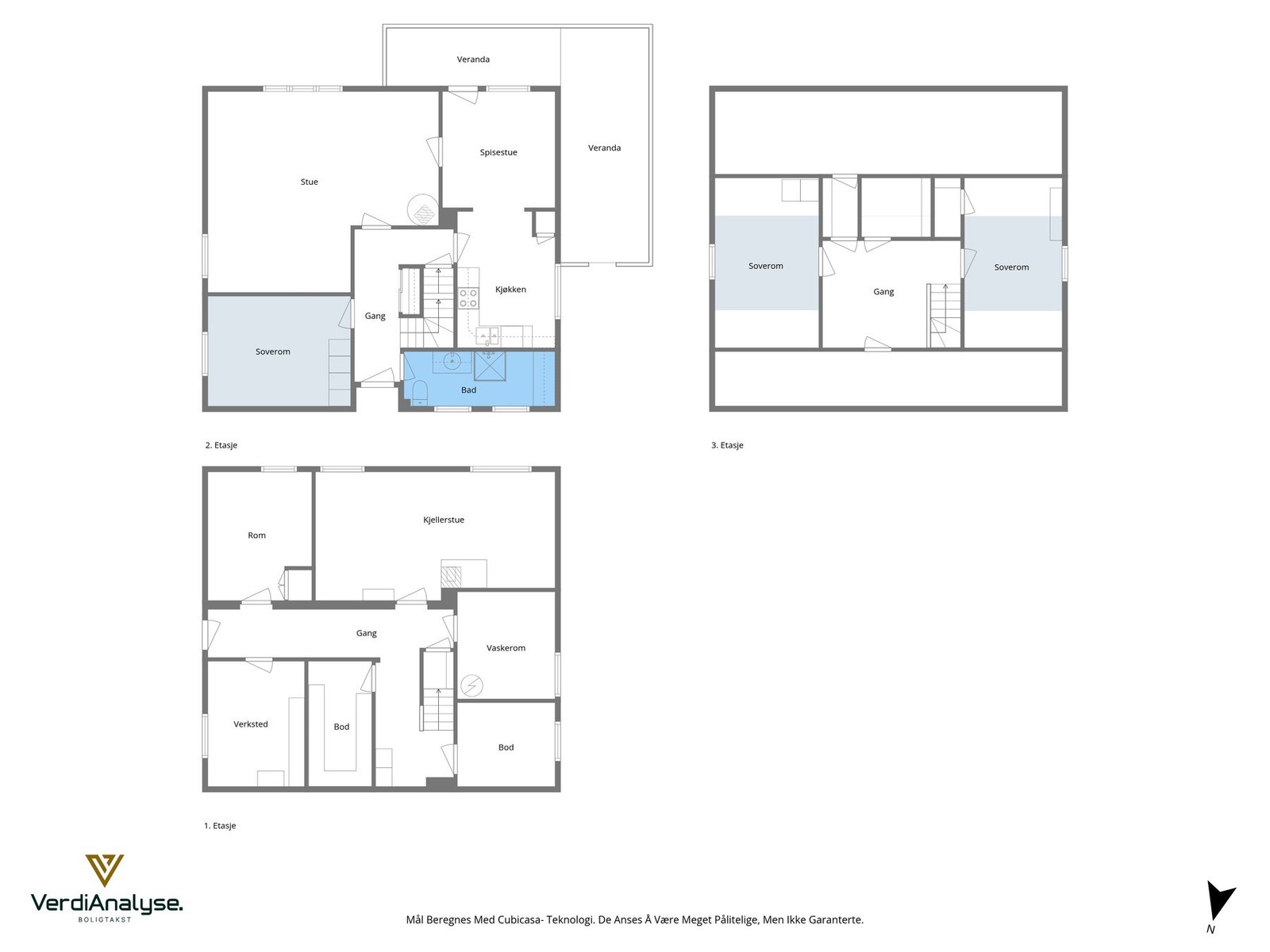
Boligen går over 3 plan og inneholder totalt 1 godkjent soverom, 3 rom som i dag benyttes som soverom, stue, kjøkken, spisestue, kjellerstue, vaskerom og hobbyrom samt diverse bodrom og ganger.
Velkommen til visning!
Boligen ligger på en fin sydvendt utsiktstomt på Hoffland - Ellingsøya. Her er det gangavstand til skole, barnehage buss og butikk. Kort vei til Ålesund sentrum. Området byr også på flotte og varierte turområder, både ved sjøen og på fjellet.
Boligen går over 3 plan og inneholder totalt 1 godkjent soverom, 3 rom som i dag benyttes som soverom, stue, kjøkken, spisestue, kjellerstue, vaskerom og hobbyrom samt diverse bodrom og ganger.
Velkommen til visning!
NB: Knappen for å vise hele beskrivelsen har kun en visuell effekt.
NB: Knappen for å vise hele beskrivelsen har kun en visuell effekt.
Salgsoppgaven beskriver vesentlig og lovpålagt informasjon om eiendommen
Se komplett salgsoppgaveNyttige lenker
Nærområdet
EiendomsMegler 1 Ålesund, Korsegata
Vi loser deg trygt gjennom hele boligsalget
Annonseinformasjon
| FINN-kode | 440074756 |
|---|---|
| Sist endret | 16. des. 2025 05:02 |
| Referanse | 24250074 |
Annonsene kan være mangelfulle i forhold til lovpålagt opplysningsplikt. Før bindende avtale inngås oppfordres interessenter til å innhente komplett informasjon fra meglerforetaket, selger eller utleier.








































