Bildegalleri

FOSNAVÅG/MYKLEBUST - Enebolig i rolige omgivelser, kort vei til skoler, barnehage og sentrum
Prisantydning2 150 000 kr
Nøkkelinfo
- Boligtype
- Enebolig
- Eieform
- Eier (Selveier)
- Soverom
- 4
- Internt bruksareal
- 192 m² (BRA-i)
- Bruksareal
- 192 m²
- Balkong/Terrasse
- 24 m² (TBA)
- Etasje
- 3
- Byggeår
- 1966
- Tomteareal
- 757 m² (eiet)
Fasiliteter
Balkong/Terrasse
Barnevennlig
Hage
Rolig
Sentralt
Visning
torsdag, 05. februar
16:00 – 17:00
Alle våre visninger har påmelding. På denne måten sikrer vi at megler har god oversikt og tid til å imøtekomme alle interessenter på beste måte. Skulle ingen være påmeldt til visningen, vil visningen ikke bli gjennomført. Passer ikke annonsert tidspunkt, ta kontakt så finner vi en løsning.
VisningspåmeldingOm boligen
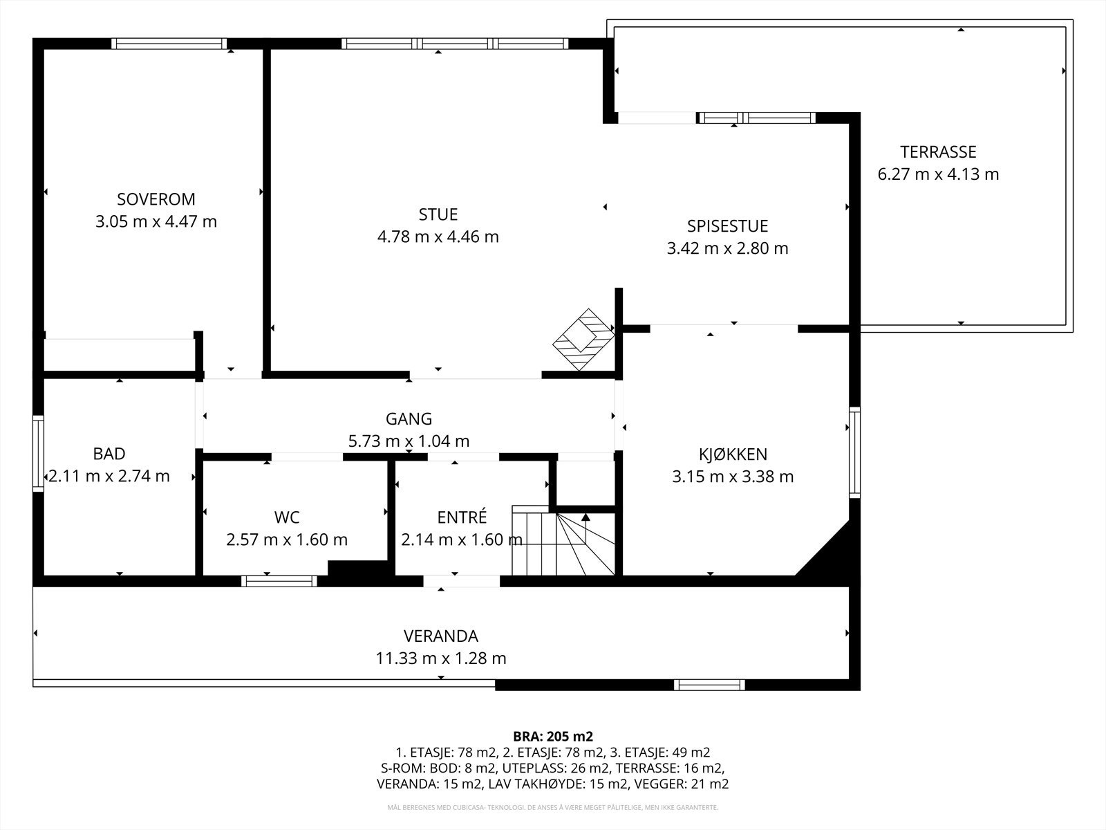
Velkommen til Myklebustvegen 24, en romslig enebolig over tre plan med attraktiv beliggenhet like før Fosnavåg sentrum. Her bor du usjenert til på en høyde, med kort vei til skoler, barnehage, butikker, idrettsanlegg og badeland.
Boligen har en praktisk planløsning. Hovedetasjen inneholder stue, kjøkken, spisestue, soverom, bad/vaskerom og toalett. I andre etasje finner du tre soverom og bod. Kjelleren er i dag innredet som leilighet med kjøkken, stue, bad og to soverom. Etablering av leilighet i kjeller er ikke lovlig etablert, da denne bruksendringen er et søknadspliktig tiltak og må omsøkes i kommunen.
Eiendommen har busker, trær og natursteinsmurer. En flott bolig med mange muligheter, perfekt for deg som ønsker sentral, men rolig beliggenhet i Fosnavåg!
Velkommen til visning!
Boligen har en praktisk planløsning. Hovedetasjen inneholder stue, kjøkken, spisestue, soverom, bad/vaskerom og toalett. I andre etasje finner du tre soverom og bod. Kjelleren er i dag innredet som leilighet med kjøkken, stue, bad og to soverom. Etablering av leilighet i kjeller er ikke lovlig etablert, da denne bruksendringen er et søknadspliktig tiltak og må omsøkes i kommunen.
Eiendommen har busker, trær og natursteinsmurer. En flott bolig med mange muligheter, perfekt for deg som ønsker sentral, men rolig beliggenhet i Fosnavåg!
Velkommen til visning!
NB: Knappen for å vise hele beskrivelsen har kun en visuell effekt.
NB: Knappen for å vise hele beskrivelsen har kun en visuell effekt.
Salgsoppgaven beskriver vesentlig og lovpålagt informasjon om eiendommen
Se komplett salgsoppgaveNyttige lenker
Nærområdet
Legal Eigedomsmekling AS
Eigedomsmekling - Slik det bør være
Annonseinformasjon
| FINN-kode | 440070656 |
|---|---|
| Sist endret | 21. jan. 2026 10:09 |
| Referanse | GAR47.2586 |
Annonsene kan være mangelfulle i forhold til lovpålagt opplysningsplikt. Før bindende avtale inngås oppfordres interessenter til å innhente komplett informasjon fra meglerforetaket, selger eller utleier.






























