Bildegalleri

Line Jorung v/EIE eiendomsmegling har gleden av å presentere Tomtervegen 2! Foto: Jørgen Sørebø - Digit Media
Innholdsrik enebolig over to plan med hybel | 5 soverom | Solrik hage | Beliggende i et etablert og barnevennlig område!
Prisantydning3 490 000 kr
Nøkkelinfo
- Boligtype
- Enebolig
- Eieform
- Eier (Selveier)
- Soverom
- 5
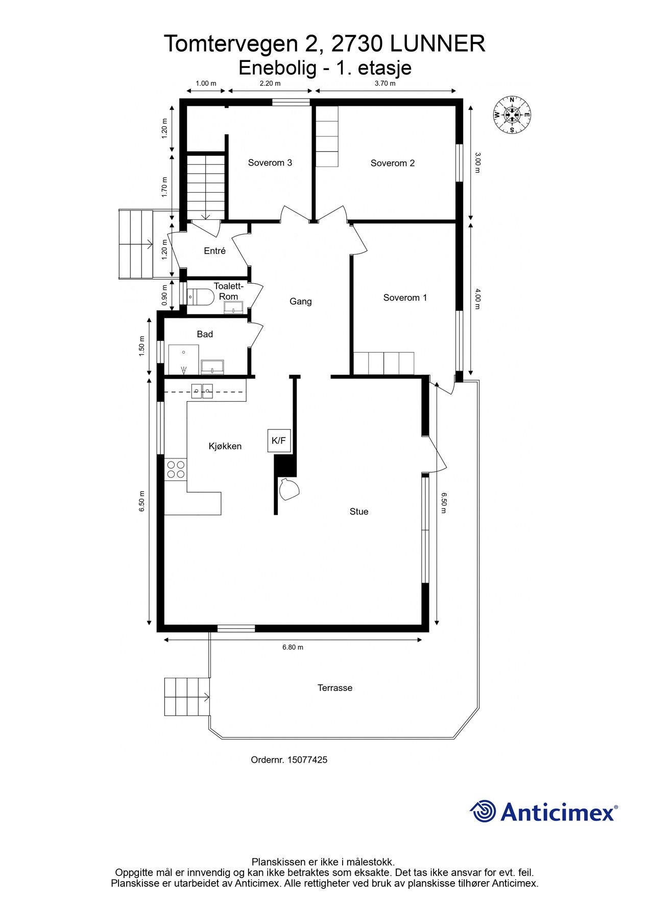
- Internt bruksareal
- 187 m² (BRA-i)
- Bruksareal
- 187 m²
- Balkong/Terrasse
- 30 m² (TBA)
- Etasje
- 2
- Byggeår
- 1975
- Energimerking
- F - Gul
- Rom
- 6
- Tomteareal
- 711 m² (eiet)
Fasiliteter
Barnevennlig
Balkong/Terrasse
Garasje/P-plass
Offentlig vann/kloakk
Ingen gjenboere
Peis/Ildsted
Turterreng
Aircondition
Sentralt
Rolig
Om boligen
Line Jorung v/EIE eiendomsmegling har gleden av å presentere Tomtervegen 2!
En svært innholdsrik og gjennomgående oppusset enebolig over to etasjer - perfekt for familien som ønsker god plass, fleksible løsninger og kort vei til alt man trenger i hverdagen. Boligen ligger på en solrik og pent opparbeidet tomt på hele 711 kvm, og har i tillegg en romslig hybeldel i underetasjen som åpner for både utleie, generasjonsbolig eller ekstra boareal for den som trenger det.
Høydepunkter:
En svært innholdsrik og gjennomgående oppusset enebolig over to etasjer - perfekt for familien som ønsker god plass, fleksible løsninger og kort vei til alt man trenger i hverdagen. Boligen ligger på en solrik og pent opparbeidet tomt på hele 711 kvm, og har i tillegg en romslig hybeldel i underetasjen som åpner for både utleie, generasjonsbolig eller ekstra boareal for den som trenger det.
Høydepunkter:
- Stor og innholdsrik enebolig med hele 5 soverom.
- Hybeldel i underetasjen - perfekt for utleie, gjester eller fleksibelt bruk.
- Solrik og romslig tomt på 711 kvm med hage.
- Betydelig modernisert i 2024/2025.
- Gode parkeringsmuligheter på egen tomt.
- Barnevennlig og rolig beliggenhet i veletablert område.
- Kort 3 minutters spasertur til sentrum, butikk, restaurant og Lunner stasjon.
NB: Knappen for å vise hele beskrivelsen har kun en visuell effekt.
NB: Knappen for å vise hele beskrivelsen har kun en visuell effekt.
Salgsoppgaven beskriver vesentlig og lovpålagt informasjon om eiendommen
Se komplett salgsoppgaveNyttige lenker
Nærområdet
EIE eiendomsmegling Lørenskog
Annonseinformasjon
| FINN-kode | 440023544 |
|---|---|
| Sist endret | 15. des. 2025 05:05 |
| Referanse | 32250295 |
Annonsene kan være mangelfulle i forhold til lovpålagt opplysningsplikt. Før bindende avtale inngås oppfordres interessenter til å innhente komplett informasjon fra meglerforetaket, selger eller utleier.














































