Bildegalleri

Notar ved Tobias Skodje har gleden av å presentere Friishøgda 8.
VALLE
Pen og moderne enebolig, med alt på ett plan | Balansert ventilasjonssystem | Stor terrasse | Dobbel carport
Prisantydning4 490 000 kr
Nøkkelinfo
- Boligtype
- Enebolig
- Eieform
- Eier (Selveier)
- Soverom
- 3
- Internt bruksareal
- 102 m² (BRA-i)
- Bruksareal
- 113 m²
- Eksternt bruksareal
- 11 m² (BRA-e)
- Balkong/Terrasse
- 122 m² (TBA)
- Etasje
- 1
- Byggeår
- 2017
- Energimerking
- C - Rød
- Rom
- 4
- Tomteareal
- 574 m² (eiet)
Fasiliteter
Balkong/Terrasse
Barnevennlig
Garasje/P-plass
Kjæledyr tillatt
Offentlig vann/kloakk
Parkett
Peis/Ildsted
Rolig
Sentralt
Balansert ventilasjon
Om boligen
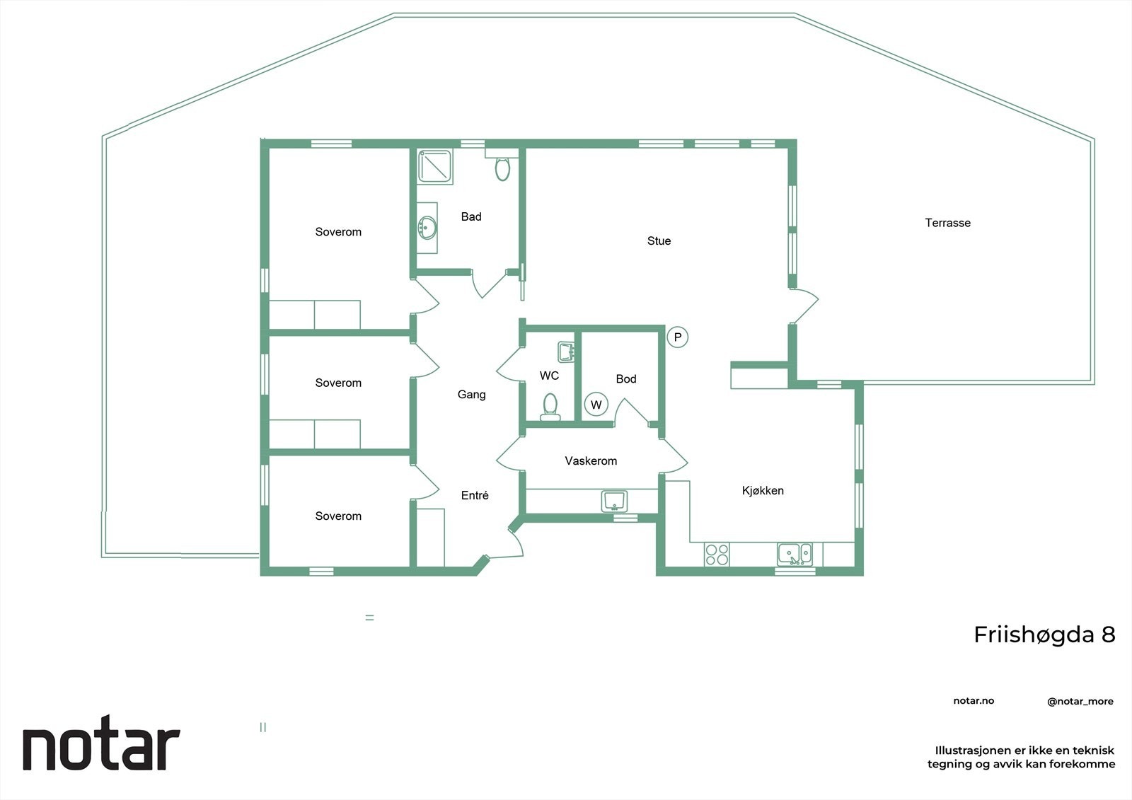
Notar v/Tobias Skodje har gleden av å presentere Friishøgda 8 en moderne og tiltalende enebolig med alle rom samlet på ett plan. Her bor du praktisk med gangavstand til dagligvarebutikk, skole og barnehage.
Eneboligen inneholder: gang, kjøkken, stue, 3 soverom, teknisk rom, vaskerom, bad og toalettrom.
Boligen har moderne fasiliteter som varmekabler, balansert ventilasjon og sentralstøvsuger. Den romslige terrassen vender mot øst, nord og vest, og byr på gode solforhold gjennom dagen. Det er rikelig med oppbevaringsplass i utvendig sportsbod.
Parkering løses enkelt med dobbel carport, og sameiets tomt tilbyr i tillegg gode parkeringsmuligheter.
Her får du en bolig med praktisk planløsning, som gjør hverdagen både enkel og funksjonell.
Velkommen til visning!
Eneboligen inneholder: gang, kjøkken, stue, 3 soverom, teknisk rom, vaskerom, bad og toalettrom.
Boligen har moderne fasiliteter som varmekabler, balansert ventilasjon og sentralstøvsuger. Den romslige terrassen vender mot øst, nord og vest, og byr på gode solforhold gjennom dagen. Det er rikelig med oppbevaringsplass i utvendig sportsbod.
Parkering løses enkelt med dobbel carport, og sameiets tomt tilbyr i tillegg gode parkeringsmuligheter.
Her får du en bolig med praktisk planløsning, som gjør hverdagen både enkel og funksjonell.
Velkommen til visning!
NB: Knappen for å vise hele beskrivelsen har kun en visuell effekt.
NB: Knappen for å vise hele beskrivelsen har kun en visuell effekt.
Salgsoppgaven beskriver vesentlig og lovpålagt informasjon om eiendommen
Se komplett salgsoppgaveNærområdet
Notar Moa
God magefølelse
Annonseinformasjon
| FINN-kode | 439907973 |
|---|---|
| Sist endret | 12. des. 2025 18:54 |
| Referanse | NO2.25241 |
Annonsene kan være mangelfulle i forhold til lovpålagt opplysningsplikt. Før bindende avtale inngås oppfordres interessenter til å innhente komplett informasjon fra meglerforetaket, selger eller utleier.






















































