Bildegalleri

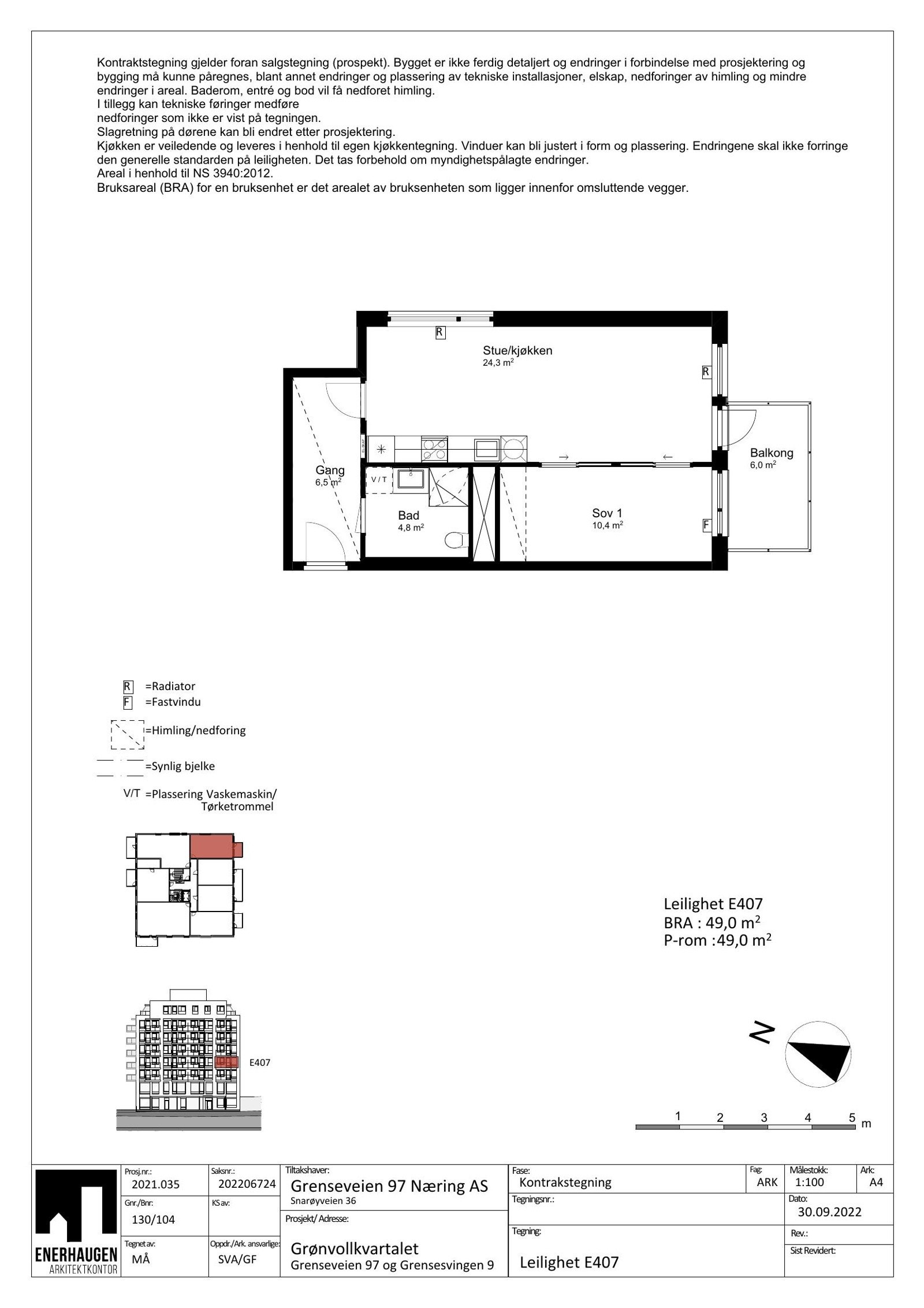
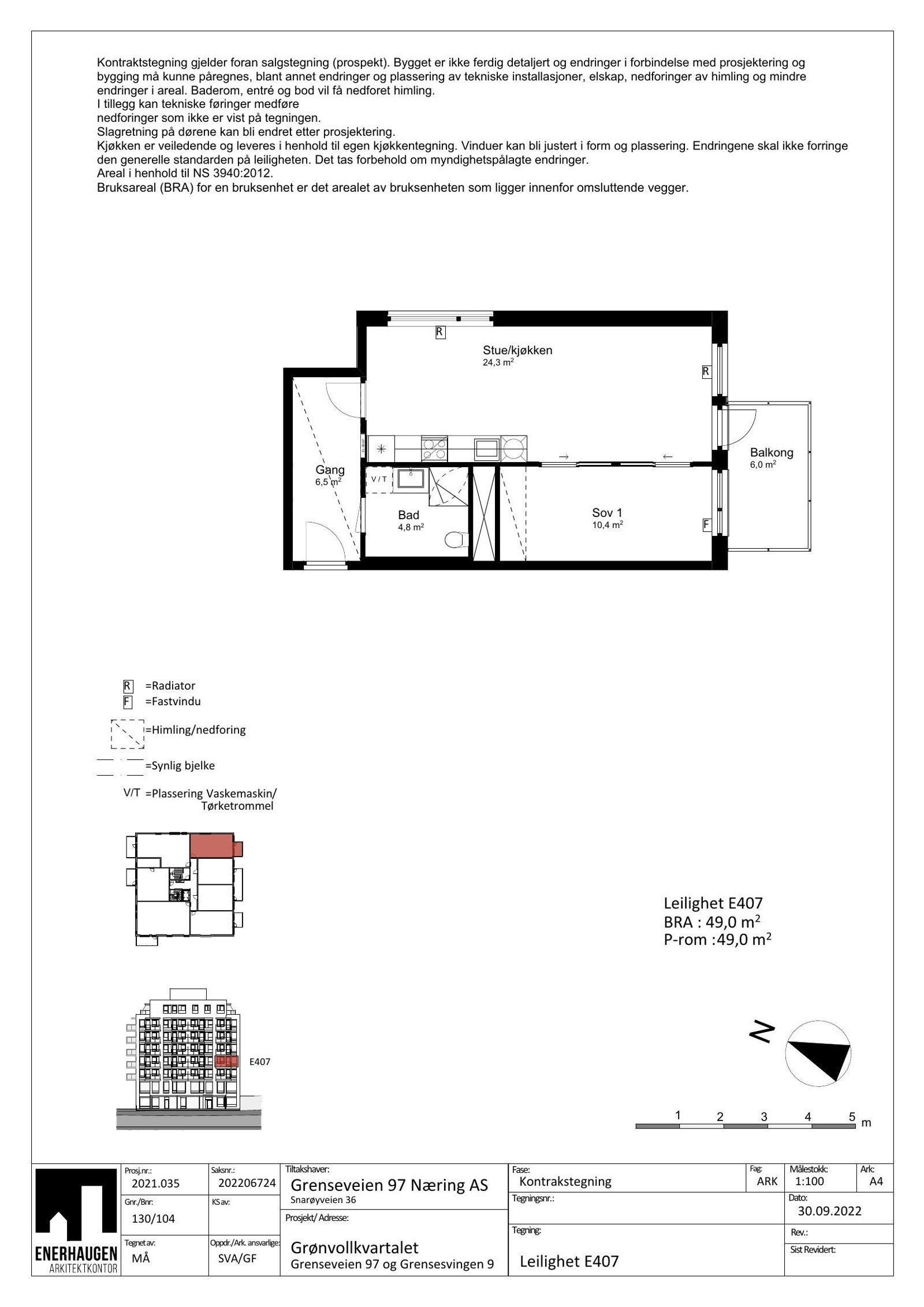
Leilighet E407
Grønvollkvartalet
Lys & stilren 2-R hjørneleilighet under oppføring | Balkong på 6 kvm | Tilbaketrukket beliggenhet | Est ferdig Q3 2026
Prisantydning5 500 000 kr
Nøkkelinfo
- Boligtype
- Leilighet
- Eieform
- Eier (Selveier)
- Soverom
- 1
- Primærrom
- 49 m²
- Bruksareal
- 49 m²
- Etasje
- 4
- Byggeår
- 2026
- Rom
- 2
- Tomteareal
- 15 000 m² (eiet)
Fasiliteter
Balkong/Terrasse
Parkett
Heis
Barnevennlig
Offentlig vann/kloakk
Vaktmester-/vektertjeneste
Bredbåndstilknytning
Visning
Boligen er ikke ferdigstilt og det er således ikke mulighet for å besiktige denne direkte.
VisningspåmeldingOm boligen
Flott 2-roms hjørneleilighet i Grønvollskvartalet. Her bygges en lekker selveierleilighet med sentral beliggenhet og kort avstand til alt. Leiligheten får en åpen stue- og kjøkkenløsning med fine møbleringsmuligheter, romslig soverom og delikat baderom med opplegg for vaskemaskin. Fra stuen er det utgang til balkong på 6 kvm.
Salg av en kontraktsposisjon for leilighet E407 i Grønvollskvartalet.
- Helt ny 2-roms under oppføring
- Hjørnebeliggenhet i byggets 4.etasje
- God planløsning med store vindusflater
- 1-stavs eikeparkett på gulv
- Balansert ventilasjon
- 5 års nybygg garanti
- Kjellerbod
- Heisadkomst
- Flotte uteområder
- Felles takterrasse
NB: Knappen for å vise hele beskrivelsen har kun en visuell effekt.
NB: Knappen for å vise hele beskrivelsen har kun en visuell effekt.
Salgsoppgaven beskriver vesentlig og lovpålagt informasjon om eiendommen
Se komplett salgsoppgaveNyttige lenker
Nærområdet
Schala & Partners Carl Berner
Verdien av lokalkunnskap
Annonseinformasjon
| FINN-kode | 439902255 |
|---|---|
| Sist endret | 05. des. 2025 03:18 |
| Referanse | 17250151 |
Annonsene kan være mangelfulle i forhold til lovpålagt opplysningsplikt. Før bindende avtale inngås oppfordres interessenter til å innhente komplett informasjon fra meglerforetaket, selger eller utleier.







