Bildegalleri

Eiendomsmegler1 Vestby/Son v/ Erik Nickelsen har den glede av å presentere Bentsebingen 22.
Berg
Attraktiv familiebolig | 4 sover., 2 stuer, 2 bad, vaskerrom, grovkjøk. | Supre solforhold | 2 terrasser
Prisantydning7 850 000 kr
Nøkkelinfo
- Boligtype
- Enebolig
- Eieform
- Eier (Selveier)
- Soverom
- 4
- Internt bruksareal
- 173 m² (BRA-i)
- Bruksareal
- 173 m²
- Etasje
- 2
- Byggeår
- 2024
- Energimerking
- Rom
- 6
- Tomteareal
- 841 m² (eiet)
Fasiliteter
Balkong/Terrasse
Barnevennlig
Garasje/P-plass
Hage
Rolig
Turterreng
Balansert ventilasjon
Visning
tirsdag, 24. mars
16:30 – 17:30
Våre visninger har påmelding. Dette gjør vi for å kunne yte bedre service for våre kunder. Verdifullt for boligkjøper og for oss. Vi anbefaler at salgsoppgaven lastes ned digitalt før visning, og ring oss gjerne på forhånd for spørsmål om boligen. Passer ikke angitt tidspunkt, ta kontakt så finner vi en løsning. Skulle det mot formodning ikke være påmeldte til angitt visningstidspunkt vil ikke visning bli gjennomført.
VisningspåmeldingOm boligen
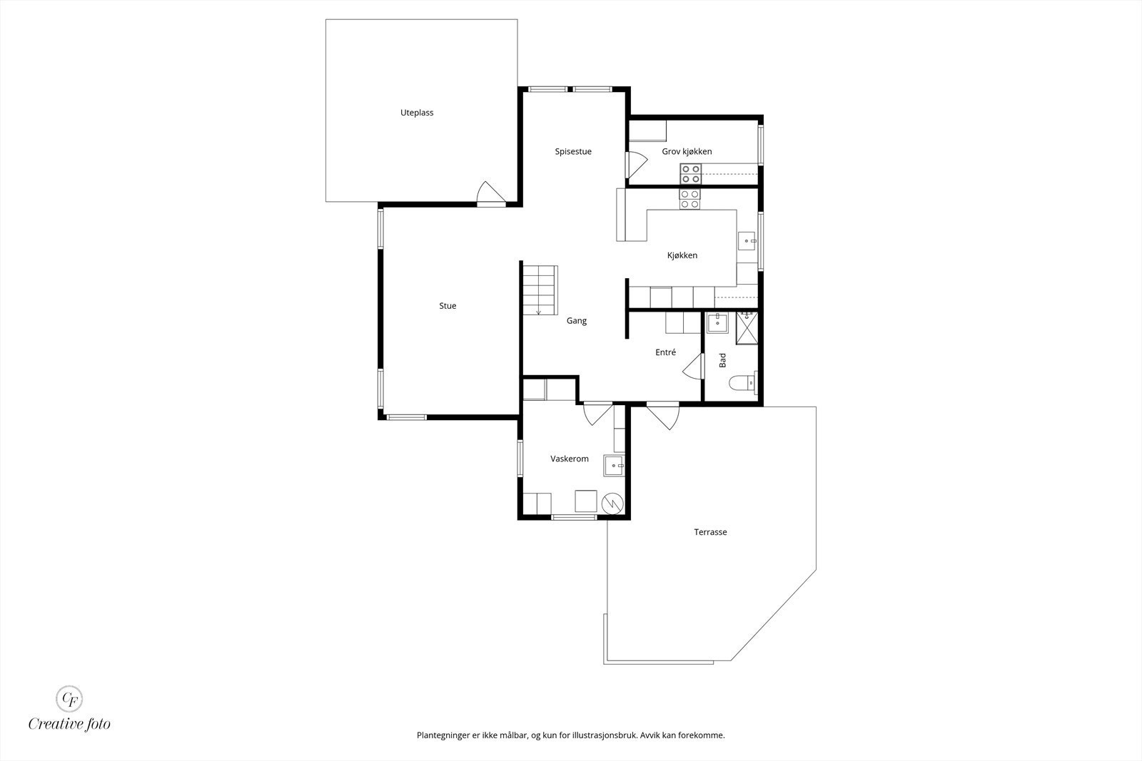
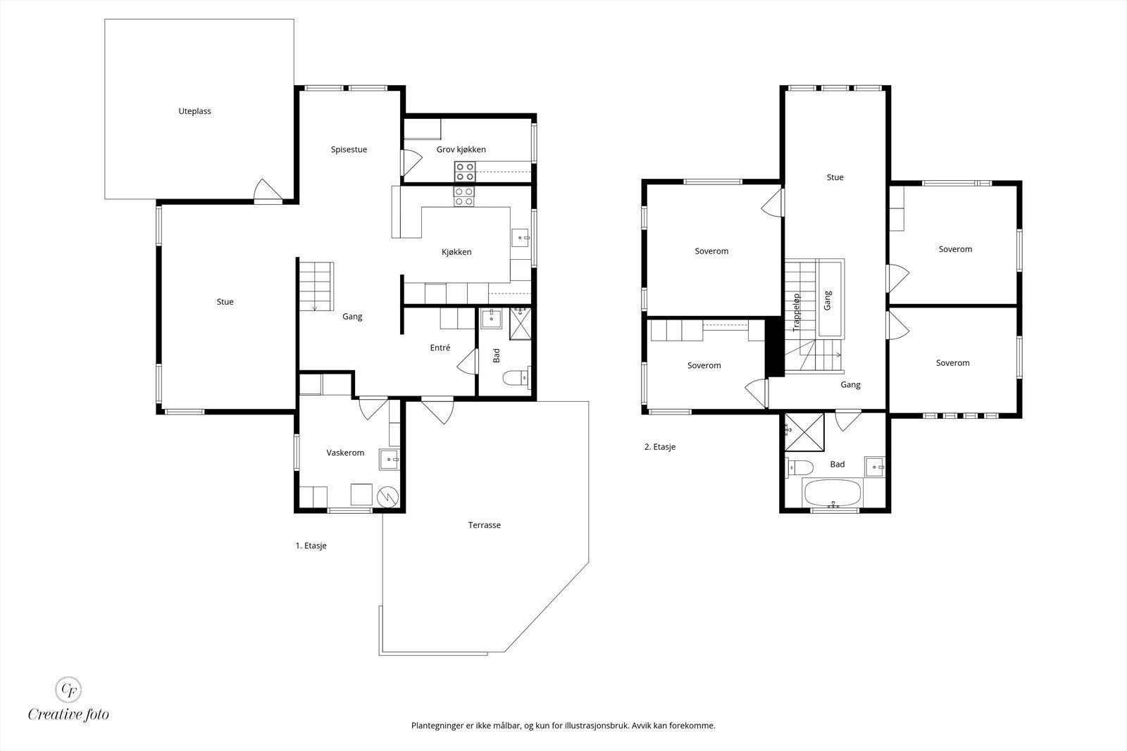
Nyere, (2024) lekker enebolig beliggende på Berg, mellom Vestby og Hvitsten. Landlige og naturskjønne omgivelser. Attraktiv, stor flat tomt med gode solforhold.
- Attraktiv og familievennlig enebolig med to fulle plan.
- Ny bolig oppført i 2024 med god og moderne standard. TEK 17 kvalitet.
- Boligen kvalifiserer til "grønt" boliglån.
- Inneh. bl.a. 4 soverom, 2 stuer, 2 bad/wc, vaskerom, m.m.
- Funksjonelt kjøkken med åpen løsning mot stor spiseplass. Eget grovkjøkken.
- Balansert ventilasjon med varmegjenvinner.
- 2 markterrasser.
- Barnevennlig, lettstelt og flat tomt. Stor shinglet gårdsplass.
- Mulighet for dobbelt-garasje.
- Solrikt og usjenert.
- Velkommen til visning!
NB: Knappen for å vise hele beskrivelsen har kun en visuell effekt.
NB: Knappen for å vise hele beskrivelsen har kun en visuell effekt.
Salgsoppgaven beskriver vesentlig og lovpålagt informasjon om eiendommen
Se komplett salgsoppgaveNyttige lenker
Nærområdet
EiendomsMegler 1 Vestby/Son
Vi loser deg trygt gjennom hele boligsalget
Annonseinformasjon
| FINN-kode | 439887683 |
|---|---|
| Sist endret | 19. mars 2026 10:08 |
| Referanse | 5120250155 |
Annonsene kan være mangelfulle i forhold til lovpålagt opplysningsplikt. Før bindende avtale inngås oppfordres interessenter til å innhente komplett informasjon fra meglerforetaket, selger eller utleier.






















































