Bildegalleri

Velkommen til Bingenveien 330. Bilder tatt av Foto etcetera.
Trøgstad - Landbrukseiendom med 7 bygninger. Bl.a enebolig og våningshus/institusjonsbygg.
Prisantydning7 990 000 kr
Nøkkelinfo
- Boligtype
- Gårdsbruk/Småbruk
- Eieform
- Eier (Selveier)
- Soverom
- 9
- Internt bruksareal
- 419 m² (BRA-i)
- Bruksareal
- 441 m²
- Eksternt bruksareal
- 22 m² (BRA-e)
- Balkong/Terrasse
- 54 m² (TBA)
- Tomteareal
- 408 000 m² (eiet)
Om boligen
Vi har gleden av å presentere denne eiendommen Trøgstad.
Det er 7 bygg på eiendommen.
Våningshus/institusjonsbygg:
Innhold:
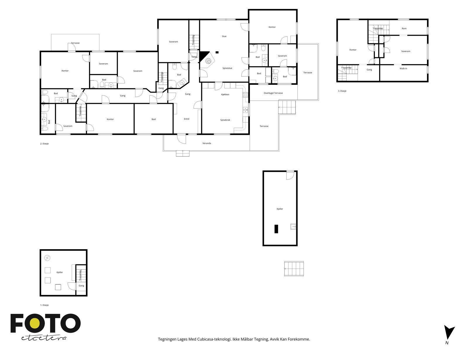
1. etg.: Entré, gang, kjøkken, annet, 3 stuer, 5 soverom, 6 bad, kontor, 3 trapperom, lagerrom.
2. etg. :Kontor, 2 trapperom, 2 lagerrom, soverom.
Kjeller: Fyrrom.
Enebolig:
1. etg.:Gang, 3 soverom, entré, bad, stue, kjøkken.
Kjeller: Fyrrom, lagerrom.
Låve: Oppf. 1942, tilbygg fjøs i 1952. Innhold:Fjøs med deler av kuinnredning, tre grisebinger i fjøs. Underlåve og tre staller. Kjørebro. (Bta 370 kvm.)
Stabbur: Oppført 1927. 1 og 2. etg. med lagerrrom. (Bta 54 kvm.)
Verksted: Oppført 1987, tilbygg i 1995. Innhold: Verksted og redskapsrom. Del av verksted er isolert (Bta 243 kvm.)
Vedskjul: Oppført 1950. (Bta 31 kvm.)
Moelvenbrakke: Oppført 1950.(Bta 13 kvm.)
Det er 7 bygg på eiendommen.
Våningshus/institusjonsbygg:
Innhold:
1. etg.: Entré, gang, kjøkken, annet, 3 stuer, 5 soverom, 6 bad, kontor, 3 trapperom, lagerrom.
2. etg. :Kontor, 2 trapperom, 2 lagerrom, soverom.
Kjeller: Fyrrom.
Enebolig:
1. etg.:Gang, 3 soverom, entré, bad, stue, kjøkken.
Kjeller: Fyrrom, lagerrom.
Låve: Oppf. 1942, tilbygg fjøs i 1952. Innhold:Fjøs med deler av kuinnredning, tre grisebinger i fjøs. Underlåve og tre staller. Kjørebro. (Bta 370 kvm.)
Stabbur: Oppført 1927. 1 og 2. etg. med lagerrrom. (Bta 54 kvm.)
Verksted: Oppført 1987, tilbygg i 1995. Innhold: Verksted og redskapsrom. Del av verksted er isolert (Bta 243 kvm.)
Vedskjul: Oppført 1950. (Bta 31 kvm.)
Moelvenbrakke: Oppført 1950.(Bta 13 kvm.)
NB: Knappen for å vise hele beskrivelsen har kun en visuell effekt.
NB: Knappen for å vise hele beskrivelsen har kun en visuell effekt.
Salgsoppgaven beskriver vesentlig og lovpålagt informasjon om eiendommen
Se komplett salgsoppgaveNærområdet
Aktiv Mysen og Rakkestad
Annonseinformasjon
| FINN-kode | 439859832 |
|---|---|
| Sist endret | 12. jan. 2026 08:27 |
| Referanse | 1113250224 |
Annonsene kan være mangelfulle i forhold til lovpålagt opplysningsplikt. Før bindende avtale inngås oppfordres interessenter til å innhente komplett informasjon fra meglerforetaket, selger eller utleier.


















































