Bildegalleri

Ålestranda
Liten perle med storslagen utsikt og solforhold, optimal beliggenhet nær Vesterelven, Byfergen og nye Gressvik torg
Prisantydning3 100 000 kr
Nøkkelinfo
- Boligtype
- Enebolig
- Eieform
- Eier (Selveier)
- Soverom
- 2
- Internt bruksareal
- 73 m² (BRA-i)
- Bruksareal
- 84 m²
- Eksternt bruksareal
- 11 m² (BRA-e)
- Balkong/Terrasse
- 43 m² (TBA)
- Byggeår
- 1900
- Energimerking
- G - Oransje
- Rom
- 3
- Tomteareal
- 534 m² (festet)
- Festeavgift
- 822 kr
Fasiliteter
Barnevennlig
Balkong/Terrasse
Offentlig vann/kloakk
Peis/Ildsted
Utsikt
Rolig
Om boligen
Velkommen til Nordre Fageråsvei 6 presentert av Anne Margrete Jonassen. Denne sjarmerende eneboligen byr på noe helt eget - et lite, unikt hus med en optimal beliggenhet. Her får du utsikt med glimt mot Vesterelven, veranda vendt mot vest med gode solforhold og fantastiske solnedganger, alt omkranset av en frodig hage. Beliggenheten er perfekt for deg som ønsker det beste av to verdener: ro og nærhet til naturen, samtidig som Byfergen tar deg til sentrum på få minutter. Du bor også like ved det splitter nye Gressvik torg, som nå blomstrer med nisjebutikker og trivelige møteplasser.
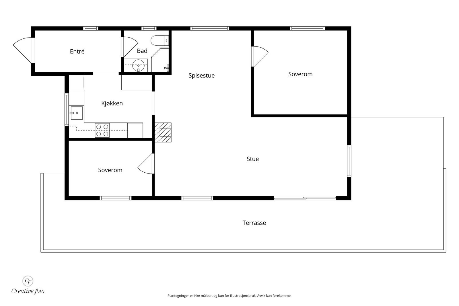
Huset er et sjeldent funn - En liten, enebolig med alt på én flate, full av nostalgi og varme. Planløsningen er gjennomtenkt og praktisk, med en trivelig entré, klassisk kjøkken, og en koselig stue med lun vedovn og inngang til 2 soverom- Et hjem med sjel.
Dette er en enebolig som virkelig må oppleves, en unik blanding av nostalgisk atmosfære og praktisk beliggenhet, supplert av uslåelige solnedganger.
Huset er et sjeldent funn - En liten, enebolig med alt på én flate, full av nostalgi og varme. Planløsningen er gjennomtenkt og praktisk, med en trivelig entré, klassisk kjøkken, og en koselig stue med lun vedovn og inngang til 2 soverom- Et hjem med sjel.
Dette er en enebolig som virkelig må oppleves, en unik blanding av nostalgisk atmosfære og praktisk beliggenhet, supplert av uslåelige solnedganger.
NB: Knappen for å vise hele beskrivelsen har kun en visuell effekt.
NB: Knappen for å vise hele beskrivelsen har kun en visuell effekt.
Salgsoppgaven beskriver vesentlig og lovpålagt informasjon om eiendommen
Se komplett salgsoppgaveNærområdet
Eiendomsmeglerne AS
Erfaring og lokalkunnskap

Anne Margrete Jonassen
Eiendomsmeglerfullmektig / Regionleder Østfold / Partner
Annonseinformasjon
| FINN-kode | 439418159 |
|---|---|
| Sist endret | 09. des. 2025 05:01 |
| Referanse | 202250260 |
Annonsene kan være mangelfulle i forhold til lovpålagt opplysningsplikt. Før bindende avtale inngås oppfordres interessenter til å innhente komplett informasjon fra meglerforetaket, selger eller utleier.































