Bildegalleri

Velkommen til Rugdevegen 25 - Presentert av EiendomsMegler1 ved Mathias Åsvang.
Kattem
Romslig og flott 3-roms rekkehusleilighet over 3-plan på Kattem | Fast p-plass i kjeller | "Alt" inkl. i felleskost
Prisantydning2 490 000 kr
Nøkkelinfo
- Boligtype
- Leilighet
- Eieform
- Andel
- Soverom
- 2
- Internt bruksareal
- 105 m² (BRA-i)
- Bruksareal
- 105 m²
- Balkong/Terrasse
- 44 m² (TBA)
- Etasje
- 2
- Byggeår
- 1975
- Energimerking
- F - Mørkegrønn
- Rom
- 4
- Tomteareal
- 68 952 m² (eiet)
Fasiliteter
Barnevennlig
Balkong/Terrasse
Garasje/P-plass
Kabel-TV
Offentlig vann/kloakk
Ingen gjenboere
Turterreng
Vaktmester-/vektertjeneste
Fellesvaskeri
Sentralt
Bredbåndstilknytning
Moderne
Rolig
Lademulighet
Visning
tirsdag, 16. desember
18:30 – 19:15
Våre visninger har påmelding. Dette gjør vi for å kunne yte bedre service for våre kunder. Verdifullt for boligkjøper og for oss. Vi anbefaler at salgsoppgaven lastes ned digitalt før visning, og ring oss gjerne på forhånd for spørsmål om boligen. Passer ikke angitt tidspunkt, ta kontakt så finner vi en løsning. Skulle det mot formodning ikke være påmeldte til angitt visningstidspunkt vil ikke visning bli gjennomført.
Om boligen
Velkommen til Rugdevegen 25 - Presentert av EiendomsMegler1 ved Mathias Åsvang
Innbydende og flott 3-roms rekkehusleilighet over 3 plan | Fast p-plass i kjeller m/ mulighet for el-billader | "ALT" inkl. i felleskost | Fine uteområder
Denne leiligheten kan by på blant annet:
Innbydende og flott 3-roms rekkehusleilighet over 3 plan | Fast p-plass i kjeller m/ mulighet for el-billader | "ALT" inkl. i felleskost | Fine uteområder
Denne leiligheten kan by på blant annet:
- Praktisk og pen leilighet beliggende fint til i Åsheim borettslag. Gangavstand til skoler, barnehager, dagligvarebutikk og bussholdeplass. Nærhet til Heimdal sentrum og Tiller
- Praktisk planløsning og innholdsrik leilighet over 3-plan
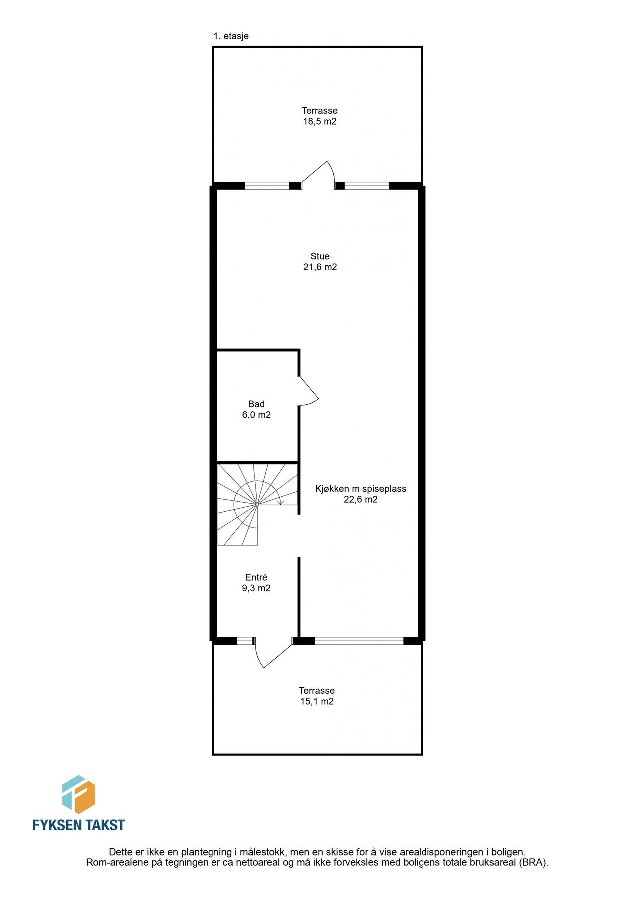
- Romslig stue/kjøkken på 44,2m²
- To flotte terrasser på 18,5 og 15,1m². Her har man gode solforhold, samt lite innsyn fra andre beboere
- Flislagt baderom. Opplegg for vaskemaskin
- Fast p-plass i kjeller medfølger boligen. Tilrettelagt for el-billader
- "ALT" inkludert i felleskostnadene. (varmtvann, oppvarming, kabel-tv/internett, p-plass i kjeller, kommunale avgifter m.m.)
Velkommen til visning - Husk visningspåmelding
NB: Knappen for å vise hele beskrivelsen har kun en visuell effekt.
NB: Knappen for å vise hele beskrivelsen har kun en visuell effekt.
Salgsoppgaven beskriver vesentlig og lovpålagt informasjon om eiendommen
Se komplett salgsoppgaveNærområdet
EiendomsMegler 1 Heimdal
Vi loser deg trygt gjennom hele boligsalget
Annonseinformasjon
| FINN-kode | 439394298 |
|---|---|
| Sist endret | 12. des. 2025 09:00 |
| Referanse | 31250835 |
Annonsene kan være mangelfulle i forhold til lovpålagt opplysningsplikt. Før bindende avtale inngås oppfordres interessenter til å innhente komplett informasjon fra meglerforetaket, selger eller utleier.






































