Bildegalleri

Vardøgata 1 presenteres av EIE Eiendomsmegling ved Synne Eide Lunde. Fotograf: Taulant Tare (Boligfotobytare).
Rodeløkka/Sofienberg
Pent oppusset 2-roms i 3. etasje med heis. Gjennomgående. Felles takterrasse. Garasjeleie* IN-ordning. Ikke forkjøp!
Prisantydning4 750 000 kr
Nøkkelinfo
- Boligtype
- Leilighet
- Eieform
- Andel
- Soverom
- 1
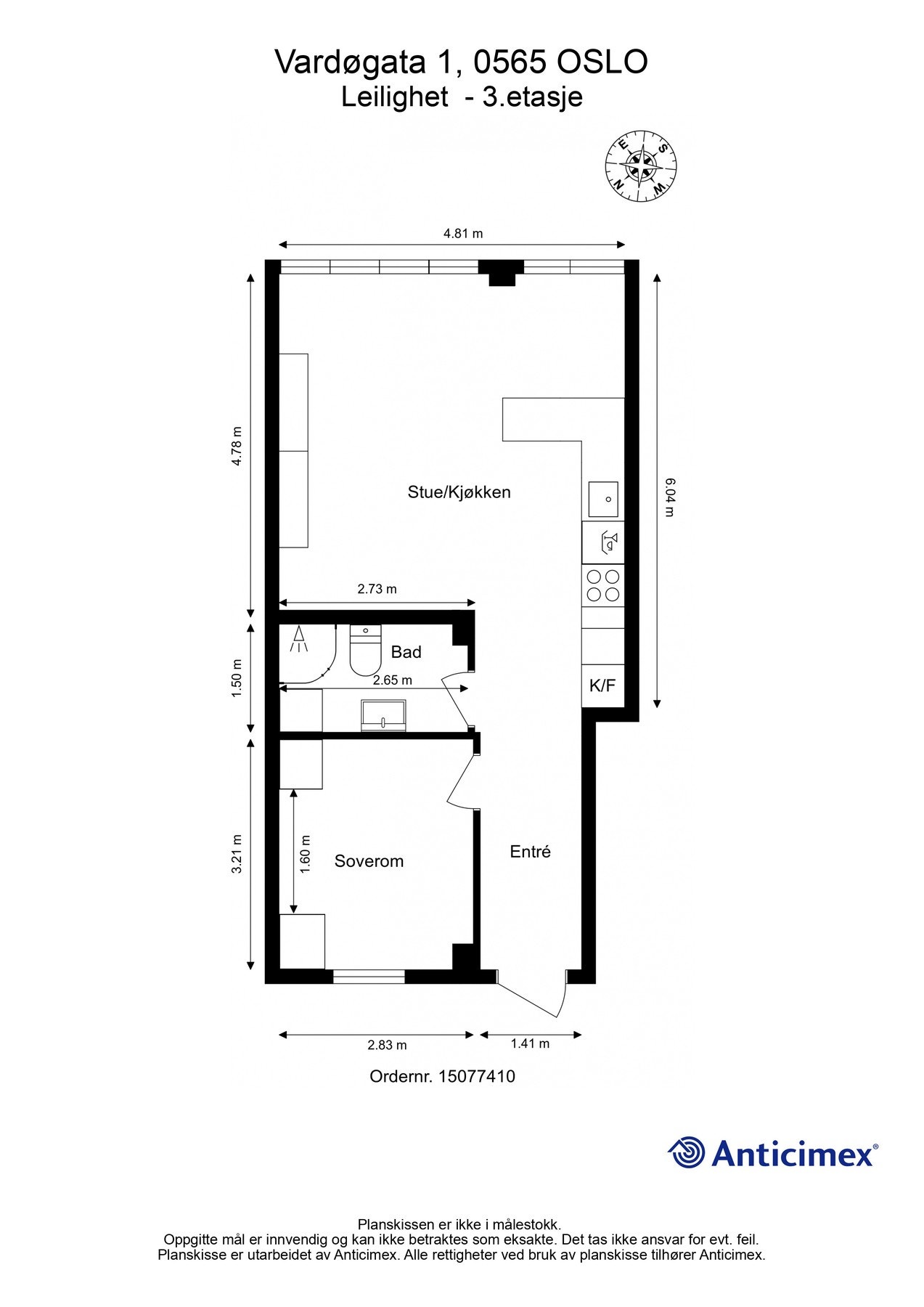
- Internt bruksareal
- 46 m² (BRA-i)
- Bruksareal
- 52 m²
- Eksternt bruksareal
- 6 m² (BRA-e)
- Etasje
- 3
- Byggeår
- 1933
- Energimerking
- E - Rød
- Rom
- 2
- Tomteareal
- 1 400 m² (eiet)
Fasiliteter
Kabel-TV
Heis
Offentlig vann/kloakk
Sentralt
Bredbåndstilknytning
Moderne
Rolig
Om boligen
Velkommen til Vardøgata 1 - En lys og delikat 2-roms andelsleilighet med ettertraktet beliggenhet. Leiligheten ligger fint til i byggets 3. etasje og har enkel heisadkomst. Planløsningen er godt utnyttet med store, luftige rom i tillegg til rikelig av naturlig lysinnslipp.
IN-ordning: Månedlige fellesutgifter kan reduseres til kr. 3 550,- ved full innfrielse av andel gjeld.
- Stilrent og pent oppusset
- Moderne standard
- Lyse, luftige rom
- Gjennomgående planløsning
- Sosial åpen stue- og kjøkkenløsning
- Lekkert kjøkken med integrerte hvitevarer
- Soverommet vender mot stille bakgård
- Svalgang utenfor inngangsparti
- Mulighet til å leie garasje m/el-lader etter ansiennitet, pt. ledig plass
- Felles takterrasse med flott utsikt, sittegrupper, grill og gode solforhold
- Ikke forkjøpsrett
- Lave omkostninger - ingen dokumentavgift
Flott beliggenhet på idylliske Rodeløkka med umiddelbar nærhet til det meste. Servicetilbud og offentlig transport er bare et steinkast unna.
IN-ordning: Månedlige fellesutgifter kan reduseres til kr. 3 550,- ved full innfrielse av andel gjeld.
- Stilrent og pent oppusset
- Moderne standard
- Lyse, luftige rom
- Gjennomgående planløsning
- Sosial åpen stue- og kjøkkenløsning
- Lekkert kjøkken med integrerte hvitevarer
- Soverommet vender mot stille bakgård
- Svalgang utenfor inngangsparti
- Mulighet til å leie garasje m/el-lader etter ansiennitet, pt. ledig plass
- Felles takterrasse med flott utsikt, sittegrupper, grill og gode solforhold
- Ikke forkjøpsrett
- Lave omkostninger - ingen dokumentavgift
Flott beliggenhet på idylliske Rodeløkka med umiddelbar nærhet til det meste. Servicetilbud og offentlig transport er bare et steinkast unna.
NB: Knappen for å vise hele beskrivelsen har kun en visuell effekt.
NB: Knappen for å vise hele beskrivelsen har kun en visuell effekt.
Salgsoppgaven beskriver vesentlig og lovpålagt informasjon om eiendommen
Se komplett salgsoppgaveNyttige lenker
Nærområdet
EIE eiendomsmegling Frogner
Annonseinformasjon
| FINN-kode | 439161681 |
|---|---|
| Sist endret | 05. des. 2025 09:11 |
| Referanse | 99251438 |
Annonsene kan være mangelfulle i forhold til lovpålagt opplysningsplikt. Før bindende avtale inngås oppfordres interessenter til å innhente komplett informasjon fra meglerforetaket, selger eller utleier.





































