Bildegalleri

Velkommen til Seilduksgata 25C - Presentert av Anders Sveen
Sjelden sjanse på Beste Grünerløkka
Klassisk toppleilighet med tillatelse for utbygging av loft m/takterrasse | Totalt 172m2 | Balkong | Peis | Stukkatur
Prisantydning9 500 000 kr
Nøkkelinfo
- Boligtype
- Leilighet
- Eieform
- Eier (Selveier)
- Soverom
- 2
- Internt bruksareal
- 74 m² (BRA-i)
- Bruksareal
- 83 m²
- Eksternt bruksareal
- 9 m² (BRA-e)
- Balkong/Terrasse
- 4 m² (TBA)
- Etasje
- 3
- Byggeår
- 1890
- Energimerking
- G - Rød
- Rom
- 3
- Tomt
- Eiet
Fasiliteter
Balkong/Terrasse
Peis/Ildsted
Barnevennlig
Rolig
Sentralt
Vaktmester-/vektertjeneste
Bredbåndstilknytning
Visning
Vi oppfordrer til å benytte visningspåmelding, dette sikrer god oppfølging fra megler.
Ta gjerne kontakt med megler i forkant av visning dersom du har spørsmål.
Husk å lese salgsoppgaven før visningen.
Velkommen!
VisningspåmeldingOm boligen
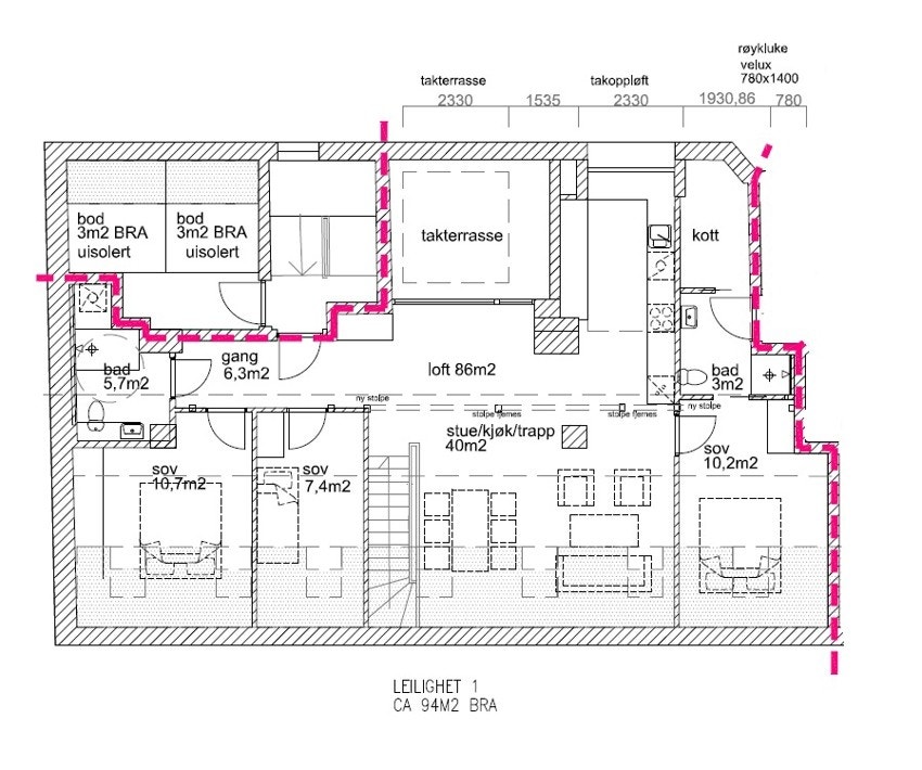
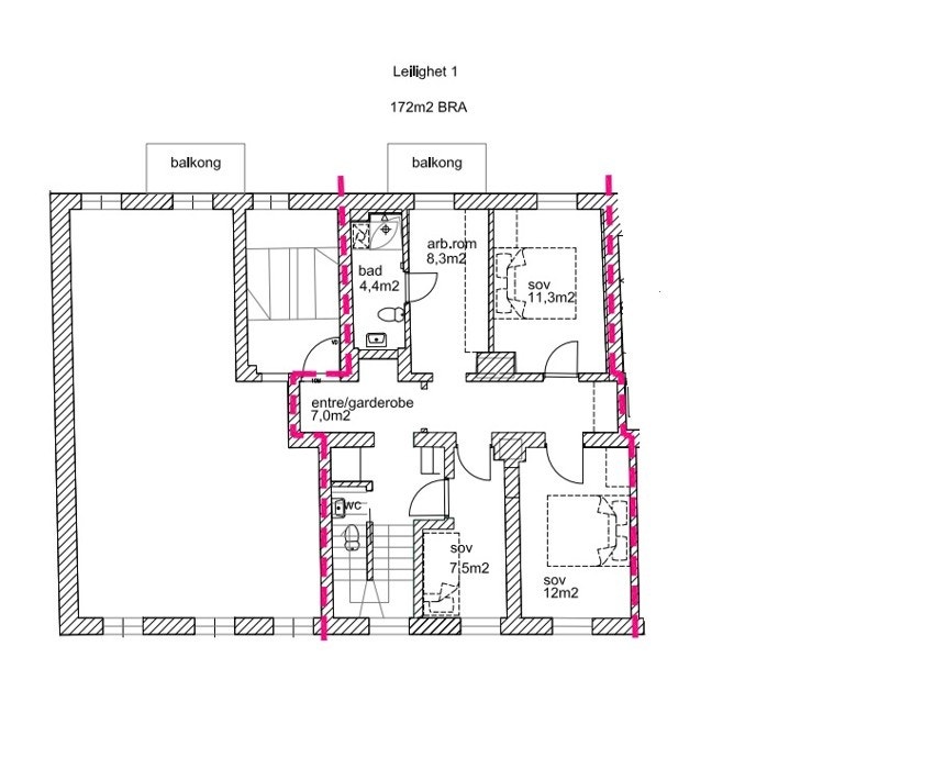
Mulighet for å bygge Grunerløkkas kanskje råeste leilighet! Det er inngått kjøpsavtale om råloft over, med rammetillatelsen allerede på plass.
Leiligheten har store vindusflater og god takhøyde på opptil 3 m. Fra kjøkkenet er det en sydvendt balkong mot fantastisk, sjarmerende og opparbeidet bakgård. Bygården bærer preg av godt vedlikehold og ligger rett ved idylliske Birkelunden.
- Boligen har ervervet kjøpsrett til råloftet over. Estimert loftsareal 94m². Totalt 172m² BRA-I
- Kjøpesum for loft kommer i tillegg - estimert til ca kr 1 384 600,-. Signert avtale vedlagt i salgsoppgave
- Rammetillatelse klar med blant annet takopplett og privat takterrasse
- Sydvendt balkong
- Klassiske detaljer som rosett, stukkatur og klassisk tofløyet heltredør
- 3 m takhøyde og peis
- Bygård med sterk vedlikeholdshistorikk
NB: Knappen for å vise hele beskrivelsen har kun en visuell effekt.
NB: Knappen for å vise hele beskrivelsen har kun en visuell effekt.
Salgsoppgaven beskriver vesentlig og lovpålagt informasjon om eiendommen
Se komplett salgsoppgaveNyttige lenker
Nærområdet
Schala & Partners Grünerløkka
Verdien av lokalkunnskap
Annonseinformasjon
| FINN-kode | 439155952 |
|---|---|
| Sist endret | 26. jan. 2026 03:19 |
| Referanse | 16250231 |
Annonsene kan være mangelfulle i forhold til lovpålagt opplysningsplikt. Før bindende avtale inngås oppfordres interessenter til å innhente komplett informasjon fra meglerforetaket, selger eller utleier.


















































