Bildegalleri

Velkommen til Prestegårdsveien 7B - Presentert av Daniel Mossige v/Aktiv eiendomsmegling Jæren. Fotograf: Truls Schaal
Austrått
Stor og romslig leilighet over 2 plan - Landlig og samtidig sentralt på Austrått i Sandnes
Prisantydning5 490 000 kr
Nøkkelinfo
- Boligtype
- Leilighet
- Eieform
- Eier (Selveier)
- Soverom
- 4
- Internt bruksareal
- 193 m² (BRA-i)
- Bruksareal
- 193 m²
- Etasje
- 2
- Byggeår
- 1999
- Energimerking
- C - Rød
- Tomteareal
- 1 163 m² (eiet)
Fasiliteter
Balkong/Terrasse
Garasje/P-plass
Offentlig vann/kloakk
Rolig
Sentralt
Visning
Ved annonsert visning er det viktig at du melder deg på visningen ved å bruke visningspåmeldingsknappen eller kontakter megler. Annonserte visninger hvor det ikke er noen påmeldte innen kl. 16.00 dagen før visningsdagen vil ikke bli avholdt.
For visninger utover dette, ta direkte kontakt med megler.
VisningspåmeldingOm boligen
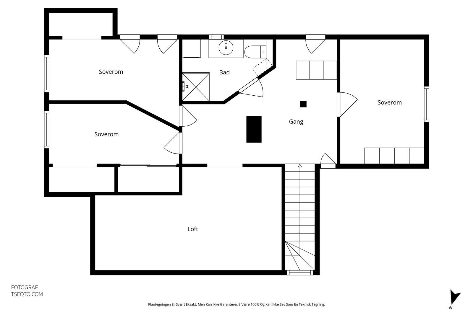
Romslig og innholdsrik bolig over 2. og 3. etasje med gjennomtenkt planløsning, flere oppholdsrom og totalt fire soverom et svært godt valg for familier som ønsker både plass, komfort og fleksible løsninger.
Den adskilte delen i 2. etasje på ca. 87 kvm består av entré, stue, kjøkken, soverom, toalettrom, vaskerom, bad og bod (ikke godkjent som egen boenhet), og gir spennende muligheter for ungdomsdel, generasjon eller gjester innen samme husstand.
Hoveddelen på ca. 106 kvm byr på entré, kjøkken og stue i 2. etasje, samt bad/vaskerom, tre soverom og gang i 3. etasje.
Meget attraktiv beliggenhet nær sentrum, kollektivtransport, butikker og turområder. Eventuell bruk som separat boenhet eller utleie krever godkjenning fra kommunen.
Den adskilte delen i 2. etasje på ca. 87 kvm består av entré, stue, kjøkken, soverom, toalettrom, vaskerom, bad og bod (ikke godkjent som egen boenhet), og gir spennende muligheter for ungdomsdel, generasjon eller gjester innen samme husstand.
Hoveddelen på ca. 106 kvm byr på entré, kjøkken og stue i 2. etasje, samt bad/vaskerom, tre soverom og gang i 3. etasje.
Meget attraktiv beliggenhet nær sentrum, kollektivtransport, butikker og turområder. Eventuell bruk som separat boenhet eller utleie krever godkjenning fra kommunen.
NB: Knappen for å vise hele beskrivelsen har kun en visuell effekt.
NB: Knappen for å vise hele beskrivelsen har kun en visuell effekt.
Salgsoppgaven beskriver vesentlig og lovpålagt informasjon om eiendommen
Se komplett salgsoppgaveNærområdet
Aktiv Jæren
Annonseinformasjon
| FINN-kode | 439136446 |
|---|---|
| Sist endret | 12. des. 2025 09:59 |
| Referanse | 1403250410 |
Annonsene kan være mangelfulle i forhold til lovpålagt opplysningsplikt. Før bindende avtale inngås oppfordres interessenter til å innhente komplett informasjon fra meglerforetaket, selger eller utleier.
































