Bildegalleri

Nhut Nam Huynh v/ Krogsveen har gleden av å presentere Myrbakkveien 19!
Høybråten
Påkostet enderekkehus med stor hage og gode solforhold | Garasje m/elbillader | Familieidyll på Høybråten
Prisantydning7 500 000 kr
Nøkkelinfo
- Boligtype
- Rekkehus
- Eieform
- Selveier
- Soverom
- 3
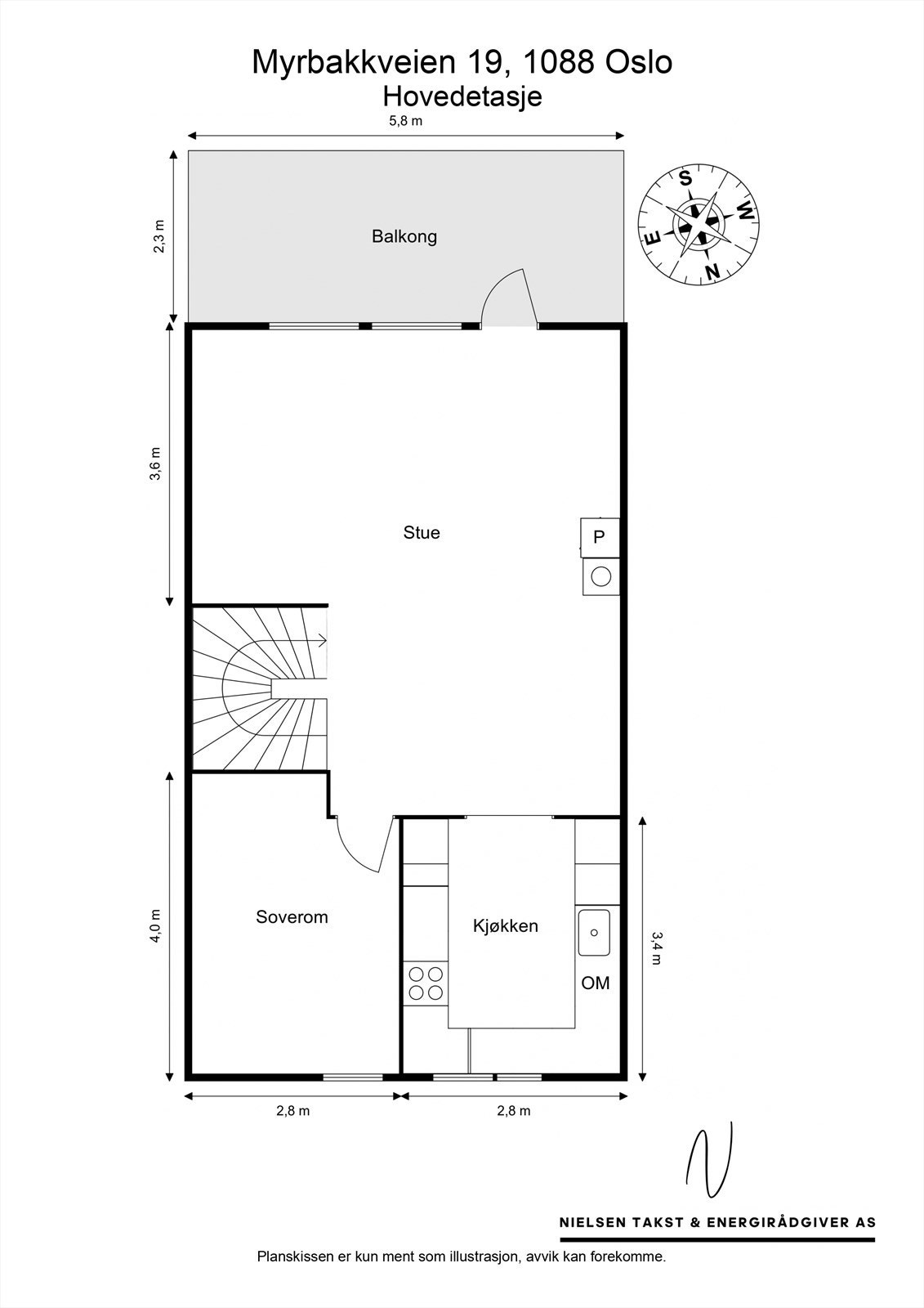
- Internt bruksareal
- 111 m² (BRA-i)
- Bruksareal
- 133 m²
- Eksternt bruksareal
- 22 m² (BRA-e)
- Balkong/Terrasse
- 72 m² (TBA)
- Etasje
- 2
- Byggeår
- 1985
- Energimerking
- Rom
- 4
- Tomteareal
- 248 m² (eiet)
Fasiliteter
Balkong/Terrasse
Barnevennlig
Bredbåndstilknytning
Garasje/P-plass
Hage
Kjæledyr tillatt
Ingen gjenboere
Kabel-TV
Offentlig vann/kloakk
Parkett
Peis/Ildsted
Rolig
Sentralt
Utsikt
Turterreng
Visning
mandag, 06. april
13:00 – 14:00
tirsdag, 07. april
17:00 – 18:00
For å delta på visning, ber vi om at du melder deg på. Da sikrer vi at du får nødvendig informasjon og at det er satt av tilstrekkelig med tid. Kontakt megler dersom annet tidspunkt ønskes. Husk å lese salgsoppgaven før visningen, så du stiller forberedt. NB. Visning utgår dersom det ikke er noen påmeldte. Ønsker du kun å bli holdt orientert, kan du fra eiendommens hjemmeside få varsel om solgtpris, eller kontakte megler.
VisningspåmeldingOm boligen
Velkommen til Myrbakkveien 19!
Et påkostet og innholdsrikt enderekkehus med attraktiv beliggenhet i et rolig og familievennlig område på Høybråten.
Boligen går over to plan og fremstår som moderne og innbydende, med gode romløsninger og rikelig med uteplass. Her bor du med nærhet til skoler, barnehager, marka og gode kollektivforbindelser til Lørenskog og Oslo sentrum. I tillegg er det kort vei til turområder, idrettsanlegg og helårsarenaen SNØ.
Høydepunkter:
Et påkostet og innholdsrikt enderekkehus med attraktiv beliggenhet i et rolig og familievennlig område på Høybråten.
Boligen går over to plan og fremstår som moderne og innbydende, med gode romløsninger og rikelig med uteplass. Her bor du med nærhet til skoler, barnehager, marka og gode kollektivforbindelser til Lørenskog og Oslo sentrum. I tillegg er det kort vei til turområder, idrettsanlegg og helårsarenaen SNØ.
Høydepunkter:
- Moderne kjøkken fra 2019
- Stor terrasse og balkong (72 m²) samt skjermet hage
- Gode sol- og lysforhold
- Gjennomgående god standard
- Flere soverom og fleksible romløsninger
- Garasjeplass m/ EL
- Gulvvarme i 1. etasje, varmepumpe fra 2021 og vedovn
- Praktisk utebod og lekehus i hagen
NB: Knappen for å vise hele beskrivelsen har kun en visuell effekt.
NB: Knappen for å vise hele beskrivelsen har kun en visuell effekt.
Salgsoppgaven beskriver vesentlig og lovpålagt informasjon om eiendommen
Se komplett salgsoppgaveNyttige lenker
Nærområdet
Krogsveen Hasle
Verdien av en god megler.
Annonseinformasjon
| FINN-kode | 438936119 |
|---|---|
| Sist endret | 29. mars 2026 11:54 |
| Referanse | KR37.25520 |
Annonsene kan være mangelfulle i forhold til lovpålagt opplysningsplikt. Før bindende avtale inngås oppfordres interessenter til å innhente komplett informasjon fra meglerforetaket, selger eller utleier.













































