Bildegalleri

Velkommen til Trysilfjell Hytteområde 540, presentert av Privatmegleren Trysil!
Unikt beliggende familiehytte på stor fritidseiendom 1.254 m2 i Trysils "Beste Smørøye" | Ski in/out | 145 kvm gulvareal
- Omkostninger
- 264 340 kr
- Totalpris
- 10 054 340 kr
- Formuesverdi
- 641 190 kr
Nøkkelinfo
- Beliggenhet
- På fjellet
- Boligtype
- Hytte
- Eieform
- Eier (Selveier)
- Internt bruksareal
- 103 m² (BRA-i)
- Bruksareal
- 103 m²
- Balkong/Terrasse
- 75 m² (TBA)
- Tomteareal
- 1 254 m² (eiet)
- Byggeår
- 1997
- Soverom
- 3
- Rom
- 4
- Energimerking
- E - Oransje
Fasiliteter
Visning
Husk å lese komplett salgsoppgave før visning. Bestill komplett, utskriftsvennlig salgsoppgave.
VisningspåmeldingOm boligen
NYHET PÅ MARKEDET - Sjelden mulighet til salgs i Trysilfjell Hytteområde 540, en romslig familiehytte med tilnærmet panoramautsikt, uten innsyn og alle fasiliteter man kan ønske seg for komfortable opphold året rundt.
Knallfin beliggenhet mellom de legendariske eiendommene Dæhlihytta og Schumacherhytta .
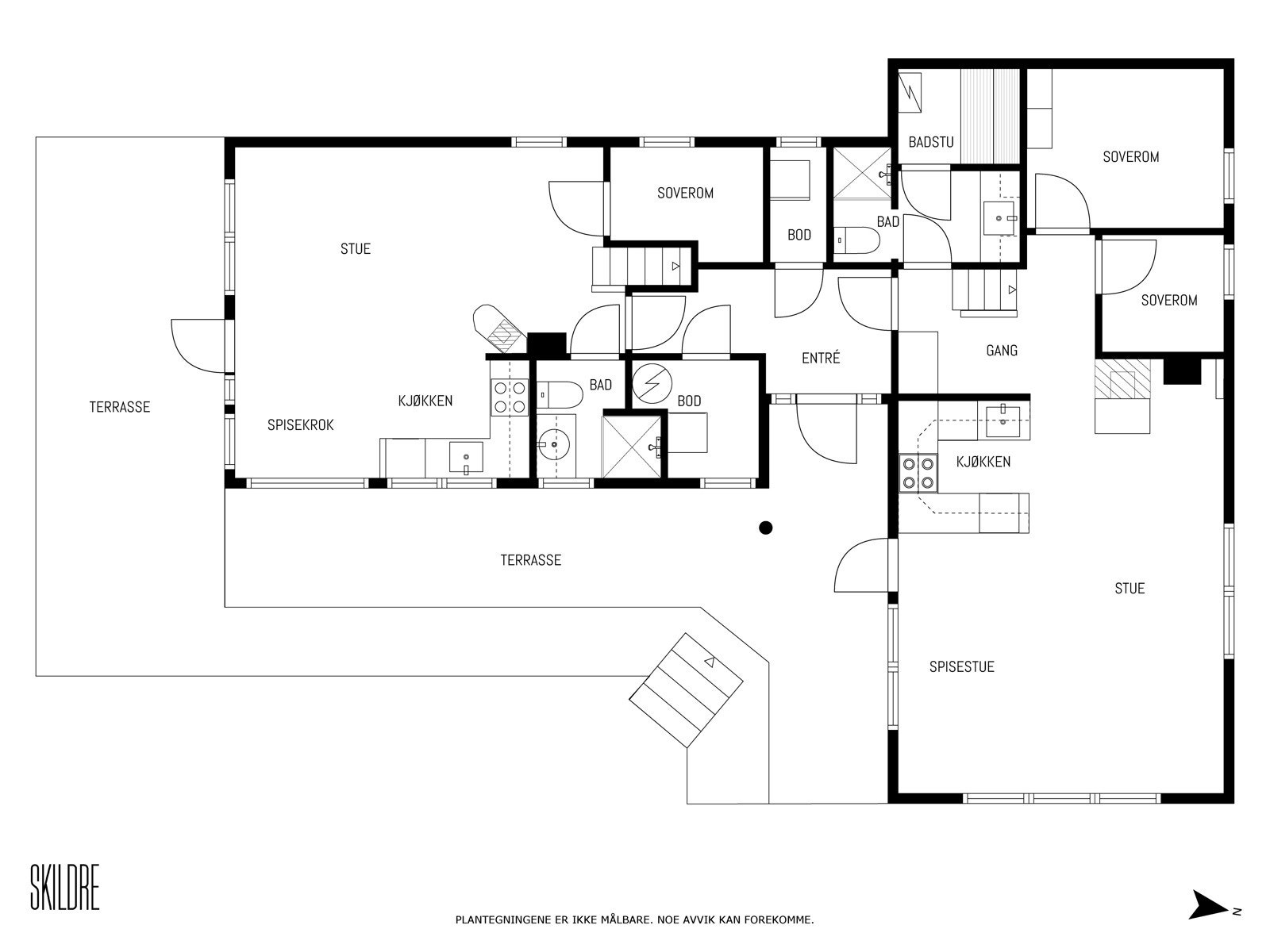
Hytten har et samlet innvendig gulvareal på 145 kvm fordelt på hovedetasje og hems, og inneholder tre soverom, to hemsrom med senger, to kjøkken, to bad, badstue samt to innvendige boder.
Merk deg dette:
- Ski-in/out
- Stor oppbygd tomt med vidstrakt utsikt
- App-styrte varmekabler og panelovner
- Stor Familie-/firmahytte
- 13 soveplasser
- 145 kvm gulvareal
- Begge bad nyere oppusset (2023)
- "To hytter i én"
- Innlagt fiber
- See the English text in the brochure
Kontakt megler for privatvisning TLF: 412 36 026
Salgsoppgaven beskriver vesentlig og lovpålagt informasjon om eiendommen
Se komplett salgsoppgaveNyttige lenker
Nærområdet
PrivatMegleren Hamar
Annonseinformasjon
| FINN-kode | 438571967 |
|---|---|
| Sist endret | 16. des. 2025 03:06 |
| Referanse | 320250246 |
Annonsene kan være mangelfulle i forhold til lovpålagt opplysningsplikt. Før bindende avtale inngås oppfordres interessenter til å innhente komplett informasjon fra meglerforetaket, selger eller utleier.















































