Bildegalleri

Eiendomsmegler Cecilie Muri har gleden av å ønske dere velkommen til Bjørnekollen 29. Foto: Zovenfra
Haslum
Innbydende og gjennomgående 3-roms m/2 balkonger i et barnevennlig område | Umiddelbar nærhet til T-bane | *P-plass
Prisantydning4 900 000 kr
Nøkkelinfo
- Boligtype
- Leilighet
- Eieform
- Andel
- Soverom
- 2
- Internt bruksareal
- 74 m² (BRA-i)
- Bruksareal
- 78 m²
- Eksternt bruksareal
- 4 m² (BRA-e)
- Balkong/Terrasse
- 11 m² (TBA)
- Etasje
- 2
- Byggeår
- 1959
- Energimerking
- F - Mørkegrønn
- Rom
- 3
- Tomteareal
- 16 518 m² (eiet)
Fasiliteter
Balkong/Terrasse
Barnevennlig
Bredbåndstilknytning
Garasje/P-plass
Kjæledyr tillatt
Ingen gjenboere
Kabel-TV
Rolig
Sentralt
Utsikt
Turterreng
Visning
søndag, 01. februar
14:00 – 15:00
For å delta på visning, ber vi om at du melder deg på. Da sikrer vi at du får nødvendig informasjon og at det er satt av tilstrekkelig med tid. Kontakt megler dersom annet tidspunkt ønskes. Husk å lese salgsoppgaven før visningen, så du stiller forberedt. NB. Visning utgår dersom det ikke er noen påmeldte senest 2 timer før oppsatt tid.
VisningspåmeldingOm boligen
Eiendomsmegler Cecilie Muri har gleden av å ønske velkommen til Bjørnekollen 29 - en flott 3-roms andelsleilighet beliggende i rolige og barnevennlige omgivelser på Haslum. Her bor dere med nærhet til barnehager, skoler, T-banen og buss, samt kort vei til flotte turområder, sommer som vinter. Det er heller ikke langt til Bekkestua sentrum med et rikt utvalg butikker, spisesteder og servicefasiliteter.
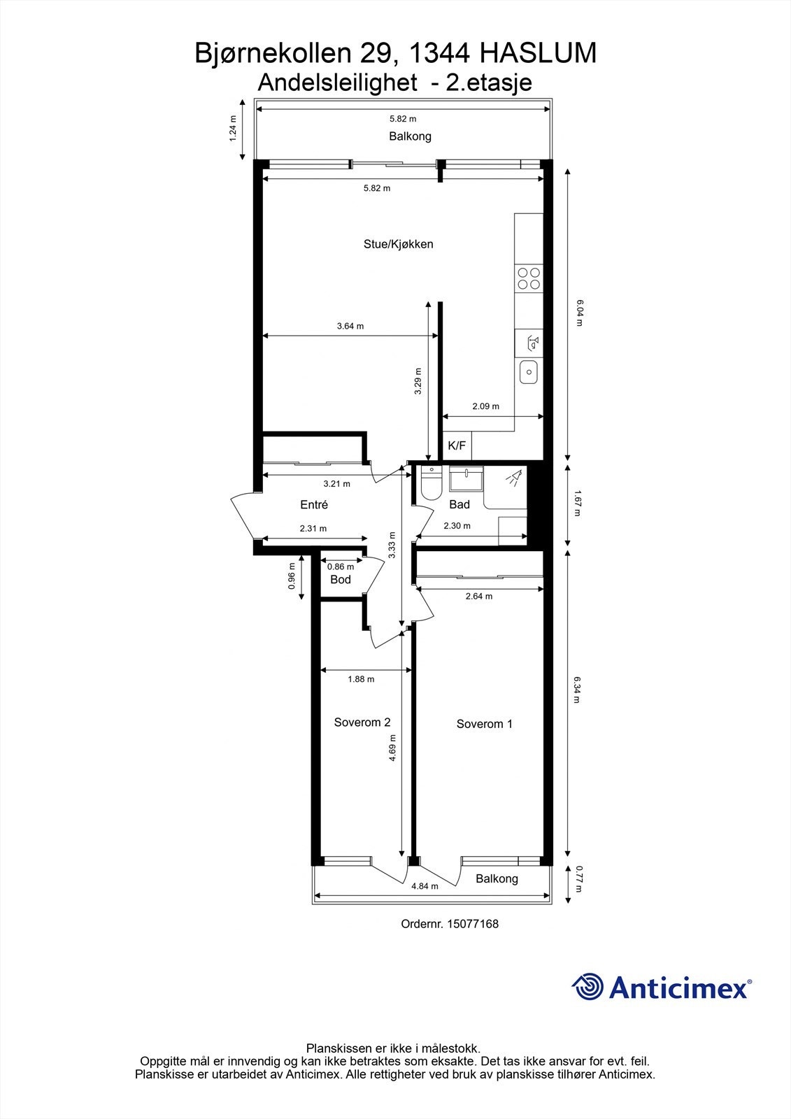
Leiligheten ligger i byggets 2. etasje, og har en god, gjennomgående planløsning bestående av en romslig entré, stor og lys stue med åpen kjøkkenløsning, to gode soverom, baderom og bod. Fra stuen/kjøkkenet er det utgang til en nordvestvendt balkong på 7 kvm, og fra begge soverommene har du utgang til en sydvestvendt balkong på 4 kvm. *P-plass til beboerne på anviste plasser med synlig bevis.
Leiligheten ligger i byggets 2. etasje, og har en god, gjennomgående planløsning bestående av en romslig entré, stor og lys stue med åpen kjøkkenløsning, to gode soverom, baderom og bod. Fra stuen/kjøkkenet er det utgang til en nordvestvendt balkong på 7 kvm, og fra begge soverommene har du utgang til en sydvestvendt balkong på 4 kvm. *P-plass til beboerne på anviste plasser med synlig bevis.
NB: Knappen for å vise hele beskrivelsen har kun en visuell effekt.
NB: Knappen for å vise hele beskrivelsen har kun en visuell effekt.
Salgsoppgaven beskriver vesentlig og lovpålagt informasjon om eiendommen
Se komplett salgsoppgaveNyttige lenker
Nærområdet
Krogsveen Bærum
Verdien av en god megler.
Annonseinformasjon
| FINN-kode | 438279917 |
|---|---|
| Sist endret | 26. jan. 2026 09:50 |
| Referanse | KR10.25355 |
Annonsene kan være mangelfulle i forhold til lovpålagt opplysningsplikt. Før bindende avtale inngås oppfordres interessenter til å innhente komplett informasjon fra meglerforetaket, selger eller utleier.


























