Bildegalleri

Lekker tomannsb. m/3 soverom, 2 stuer og 2 bad, hybel/utleiedel* og garasjeplass i et barnevennlig og attraktivt område.
Prisantydning15 900 000 kr
Nøkkelinfo
- Boligtype
- Tomannsbolig
- Eieform
- Eier (Selveier)
- Soverom
- 4
- Internt bruksareal
- 178 m² (BRA-i)
- Bruksareal
- 181 m²
- Eksternt bruksareal
- 2 m² (BRA-e)
- Byggeår
- 2025
- Tomt
- Eiet
Fasiliteter
Barnevennlig
Balkong/Terrasse
Garasje/P-plass
Offentlig vann/kloakk
Parkett
Moderne
Rolig
Balansert ventilasjon
Om boligen
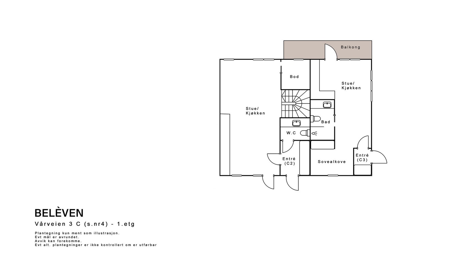
Vårveien 3 er en helt ny og meget flott, og innholdsrik familiebolig. Boligen går over to plan, med inngang fra første etasje, altan utenfor loftstuen og en balkong utenfor en tilhørende hybel/utleidel med egen inngang.
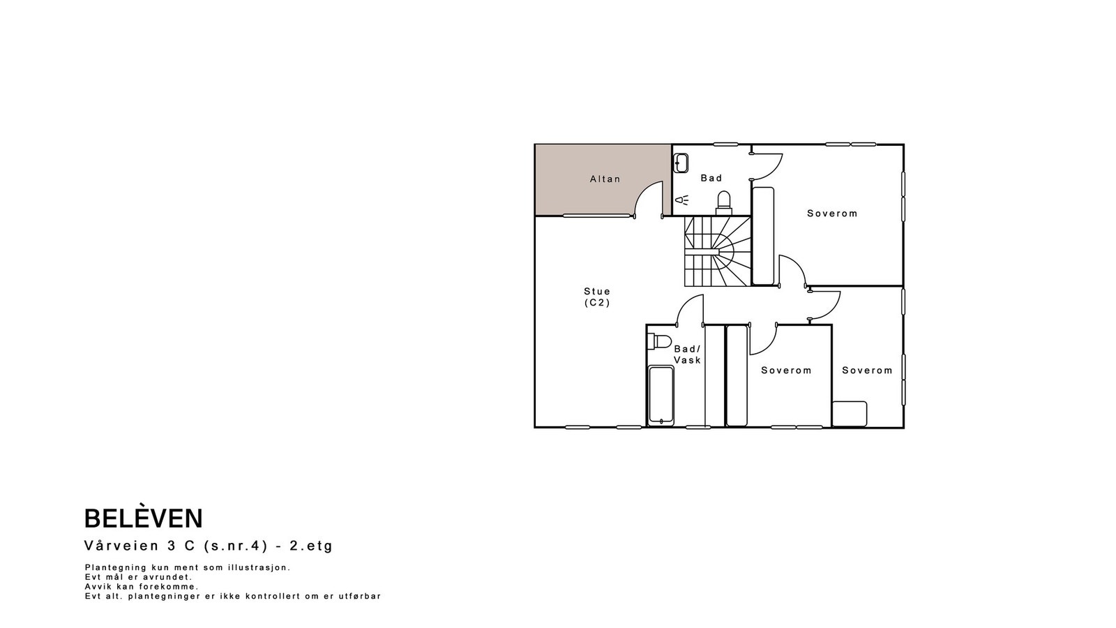
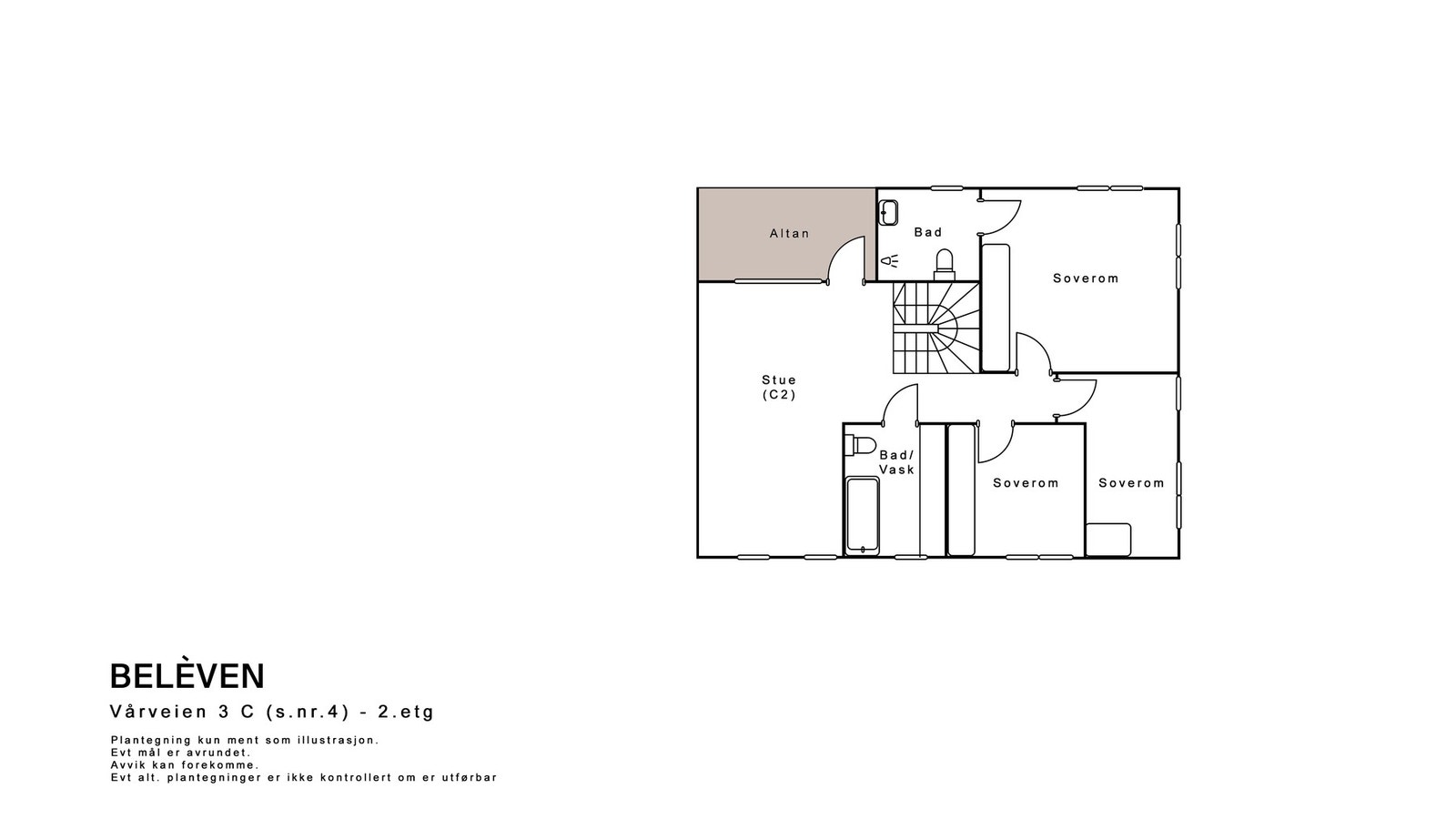
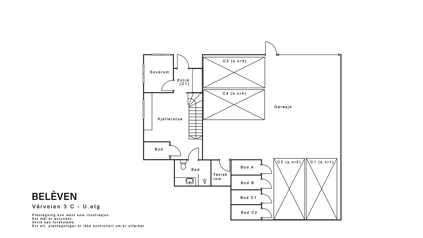
Boligen har eksklusivt hage- og uteareal, samt garasjeplass og bod i underetasjen. Åpen kjøkkenløsning, tre soverom, to pene bad og en innvendig bod. Boligen har en loftstue, samt et separat toalettrom. Hybelen er innredet med stue/kjøkken/sovealkove og et pent bad. Boligen er holdt i en nordisk stil med rene linjer, delikat sandbeige veggfarge, mørk vindusomramming og enstavs eikeparkett. Det er vannbåren gulvvarme i underetasjen og første etasje. Kjøkkenet er levert av HTH med integrerte hvitevarer fra AEG.
Området er etterspurt og barnevennlig, kun 5-6 minutters gange fra barneskolen, og med nærhet til fantastiske turområder som Ekeberg og Brannfjell. Badeplasser langs Bunnefjorden lokker med sommerlykke kun en kjøretur unna, og et utmerket kollektivtilbud.
Boligen har eksklusivt hage- og uteareal, samt garasjeplass og bod i underetasjen. Åpen kjøkkenløsning, tre soverom, to pene bad og en innvendig bod. Boligen har en loftstue, samt et separat toalettrom. Hybelen er innredet med stue/kjøkken/sovealkove og et pent bad. Boligen er holdt i en nordisk stil med rene linjer, delikat sandbeige veggfarge, mørk vindusomramming og enstavs eikeparkett. Det er vannbåren gulvvarme i underetasjen og første etasje. Kjøkkenet er levert av HTH med integrerte hvitevarer fra AEG.
Området er etterspurt og barnevennlig, kun 5-6 minutters gange fra barneskolen, og med nærhet til fantastiske turområder som Ekeberg og Brannfjell. Badeplasser langs Bunnefjorden lokker med sommerlykke kun en kjøretur unna, og et utmerket kollektivtilbud.
NB: Knappen for å vise hele beskrivelsen har kun en visuell effekt.
NB: Knappen for å vise hele beskrivelsen har kun en visuell effekt.
Salgsoppgaven beskriver vesentlig og lovpålagt informasjon om eiendommen
Se komplett salgsoppgaveNærområdet
Belèven Eiendomsmegling
Annonsene kan være mangelfulle i forhold til lovpålagt opplysningsplikt. Før bindende avtale inngås oppfordres interessenter til å innhente komplett informasjon fra meglerforetaket, selger eller utleier.




















































