Bildegalleri

Velkommen til Torger Carlsens Gate 190 - Presenteres av EiendomsMegler 1 v/Helge Stangeland. Foto: Schaal
Ganddal
Stilfullt og innholdsrikt rekkehus fra 2018 - 2 stuer - Varmepumpe - 2 solrike uteplasser - Usjenert hage - Barnevennlig
Prisantydning5 490 000 kr
Nøkkelinfo
- Boligtype
- Rekkehus
- Eieform
- Eier (Selveier)
- Soverom
- 3
- Internt bruksareal
- 115 m² (BRA-i)
- Bruksareal
- 120 m²
- Eksternt bruksareal
- 5 m² (BRA-e)
- Balkong/Terrasse
- 39 m² (TBA)
- Etasje
- 2
- Byggeår
- 2018
- Energimerking
- B - Rød
- Rom
- 5
- Tomteareal
- 226 m² (eiet)
Om boligen
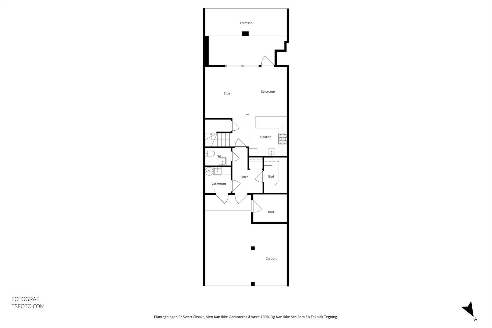
Velkommen til Torger Carlsens gate 190 et innbydende og familievennlig rekkehus fra 2018. Beliggenheten er særdeles barnevennlig og attraktiv, med nærhet til lekeplasser, barnehager, skoler og idrettsanlegg, samt kort vei til buss, butikker og turområder. Videre kan eiendommen skilte med carport, asfaltert gårdsplass, skjermet hage, lun terrasse på ca. 28 kvm og solrik balkong på ca. 11 kvm.
Boligen fremstår med tidsmessige farge- og materialvalg og innholdsrik planløsning. Stue og kjøkken danner et herlig allrom med varmepumpe og møbleringsfrihet. Kjøkkenet har integr. hvitevarer. Videre er det en luftig loftstue, romslig bad/wc, et wc-rom, vaskerom, pen entré og tre gode soverom. To rom har garderobe. Lagringsplass i en innebod, samt under trapp. Utebod på ca. 5 kvm.
Boligen fremstår med tidsmessige farge- og materialvalg og innholdsrik planløsning. Stue og kjøkken danner et herlig allrom med varmepumpe og møbleringsfrihet. Kjøkkenet har integr. hvitevarer. Videre er det en luftig loftstue, romslig bad/wc, et wc-rom, vaskerom, pen entré og tre gode soverom. To rom har garderobe. Lagringsplass i en innebod, samt under trapp. Utebod på ca. 5 kvm.
NB: Knappen for å vise hele beskrivelsen har kun en visuell effekt.
NB: Knappen for å vise hele beskrivelsen har kun en visuell effekt.
Salgsoppgaven beskriver vesentlig og lovpålagt informasjon om eiendommen
Se komplett salgsoppgaveNyttige lenker
Nærområdet
EiendomsMegler 1 Sandnes
En del av Sparebank 1 Sør-Norge
Annonseinformasjon
| FINN-kode | 438085290 |
|---|---|
| Sist endret | 09. jan. 2026 07:56 |
| Referanse | 2301250516 |
Annonsene kan være mangelfulle i forhold til lovpålagt opplysningsplikt. Før bindende avtale inngås oppfordres interessenter til å innhente komplett informasjon fra meglerforetaket, selger eller utleier.






























