Bildegalleri

Enebolig med en romslig hage og gode uteplasser.
Høybråten
Attraktiv og familievennlig enebolig på to plan | Garasje | 50 m² vestvendt veranda | Hage | Barnevennlig boområde
Prisantydning10 500 000 kr
Nøkkelinfo
- Boligtype
- Enebolig
- Eieform
- Eier (Selveier)
- Soverom
- 4
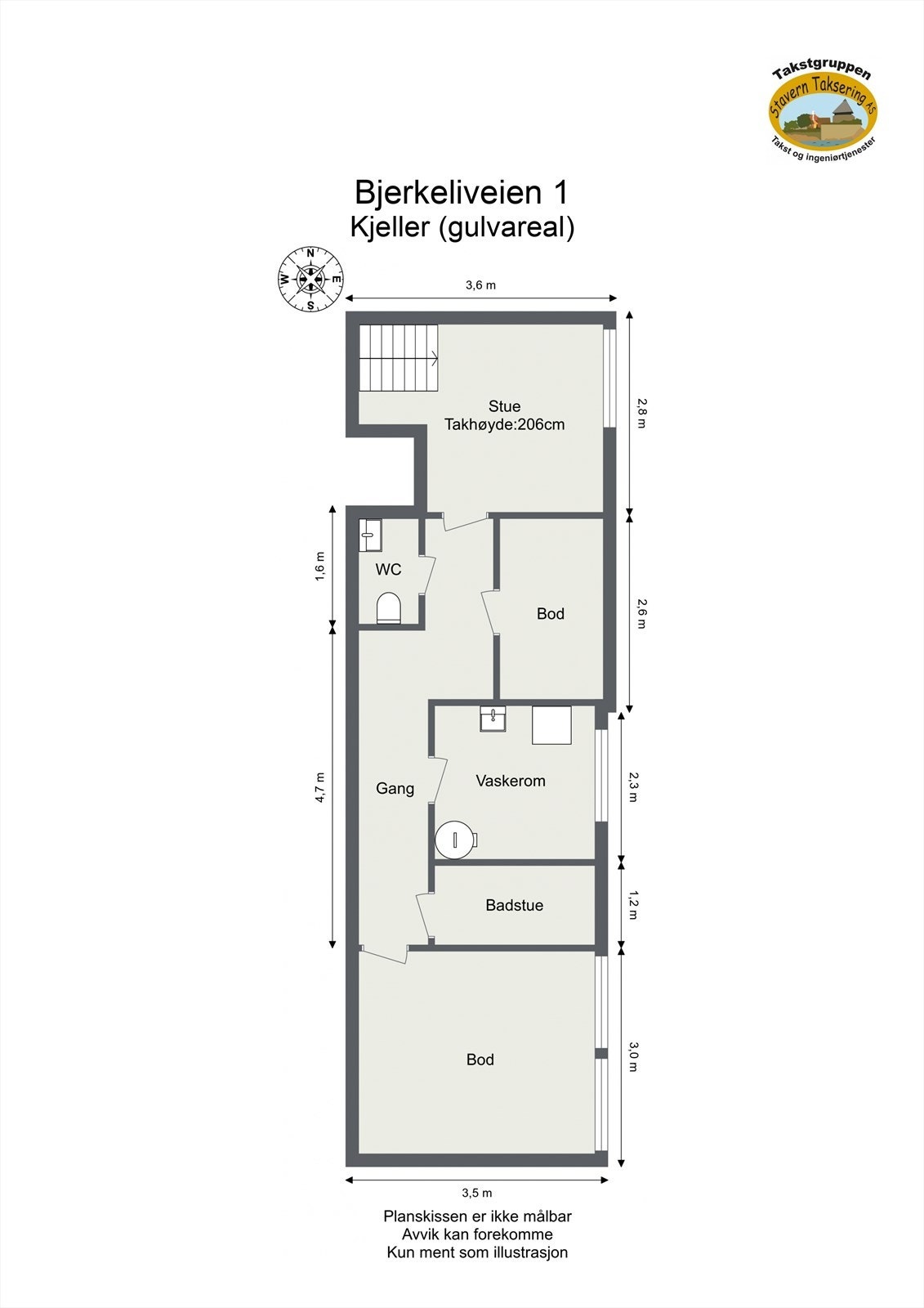
- Internt bruksareal
- 164 m² (BRA-i)
- Bruksareal
- 190 m²
- Eksternt bruksareal
- 26 m² (BRA-e)
- Balkong/Terrasse
- 50 m² (TBA)
- Etasje
- 2
- Byggeår
- 1962
- Energimerking
- E - Rød
- Rom
- 5
- Tomteareal
- 939 m² (eiet)
Fasiliteter
Balkong/Terrasse
Barnevennlig
Garasje/P-plass
Hage
Kjæledyr tillatt
Offentlig vann/kloakk
Parkett
Peis/Ildsted
Rolig
Sentralt
Om boligen
Velkommen til Bjerkeliveien 1 - en tiltalende og innholdsrik enebolig beliggende i et barnevennlig og godt etablert boligområde på Østre Høybråten. Boligen har en attraktiv hjørnetomt på hele 939 m² som er pent opparbeidet med asfaltert gårdsplass og hage med plen og diverse beplantning. Innvendig byr boligen på en romslig flislagt entré med en stor garderobe, separat kjøkken, stue med peis og utgang til vestvendt veranda på hele 50 m², fire soverom, og et pent flislagt baderom. Parkering gjøres enkelt i garasje med elektrisk leddport i tillegg til på gårdsplass.
Høydepunkter:
- Tre soverom
- Peis
- 50 m² veranda
- Hage
- Garasje
- 939 m² hjørnetomt
- Barnevennlig
- Sokner til Høybråten barneskole
Høydepunkter:
- Tre soverom
- Peis
- 50 m² veranda
- Hage
- Garasje
- 939 m² hjørnetomt
- Barnevennlig
- Sokner til Høybråten barneskole
NB: Knappen for å vise hele beskrivelsen har kun en visuell effekt.
NB: Knappen for å vise hele beskrivelsen har kun en visuell effekt.
Salgsoppgaven beskriver vesentlig og lovpålagt informasjon om eiendommen
Se komplett salgsoppgaveNyttige lenker
Nærområdet
EiendomsMegler 1 Lambertseter
Vi loser deg trygt gjennom hele boligsalget
Annonseinformasjon
| FINN-kode | 437933609 |
|---|---|
| Sist endret | 19. feb. 2026 12:15 |
| Referanse | 6023260023 |
Annonsene kan være mangelfulle i forhold til lovpålagt opplysningsplikt. Før bindende avtale inngås oppfordres interessenter til å innhente komplett informasjon fra meglerforetaket, selger eller utleier.








































