Bildegalleri

Velkommen til en innholdsrik og familievennlig enebolig
Familievennlig enebolig med 5 soverom / Påkostet & solrik tomt/ Gangavstand til skole og barnehager / Garasje
Prisantydning7 200 000 kr
Nøkkelinfo
- Boligtype
- Enebolig
- Eieform
- Eier (Selveier)
- Soverom
- 5
- Internt bruksareal
- 238 m² (BRA-i)
- Bruksareal
- 249 m²
- Eksternt bruksareal
- 11 m² (BRA-e)
- Balkong/Terrasse
- 109 m² (TBA)
- Etasje
- 2
- Byggeår
- 1973
- Tomteareal
- 909 m² (eiet)
Fasiliteter
Balkong/Terrasse
Barnevennlig
Garasje/P-plass
Hage
Peis/Ildsted
Rolig
Sentralt
Turterreng
Visning
Vi har påmelding til alle våre visninger. Dette gjør at eiendomsmegleren kan planlegge godt og gi personlig oppfølging til hver enkelt som kommer. For deg som vurderer å kjøpe bolig, betyr dette en mer ryddig og tilrettelagt visningsopplevelse. Påmelding og avmelding gjøres enkelt, og du er også velkommen til å ta kontakt med megleren i forkant dersom du har noe du lurer på.
VisningspåmeldingOm boligen
Velkommen til Bakkevegen 13 - en romslig og innholdsrik enebolig perfekt for den moderne familien.
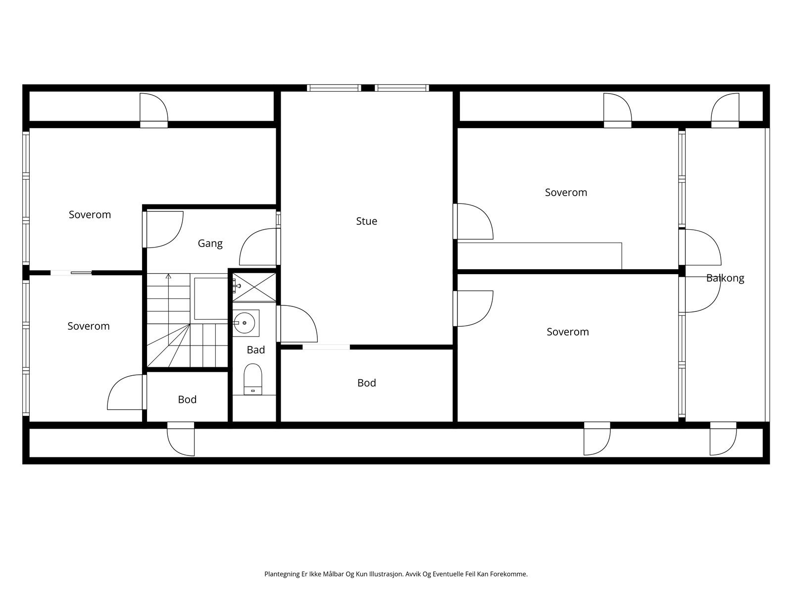
Boligen byr på store og lyse oppholdsrom, fem soverom + stort innredet rom, to stuer, to bad og praktiske løsninger i begge etasjer.
Fra stuen er det direkte utgang til en stor vestvendt terrasse på ca. 97 m², ideell for både lek og avslapning. Skjermet tomt som er påkostet med flotte uteplasser, støttemurer og jacuzzi. Kjøkkenet har god plass og fungerer som et naturlig samlingspunkt. I 2. etasje finner du loftsstue, fire soverom, bad, balkong og bodplass. Mulighet for å etablere ildsted i 2.etasje.
Integrert garasje med adkomst inn gir en praktisk hverdag. Kort vei til barnehager, skole, idrettsanlegg, buss og Kløfta stasjon. En komplett familiebolig i et svært attraktivt område.
Boligen byr på store og lyse oppholdsrom, fem soverom + stort innredet rom, to stuer, to bad og praktiske løsninger i begge etasjer.
Fra stuen er det direkte utgang til en stor vestvendt terrasse på ca. 97 m², ideell for både lek og avslapning. Skjermet tomt som er påkostet med flotte uteplasser, støttemurer og jacuzzi. Kjøkkenet har god plass og fungerer som et naturlig samlingspunkt. I 2. etasje finner du loftsstue, fire soverom, bad, balkong og bodplass. Mulighet for å etablere ildsted i 2.etasje.
Integrert garasje med adkomst inn gir en praktisk hverdag. Kort vei til barnehager, skole, idrettsanlegg, buss og Kløfta stasjon. En komplett familiebolig i et svært attraktivt område.
NB: Knappen for å vise hele beskrivelsen har kun en visuell effekt.
NB: Knappen for å vise hele beskrivelsen har kun en visuell effekt.
Salgsoppgaven beskriver vesentlig og lovpålagt informasjon om eiendommen
Se komplett salgsoppgaveNyttige lenker
Nærområdet
Emera Eiendomsmegling
Annonseinformasjon
| FINN-kode | 437210810 |
|---|---|
| Sist endret | 12. jan. 2026 19:02 |
| Referanse | EMERA1.2560 |
Annonsene kan være mangelfulle i forhold til lovpålagt opplysningsplikt. Før bindende avtale inngås oppfordres interessenter til å innhente komplett informasjon fra meglerforetaket, selger eller utleier.
















































