Bildegalleri

Velkommen til Sandakerveien 27! Presenteres av Silje Heggø ved Nordvik bolig. Foto: Kenneth Williassen
Inaktiv
Torshov
Gjennomgående 6-roms med vestvendt balkong, separat kjøkken og stue. Kort vei til trikk, buss og Torshov Torg
Prisantydning10 000 000 kr
Nøkkelinfo
- Boligtype
- Leilighet
- Eieform
- Eier (Selveier)
- Soverom
- 5
- Internt bruksareal
- 121 m² (BRA-i)
- Bruksareal
- 134 m²
- Eksternt bruksareal
- 13 m² (BRA-e)
- Balkong/Terrasse
- 3 m² (TBA)
- Etasje
- 4
- Byggeår
- 1888
- Energimerking
- F - Oransje
- Rom
- 6
- Tomteareal
- 266 m² (eiet)
Fasiliteter
Balkong/Terrasse
Barnevennlig
Bredbåndstilknytning
Kabel-TV
Offentlig vann/kloakk
Parkett
Peis/Ildsted
Rolig
Sentralt
Turterreng
Om boligen
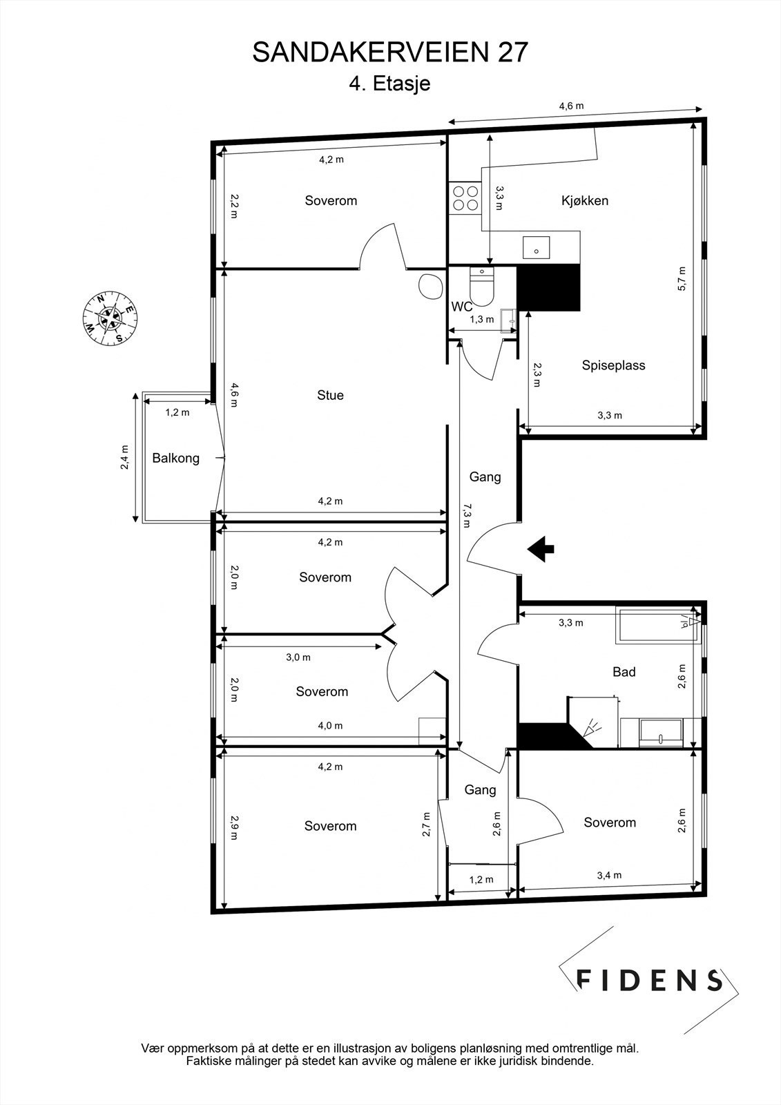
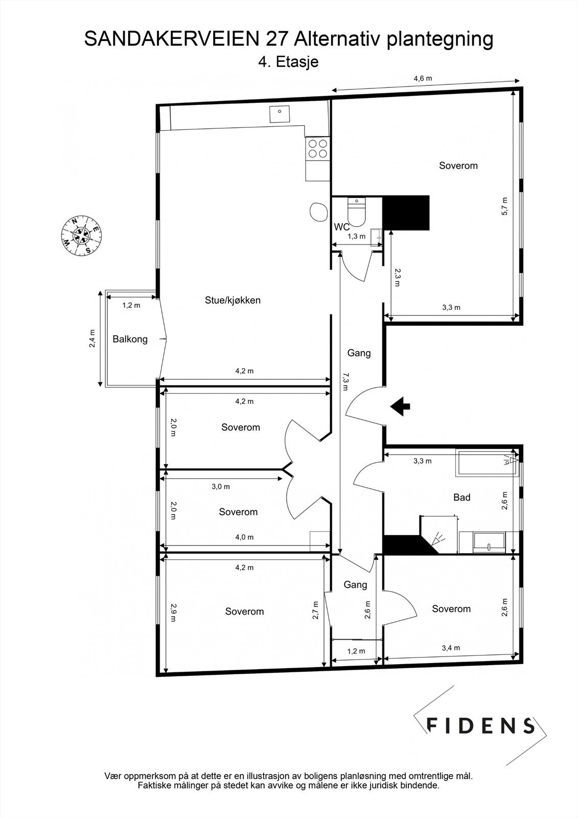
Sandakerveien 27 er en unik og attraktiv selveierleilighet med gjennomgående planløsning og 5 soverom!
Leiligheten har god intern beliggenhet i 4. etasje i en klassisk bygård, og har en solrik, vestvendt balkong med utgang fra stue. Videre byr leiligheten på et separat kjøkken, stort bad, og toalettrom. Her har du muligheten til å skape ditt neste drømmehjem!
Leiligheten har fantastisk beliggenhet på Torshov, med kort vei til Akerselva, Myrens Verksted, og offentlig kommunikasjon.
- Gjennomgående 6-roms i klassisk bygård
- Vestvendt balkong på ca. 3 kvm
- Stort potensial, med noe moderniseringsbehov
- Peisovn
- To romslige boder (loft & kjeller)
- 3 min gange til trikk og buss
- Kort vei til hyggelige kafeer, spisesteder, matbutikk og andre servicetilbud
- Mulighet for rask overtakelse
Leiligheten har god intern beliggenhet i 4. etasje i en klassisk bygård, og har en solrik, vestvendt balkong med utgang fra stue. Videre byr leiligheten på et separat kjøkken, stort bad, og toalettrom. Her har du muligheten til å skape ditt neste drømmehjem!
Leiligheten har fantastisk beliggenhet på Torshov, med kort vei til Akerselva, Myrens Verksted, og offentlig kommunikasjon.
- Gjennomgående 6-roms i klassisk bygård
- Vestvendt balkong på ca. 3 kvm
- Stort potensial, med noe moderniseringsbehov
- Peisovn
- To romslige boder (loft & kjeller)
- 3 min gange til trikk og buss
- Kort vei til hyggelige kafeer, spisesteder, matbutikk og andre servicetilbud
- Mulighet for rask overtakelse
NB: Knappen for å vise hele beskrivelsen har kun en visuell effekt.
NB: Knappen for å vise hele beskrivelsen har kun en visuell effekt.
Salgsoppgaven beskriver vesentlig og lovpålagt informasjon om eiendommen
Se komplett salgsoppgaveNyttige lenker
Nærområdet
Nordvik Torshov
Vi vet hva det er verdt
Annonseinformasjon
| FINN-kode | 437107945 |
|---|---|
| Sist endret | 19. des. 2025 16:37 |
| Referanse | 29-0246/25 |
Annonsene kan være mangelfulle i forhold til lovpålagt opplysningsplikt. Før bindende avtale inngås oppfordres interessenter til å innhente komplett informasjon fra meglerforetaket, selger eller utleier.
























































