
Bildegalleri

Kjøkken/stue (felles)
Ungt studentkollektiv i sentrum - Fullt møblert og moderne (Nyoppusset 2025) 2 rom ledig
- Månedsleie
- 5 400,–
- Depositum
- 9 990,–
Nøkkelinfo
- Internt bruksareal
- 10 m² (BRA-i)
- Boligtype
- Rom i bofellesskap
- Soverom
- 2
- Etasje
- 1.
- Leieperiode
- 08.08.2025
Fasiliteter
Beskrivelse
Ungt kollektiv - Ta kontakt for visning eller trykk på 3d visningen i annonsen
Helt nytt kollektiv med høy standard (Nyoppusset sommeren 2025)
Er du student og ønsker å bo i noe som føles splitter nytt? Da er dette kollektivet noe for deg! Her bor du moderne, energieffektivt og komfortabelt – supersentralt! Boligen er fullt møblert. Her kan du flytte rett inn uten å tenke på noe som helst!
Om boligen
Denne boligen er totalrenovert i 2025. Det er lagt vekt på kvalitet og smarte løsninger. Boligen er etterisolert og har varmepumpe for lavere strømregning og god komfort året rundt. Her flytter du inn i et hjem som oppleves som nytt!
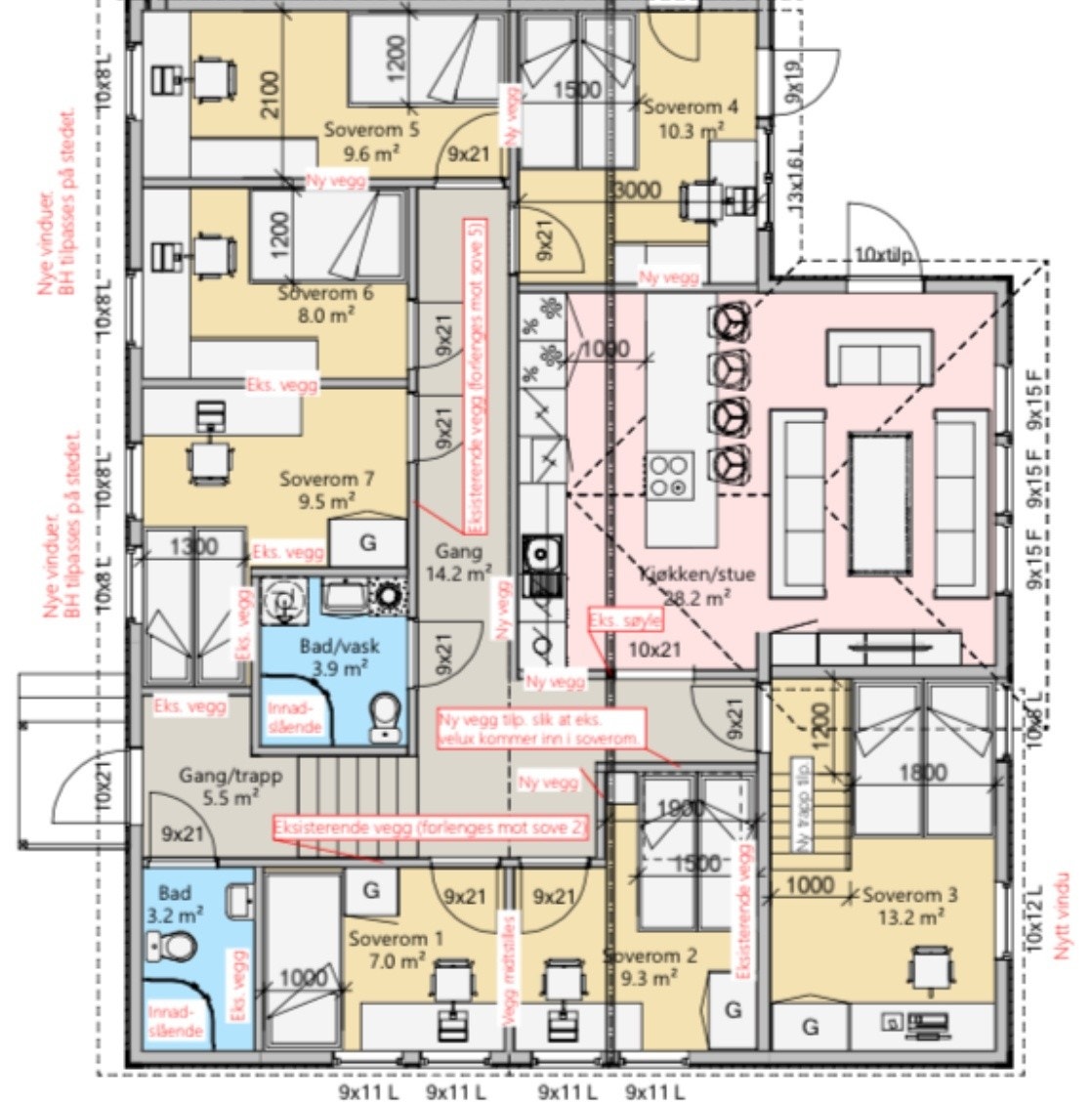
Soverom 1: Utleid til ung student 17 år Gutt
Soverom 2: LEDIG
Soverom 3: Utleid til Student 17år Jente
Soverom 4: Utleid til Student 21 år Gutt
Soverom 5: Ledig
Soverom 6: utleid til ung student 17 år Jente
Soverom 7: utleid til ung student 17 år Gutt
Planløsning
Boligen har en praktisk planløsning med felles kjøkken og oppholdsrom, og flere romslige soverom med plass til både seng, skrivebord og skap. boligen er fullt møblert. Mæblene er også det meste nytt eller brukt med høy standard. Plantegning følger annonsen. Høy standard. God kvalitet på senger (ikke de billigste)
Fellesareal
Utstyrt kjøkken og stue fullt møblert og moderne, med god plass til å lage mat og slappe av. Her får du et hjem du vil trives i!
Beliggenhet
Kollektivet ligger sentralt med kort vei til både skole, buss og dagligvare. Perfekt for studenter som ønsker å bo nær det meste. Hoved bussstasjonen i Haugesund ligger 2 min gangavstand. Her går det buss til Bergen, Stavanger og Oslo. Sentrum er en kort spasertur unna.
Inkludert/Standard
- Totalrenovert i 2025
- 3 Bad (ett av de hører til det ene soverommet)
- Etterisolert og energieffektiv bolig
- Varmepumpe
- Internett inkludert
- Møblert og utstyrt
- Høy standard på kjøkken og bad (alt nytt)
- Klar for innflytting på kort varsel
- Alarm
og brannvarsling tilkoblet sentral fra Verisure
- Kodelås på dør for nøkkelfri adkomst
- Faste vaskeplaner
- Nøye utvelgelseprosess
- Depositumskonto eller depositumsgaranti fra tryg forsikring
Visning
Hybel.no
Nærområdet
Annonseinformasjon
| FINN-kode | 437019439 |
|---|---|
| Sist endret | 07. des. 2025 10:59 |
| Referanse | rom-i-bofellesskap-skanevikgata-1-haugesund |
Annonsene kan være mangelfulle i forhold til lovpålagt opplysningsplikt. Før bindende avtale inngås oppfordres interessenter til å innhente komplett informasjon fra meglerforetaket, selger eller utleier.
Lignende annonser






























