Bildegalleri

Velkommen til Brochmanns gate 10D! Dette er en lys og tiltalende 3-roms hjørneleilighet i 4. etasje, plassert i et av de mest populære områdene på Sagene/Bjølsen.
Solgt
SAGENE/BJØLSEN
Attraktiv og lys 3-roms hjørneleilighet m/vestvendt balkong -A-konto fyring/v.v inkl. -God intern beliggenhet -Sentralt
Prisantydning6 500 000 kr
Nøkkelinfo
- Boligtype
- Leilighet
- Eieform
- Andel
- Soverom
- 2
- Internt bruksareal
- 61 m² (BRA-i)
- Bruksareal
- 68 m²
- Eksternt bruksareal
- 7 m² (BRA-e)
- Balkong/Terrasse
- 3 m² (TBA)
- Etasje
- 4
- Byggeår
- 1941
- Energimerking
- F - Mørkegrønn
- Rom
- 3
- Tomteareal
- 4 775 m² (eiet)
Fasiliteter
Balkong/Terrasse
Barnevennlig
Bredbåndstilknytning
Fellesvaskeri
Kjæledyr tillatt
Offentlig vann/kloakk
Parkett
Rolig
Sentralt
Vaktmester-/vektertjeneste
Turterreng
Om boligen
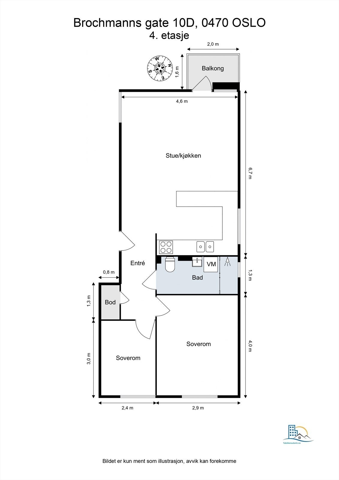
Velkommen til Brochmanns gate 10D!
Dette er en lys og attraktiv 3-roms hjørneleilighet i 4. etasje, plassert i et av de mest populære områdene på Sagene/Bjølsen. Her bor du med kort gangavstand til dagligvarebutikker, treningssentre, restauranter, kafeer og gode kollektivforbindelser.
Kvaliteter:
-Delikat 3-roms hjørneleilighet med god planløsning
-Herlig vestvendt balkong på 3 m² med flott utsikt mot grøntareal
-Lys fra tre sider som gir godt med naturlig lys
-Slipt og lakkert gulvet i 2024
-Nymalte flater i 2021
-Internett 1000/1000Mbit og a-konto fyring og varmtvann inkl. i fk.
-To tilhørende boder
-Svært god intern beliggenhet i området
-Lave kjøpsomkostninger, ingen dokumentavgift
-Akerselva og Oslos flotteste turveier som nærmeste nabo
Dette er en lys og attraktiv 3-roms hjørneleilighet i 4. etasje, plassert i et av de mest populære områdene på Sagene/Bjølsen. Her bor du med kort gangavstand til dagligvarebutikker, treningssentre, restauranter, kafeer og gode kollektivforbindelser.
Kvaliteter:
-Delikat 3-roms hjørneleilighet med god planløsning
-Herlig vestvendt balkong på 3 m² med flott utsikt mot grøntareal
-Lys fra tre sider som gir godt med naturlig lys
-Slipt og lakkert gulvet i 2024
-Nymalte flater i 2021
-Internett 1000/1000Mbit og a-konto fyring og varmtvann inkl. i fk.
-To tilhørende boder
-Svært god intern beliggenhet i området
-Lave kjøpsomkostninger, ingen dokumentavgift
-Akerselva og Oslos flotteste turveier som nærmeste nabo
NB: Knappen for å vise hele beskrivelsen har kun en visuell effekt.
NB: Knappen for å vise hele beskrivelsen har kun en visuell effekt.
Salgsoppgaven beskriver vesentlig og lovpålagt informasjon om eiendommen
Se komplett salgsoppgaveNyttige lenker
Nærområdet
Nordvik Nydalen
Annonseinformasjon
| FINN-kode | 436843928 |
|---|---|
| Sist endret | 29. jan. 2026 11:19 |
| Referanse | 20-0371/25 |
Annonsene kan være mangelfulle i forhold til lovpålagt opplysningsplikt. Før bindende avtale inngås oppfordres interessenter til å innhente komplett informasjon fra meglerforetaket, selger eller utleier.




































