Bildegalleri

PrivatMegleren Infinita ved Bent W. Johansen har gleden av å presentere Stordamveien 42A!
Hellerud
Lekkert enderekkehus - Oppusset i 2024 - Idylliske omgivelser - Sydvestvendt terrasse - Garasjeplass - Barnevennlig!
Prisantydning8 800 000 kr
Nøkkelinfo
- Boligtype
- Rekkehus
- Eieform
- Andel
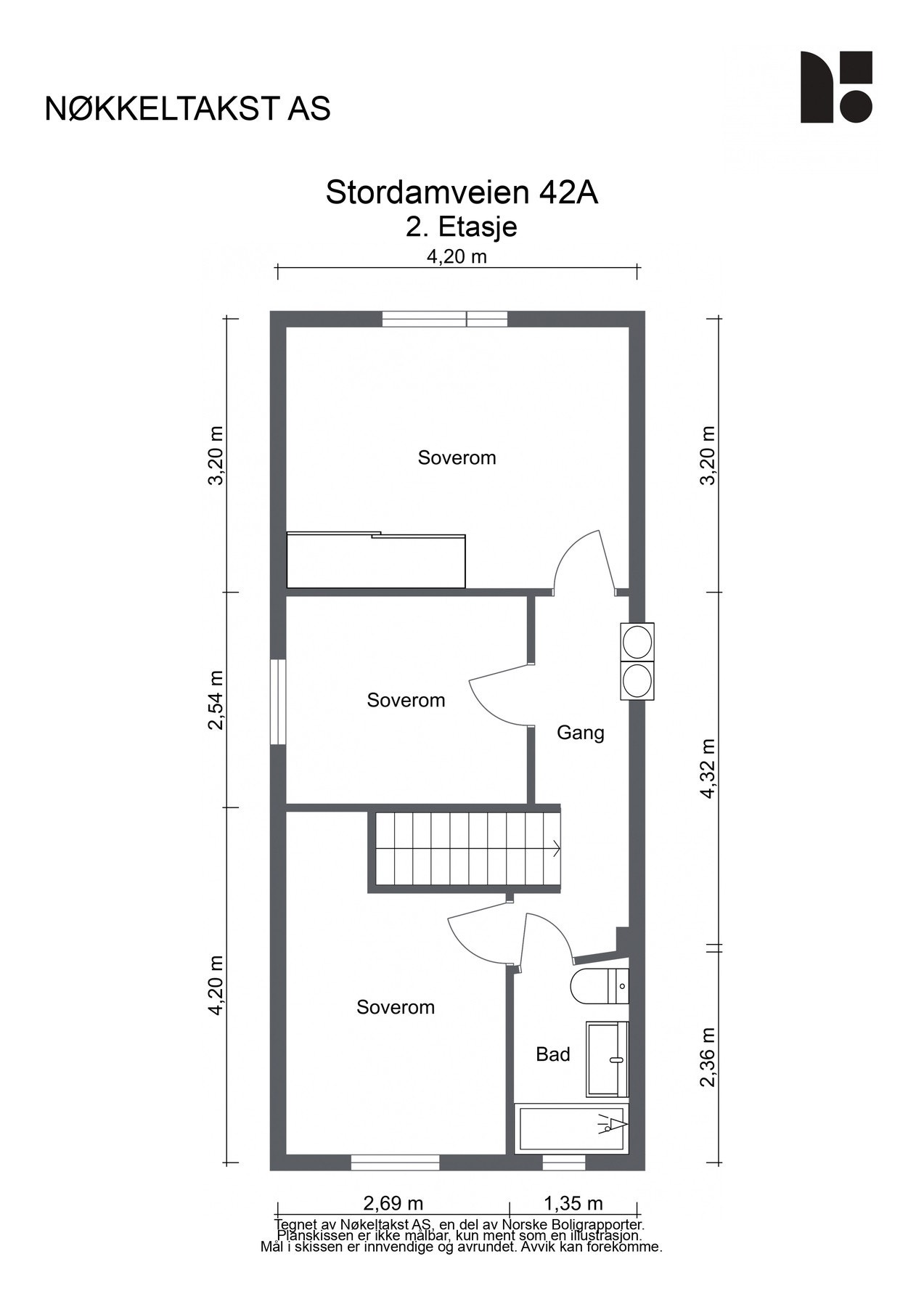
- Soverom
- 3
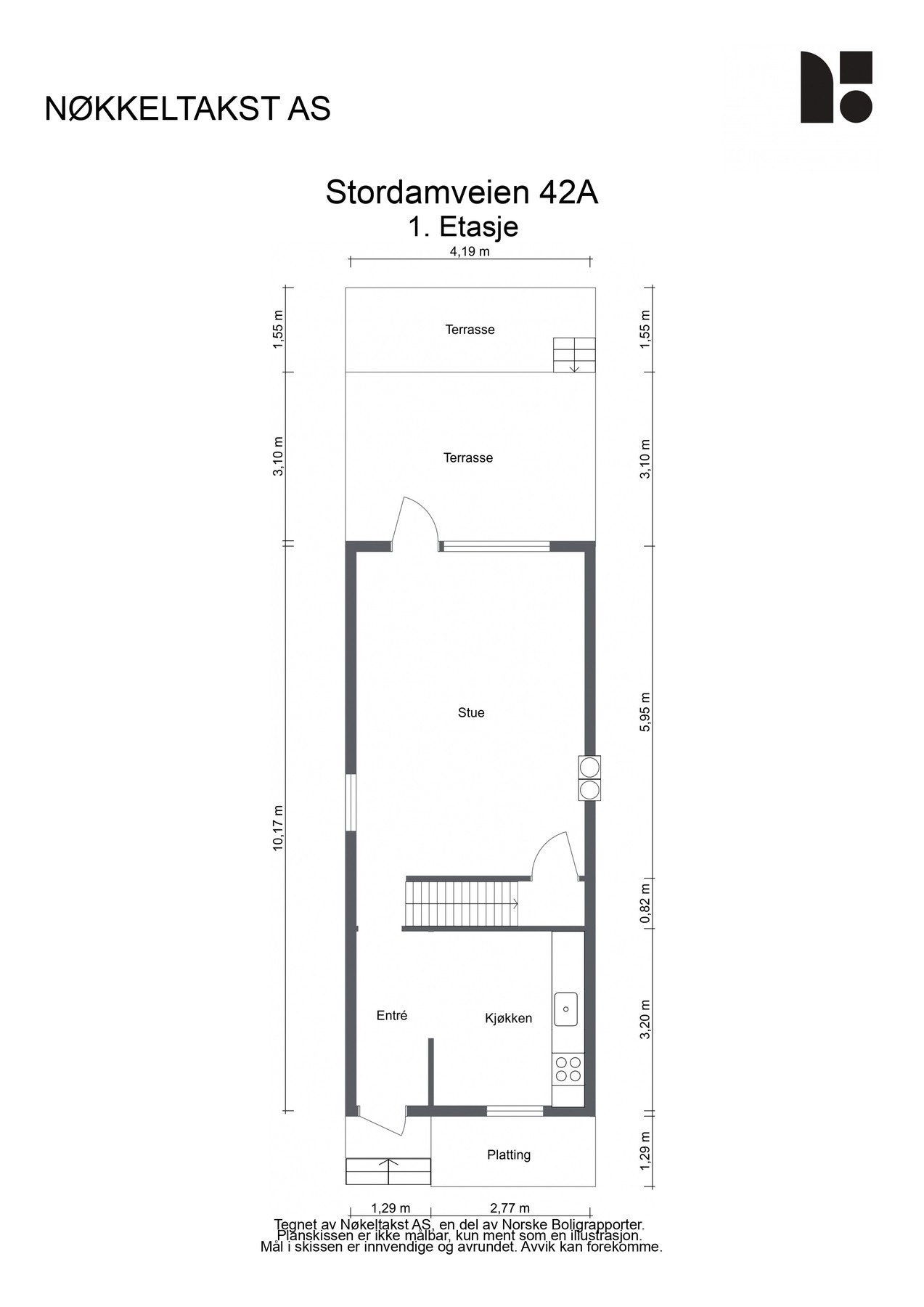
- Internt bruksareal
- 127 m² (BRA-i)
- Bruksareal
- 127 m²
- Balkong/Terrasse
- 24 m² (TBA)
- Byggeår
- 1957
- Energimerking
- G - Rød
- Rom
- 4
- Tomteareal
- 7 525 m² (eiet)
Fasiliteter
Barnevennlig
Balkong/Terrasse
Garasje/P-plass
Kabel-TV
Offentlig vann/kloakk
Turterreng
Sentralt
Bredbåndstilknytning
Moderne
Rolig
Om boligen
Velkommen til Stordamveien 42A - et lekkert enderekkehus med idyllisk beliggenhet i et familievennlig nabolag!
Her bor man i gangavstand til kjøpesenter, skoler, barnehager, T-bane, idrettsanlegg og turområder.
Rekkehuset strekker seg over tre etasjer og kan skilte med attraktive fasiliteter som sydvestvendt terrasse på ca. 21 kvm og medfølgende garasjeplass.
Boligen er omfattende oppusset i 2024 og har en moderne standard.
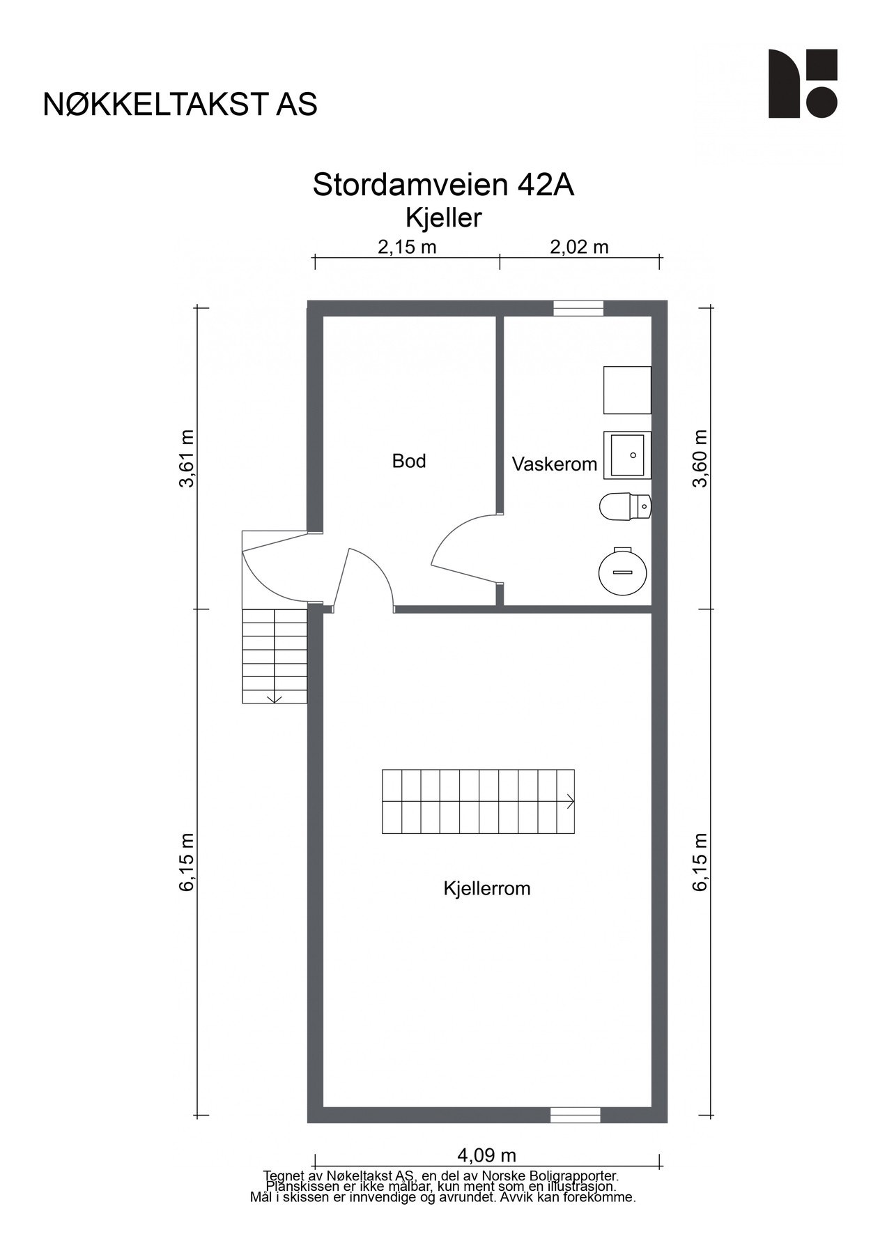
Kjøkkenet fra 2024 har moderne innredning med delvis integrerte hvitevarer og god arbeidsplass. Den lyse stuen har store vindusflater og direkte utgang til den sydvestvendte terrassen - perfekt for solrike ettermiddager og hyggelige kvelder. Boligen har tre gode soverom, et flislagt bad med gulvvarme og badekar, samt et praktisk vaskerom i kjeller. For ekstra oppbevaring er det et stort kjellerrom og en bod i kjelleren.
Velkommen!
Her bor man i gangavstand til kjøpesenter, skoler, barnehager, T-bane, idrettsanlegg og turområder.
Rekkehuset strekker seg over tre etasjer og kan skilte med attraktive fasiliteter som sydvestvendt terrasse på ca. 21 kvm og medfølgende garasjeplass.
Boligen er omfattende oppusset i 2024 og har en moderne standard.
Kjøkkenet fra 2024 har moderne innredning med delvis integrerte hvitevarer og god arbeidsplass. Den lyse stuen har store vindusflater og direkte utgang til den sydvestvendte terrassen - perfekt for solrike ettermiddager og hyggelige kvelder. Boligen har tre gode soverom, et flislagt bad med gulvvarme og badekar, samt et praktisk vaskerom i kjeller. For ekstra oppbevaring er det et stort kjellerrom og en bod i kjelleren.
Velkommen!
NB: Knappen for å vise hele beskrivelsen har kun en visuell effekt.
NB: Knappen for å vise hele beskrivelsen har kun en visuell effekt.
Salgsoppgaven beskriver vesentlig og lovpålagt informasjon om eiendommen
Se komplett salgsoppgaveNyttige lenker
Nærområdet

PrivatMegleren Infinita
Kun det beste på dine vegne
Annonseinformasjon
| FINN-kode | 436654893 |
|---|---|
| Sist endret | 28. nov. 2025 12:06 |
| Referanse | 174251071 |
Annonsene kan være mangelfulle i forhold til lovpålagt opplysningsplikt. Før bindende avtale inngås oppfordres interessenter til å innhente komplett informasjon fra meglerforetaket, selger eller utleier.










































