Bildegalleri

Romslig leilighet over to plan - rett ved kanalen - Gangavstand - Parkering
Moss sentrum- Sjøutsikt - Første rekke ut mot kanalen - Solrikt - Gangavstand til det meste!
Prisantydning4 500 000 kr
Nøkkelinfo
- Boligtype
- Leilighet
- Eieform
- Eier (Selveier)
- Soverom
- 2
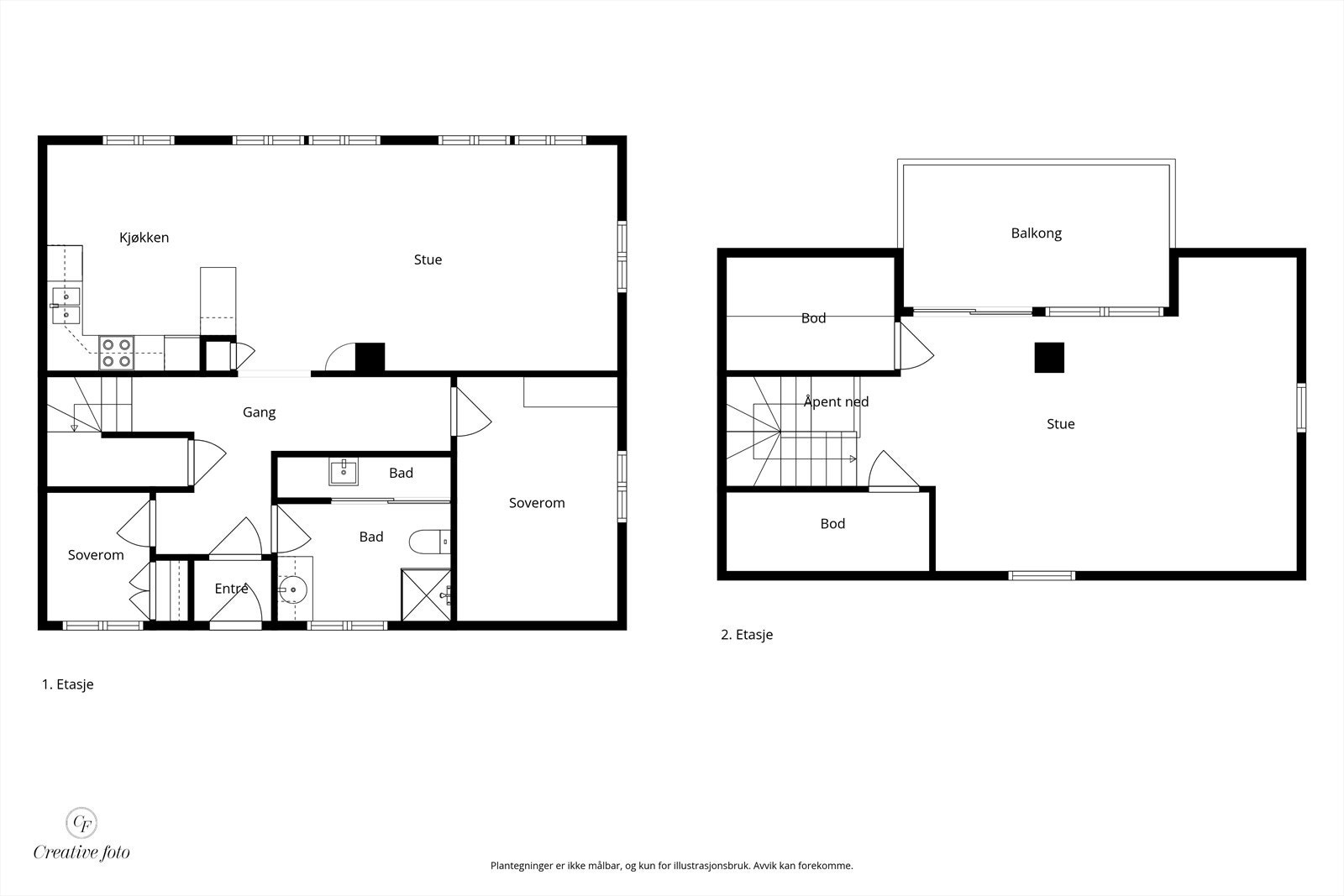
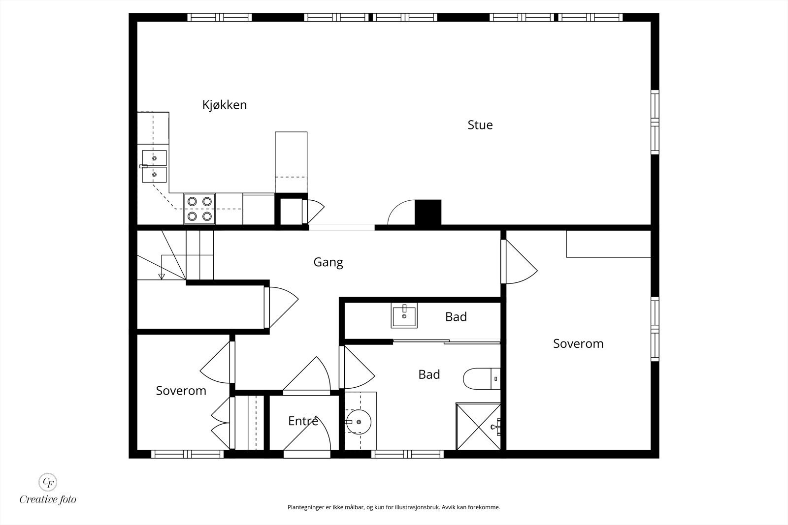
- Internt bruksareal
- 111 m² (BRA-i)
- Bruksareal
- 117 m²
- Eksternt bruksareal
- 6 m² (BRA-e)
- Balkong/Terrasse
- 11 m² (TBA)
- Etasje
- 2
- Byggeår
- 1988
- Energimerking
- Rom
- 3
- Tomteareal
- 373 m² (eiet)
Fasiliteter
Balkong/Terrasse
Barnevennlig
Garasje/P-plass
Kjæledyr tillatt
Offentlig vann/kloakk
Rolig
Sentralt
Utsikt
Turterreng
Visning
Ved annonsert visning er det viktig at du melder deg på visningen ved å bruke visningspåmeldingsknappen eller kontakter megler. Annonserte visninger hvor det ikke er noen påmeldte innen kl. 22.00 dagen før visningsdagen vil ikke bli avholdt.
For visninger utover dette, ta direkte kontakt med megler.
VisningspåmeldingOm boligen
Østre kanalgate 3 er sjarmerende leilighet med lyse overflater og praktiske løsninger. Kjøkkenet har profilerte fronter i tre, laminert benkeplate og ventilator med avtrekk ut. Badet fra 1988 har fliser på gulv, våtromstapet på vegger, dusjhjørne, servant og toalett, samt opplegg for vaskemaskin og varmtvannsbereder. Boligen har parkett og laminat på gulv, tapet på vegger og trepanel i himling. Vannrør av kobber med plastkappe, balansert ventilasjon og varmepumpe fra 2025 gir et behagelig inneklima. Sikringsskap med både automater og skrusikringer er plassert i vindfang. Leiligheten er plassert sentralt i Moss sentrum med sjøutsikt, og kort vei til Amfi senteret, tog og ferje.
NB: Knappen for å vise hele beskrivelsen har kun en visuell effekt.
NB: Knappen for å vise hele beskrivelsen har kun en visuell effekt.
Salgsoppgaven beskriver vesentlig og lovpålagt informasjon om eiendommen
Se komplett salgsoppgaveNærområdet
Aktiv Moss
Annonseinformasjon
| FINN-kode | 436523452 |
|---|---|
| Sist endret | 05. mars 2026 10:58 |
| Referanse | 1114250071 |
Annonsene kan være mangelfulle i forhold til lovpålagt opplysningsplikt. Før bindende avtale inngås oppfordres interessenter til å innhente komplett informasjon fra meglerforetaket, selger eller utleier.









































