Bildegalleri

EIE eiendomsmegling ved Amrinder Singh har gleden av å presentere Kjerkvegen 164.
Solgt
Vangslia
Leilighet midt i Vangslia Alpinsenter - 2-roms + sovealkove, ski-in/ski-out, balkong, badstue, ca. 4 km til sentrum.
Prisantydning1 950 000 kr
- Omkostninger
- 50 100 kr
- Totalpris
- 2 000 100 kr
- Kommunale avg.
- 6 976 kr per år
- Felleskost/mnd.
- 1 000 kr
- Fellesformue
- 14 353 kr
- Eiendomsskatt
- 1 911 kr per år
- Formuesverdi
- 312 741 kr
Pris på lån: fra 7 892 kr/mnd
Eff.rente 5,00 %. 1 365 000 o/25 år. Kostnad: 1 002 600 kr. Totalt 2 367 600 kr.
LånekalkulatorNøkkelinfo
- Boligtype
- Leilighet
- Eieform
- Eier (Selveier)
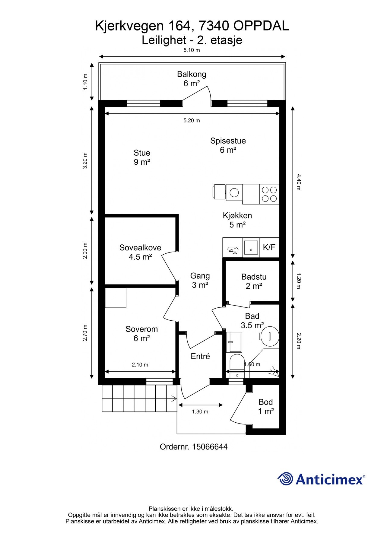
- Internt bruksareal
- 43 m² (BRA-i)
- Bruksareal
- 44 m²
- Eksternt bruksareal
- 1 m² (BRA-e)
- Balkong/Terrasse
- 6 m² (TBA)
- Tomteareal
- 265 m² (eiet)
- Byggeår
- 1991
- Soverom
- 1
- Rom
- 2
- Energimerking
- F - Oransje
Fasiliteter
Barnevennlig
Balkong/Terrasse
Garasje/P-plass
Offentlig vann/kloakk
Parkett
Peis/Ildsted
Turterreng
Utsikt
Sentralt
Bredbåndstilknytning
Alpinanlegg
Bilvei frem
Rolig
Innlagt strøm
Innlagt vann
Om boligen
EIE eiendomsmegling v/ Amrinder Singh har gleden av å presentere Kjerkvegen 164 - en pen og velholdt 2-roms fritidsleilighet med sovealkove, totalt fem sengeplasser.
Med ski-in/ski-out til Vangslia og flotte helårsturmuligheter rett utenfor døren, er dette et ideelt sted for en aktiv ferie. Leiligheten ligger i andre etasje, med fin utsikt og uteplass både foran og bak.
Nåværende eier har vært i dialog med kommunen om mulig utbygging av loftet, som strekker seg over hele leiligheten. Kommunen har vist positiv interesse, men det gis ingen garantier før formell søknad og dokumentasjon er innsendt.
Verdt å merke seg:
- Lys og trivelig stue med nyrenovert, godkjent pipe (2020) og ny peisovn
- Soverom på ca. 6 kvm + sovealkove
- Sportsbod
- Nytt gress på taket (2024)
- Parkering på felles biloppstillingsplass
- Bygningen har sprinkleranlegg
- Flotte sykkel- og turmuligheter rett utenfor døren
- Like flott både sommer og vinter
- Kort vei til sentrum
Velkommen til visning!
Med ski-in/ski-out til Vangslia og flotte helårsturmuligheter rett utenfor døren, er dette et ideelt sted for en aktiv ferie. Leiligheten ligger i andre etasje, med fin utsikt og uteplass både foran og bak.
Nåværende eier har vært i dialog med kommunen om mulig utbygging av loftet, som strekker seg over hele leiligheten. Kommunen har vist positiv interesse, men det gis ingen garantier før formell søknad og dokumentasjon er innsendt.
Verdt å merke seg:
- Lys og trivelig stue med nyrenovert, godkjent pipe (2020) og ny peisovn
- Soverom på ca. 6 kvm + sovealkove
- Sportsbod
- Nytt gress på taket (2024)
- Parkering på felles biloppstillingsplass
- Bygningen har sprinkleranlegg
- Flotte sykkel- og turmuligheter rett utenfor døren
- Like flott både sommer og vinter
- Kort vei til sentrum
Velkommen til visning!
NB: Knappen for å vise hele beskrivelsen har kun en visuell effekt.
NB: Knappen for å vise hele beskrivelsen har kun en visuell effekt.
Salgsoppgaven beskriver vesentlig og lovpålagt informasjon om eiendommen
Se komplett salgsoppgaveNyttige lenker
Nærområdet
EIE eiendomsmegling Heimdal
Annonseinformasjon
| FINN-kode | 436132150 |
|---|---|
| Sist endret | 27. nov. 2025 14:59 |
| Referanse | R-97251205 |
Annonsene kan være mangelfulle i forhold til lovpålagt opplysningsplikt. Før bindende avtale inngås oppfordres interessenter til å innhente komplett informasjon fra meglerforetaket, selger eller utleier.























