Bildegalleri

Velkommen til Skogfaret 23 A - Bildet er tatt av tilsvarende takterrasse på nabohuset
Solrikt på Ullern
Ny enebolig med hybel og utleiegaranti på kr 20 000,- pr mnd. | Fjordutsikt | Garasje | Solrik takterrasse
Prisantydning17 990 000 kr
Nøkkelinfo
- Boligtype
- Enebolig
- Eieform
- Eier (Selveier)
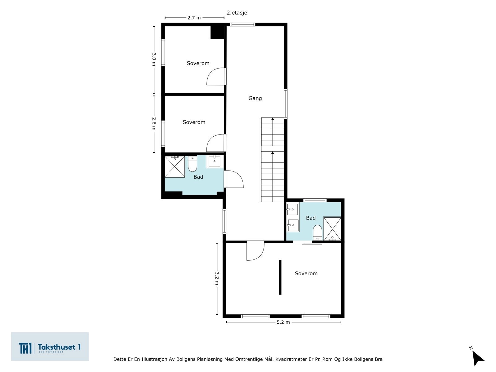
- Soverom
- 4
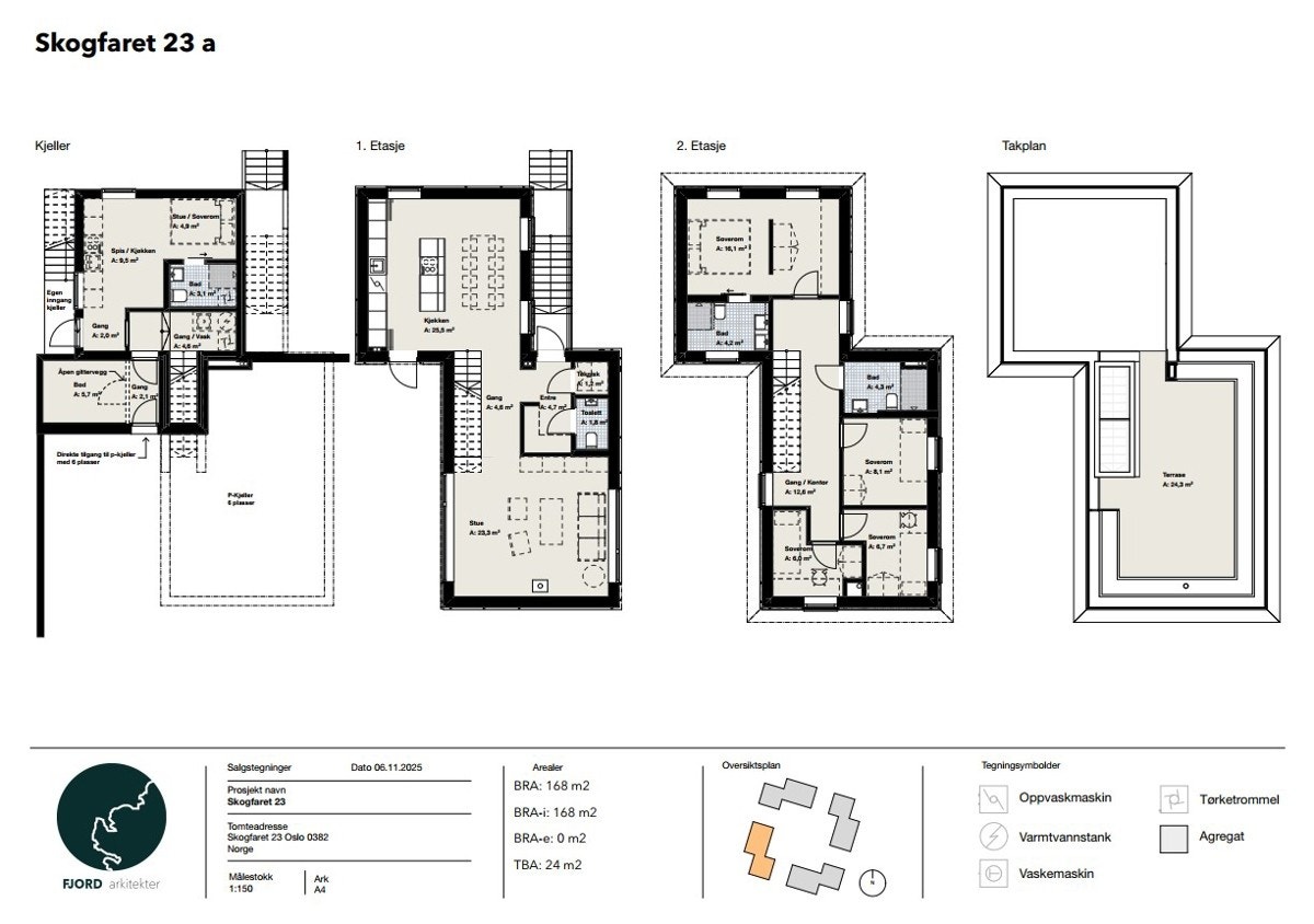
- Internt bruksareal
- 169 m² (BRA-i)
- Bruksareal
- 169 m²
- Balkong/Terrasse
- 33 m² (TBA)
- Byggeår
- 2025
- Energimerking
- B - Rød
- Tomteareal
- 1 665 m² (eiet)
Fasiliteter
Balkong/Terrasse
Peis/Ildsted
Parkett
Barnevennlig
Rolig
Moderne
Sentralt
Turterreng
Offentlig vann/kloakk
Utsikt
Visning
Alle våre visninger har påmelding. På denne måten sikrer vi at megler har god oversikt og tid til å imøtekomme alle interessenter på beste måte. Dette er veldig verdifullt for boligkjøpere og for oss. Det er enkelt å melde seg på, og du kan like enkelt melde deg av.
Kontakt også gjerne megler i forkant av visning dersom du har spørsmål.
VisningspåmeldingOm boligen
Nyoppført enebolig i solrike omgivelser på Ullern. Eiendommen ligger tilbaketrukket på et lite høydedrag på et hyggelig tun med fire eneboliger. Boligen er nylig ferdigstilt og har gjennomførte opparbeidede uteområder. Felles garasjeanlegg med direkte adkomst til boligen.
- Selger garanterer utleie for 1 år med kr 20 000 pr mnd
- Solrik takterrasse (19,5 kvm) med flott utsikt
- Lys hovedetasje med store vindusflater og utgang til terrasse og hage
- Lekkert kjøkken fra HTH med integrerte hvitevarer
- Peis i stue
- 3 soverom + mulighet for 4 soverom på samme plan
- Masteravdeling med walk-in og dusjbad
- Gjestewc
- Separat vaskerom
- Selger vil montere hybelkjøkken før overtakelse
- NB! Lave omk. og garanti stilles
Sogner til Bjørnsletta skole. Montersorri skole ligger like i nærheten. Kort vei til T-bane, buss og CC Vest
NB: Knappen for å vise hele beskrivelsen har kun en visuell effekt.
NB: Knappen for å vise hele beskrivelsen har kun en visuell effekt.
Salgsoppgaven beskriver vesentlig og lovpålagt informasjon om eiendommen
Se komplett salgsoppgaveNyttige lenker
Nærområdet

PrivatMegleren Allé
Kun det beste på dine vegne
Annonseinformasjon
| FINN-kode | 436028462 |
|---|---|
| Sist endret | 15. des. 2025 03:07 |
| Referanse | 186250265 |
Annonsene kan være mangelfulle i forhold til lovpålagt opplysningsplikt. Før bindende avtale inngås oppfordres interessenter til å innhente komplett informasjon fra meglerforetaket, selger eller utleier.


































