Bildegalleri

Krogsveen v/Andreas Gunnesmæl presenterer Ole Aasved veg 4 -en flott og stilig andelsleilighet med egen hybel!
Bergheim
Lys og flott 2-roms på 60 kvm med hybel i byggets toppetasje! | To bad & kjøkken | Balkong | "alt" ink. i FK | Heis
Prisantydning2 685 000 kr
Nøkkelinfo
- Boligtype
- Leilighet
- Eieform
- Andel
- Soverom
- 1
- Internt bruksareal
- 60 m² (BRA-i)
- Bruksareal
- 65 m²
- Eksternt bruksareal
- 5 m² (BRA-e)
- Balkong/Terrasse
- 4 m² (TBA)
- Etasje
- 5
- Byggeår
- 2003
- Energimerking
- D - Rød
- Rom
- 3
- Tomt
- Eiet
Fasiliteter
Balkong/Terrasse
Barnevennlig
Bredbåndstilknytning
Fellesvaskeri
Heis
Kjæledyr tillatt
Kabel-TV
Offentlig vann/kloakk
Parkett
Rolig
Sentralt
Utsikt
Turterreng
Visning
Ta kontakt med megler for avtale om privatvisning.
Ønsker du kun å bli holdt orientert, kan du fra eiendommens hjemmeside få varsel om solgtpris, eller kontakte megler.
VisningspåmeldingOm boligen
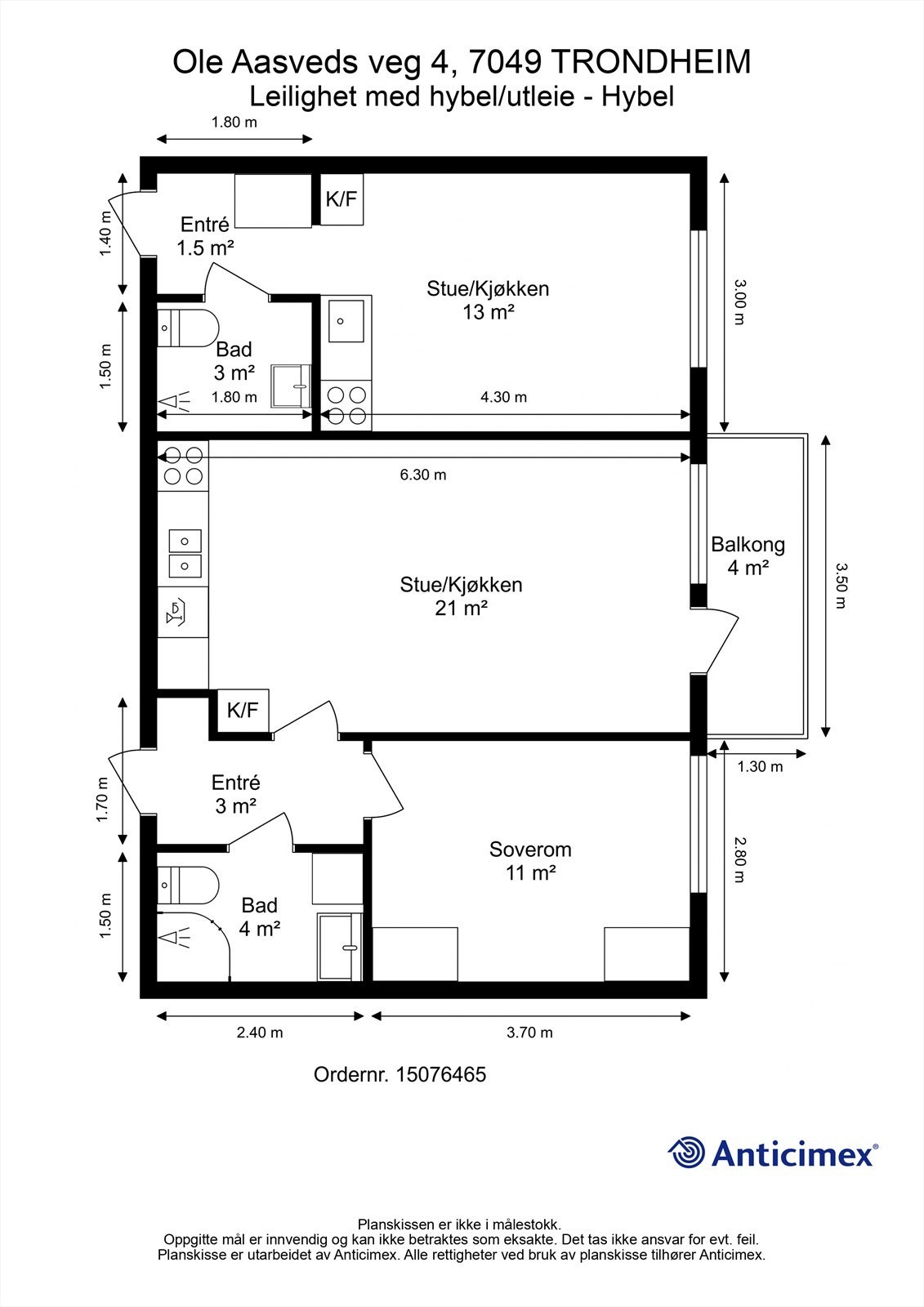
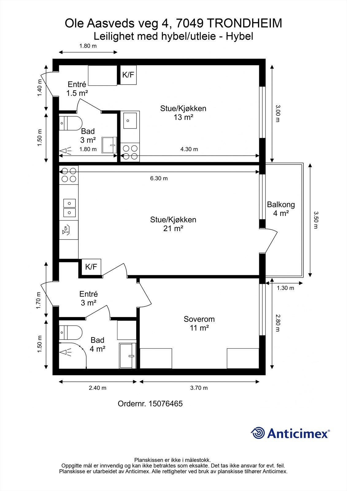
Krogsveen v/Andreas Gunnesmæl presenterer Ole Aasved veg 4 -en flott og stilig andelsleilighet med egen hybel! Her bor man med korte avstander til alt fra turterreng til kjøpesenter. Leiligheten består av en hoveddel på 40 kvm med balkong på 4 kvm, og en hybel på 20 kvm med egen inngang.
Verdt å nevne:
- Hybel med egen inngang og med leieinntekt kr 8.500,- pr mnd.
- To lyse kjøkken, begge med TG1!
- Romslig soverom på 11 kvm i hoveddelen.
- Praktisk stue-/kjøkkenløsning på 21 kvm.
- "Alt" inkludert i felleskostnadene.
- Balkong på 4 kvm med flott utsikt.
- P-plass på borettslagets tomt med mulighet for å søke om plass i p-kjeller.
- Kort avstand til marka.
- Nærhet til utmark, dagligvarebutikk, kollektivforbindelser og flere studiesteder.
- Felles vaskeri og sykkelbod i kjeller.
- Heis.
Verdt å nevne:
- Hybel med egen inngang og med leieinntekt kr 8.500,- pr mnd.
- To lyse kjøkken, begge med TG1!
- Romslig soverom på 11 kvm i hoveddelen.
- Praktisk stue-/kjøkkenløsning på 21 kvm.
- "Alt" inkludert i felleskostnadene.
- Balkong på 4 kvm med flott utsikt.
- P-plass på borettslagets tomt med mulighet for å søke om plass i p-kjeller.
- Kort avstand til marka.
- Nærhet til utmark, dagligvarebutikk, kollektivforbindelser og flere studiesteder.
- Felles vaskeri og sykkelbod i kjeller.
- Heis.
NB: Knappen for å vise hele beskrivelsen har kun en visuell effekt.
NB: Knappen for å vise hele beskrivelsen har kun en visuell effekt.
Salgsoppgaven beskriver vesentlig og lovpålagt informasjon om eiendommen
Se komplett salgsoppgaveNyttige lenker
Nærområdet
Krogsveen Trondheim
Velkommen til en enklere boligreise.
Annonseinformasjon
| FINN-kode | 436016667 |
|---|---|
| Sist endret | 14. des. 2025 21:23 |
| Referanse | KR68.25118 |
Annonsene kan være mangelfulle i forhold til lovpålagt opplysningsplikt. Før bindende avtale inngås oppfordres interessenter til å innhente komplett informasjon fra meglerforetaket, selger eller utleier.























