Bildegalleri

Kristoffer Mjåtveit har gleden av å presentere Frimanns gate 26B!
St. Hanshaugen / Meyerløkka
Unik enebolig i hjertet av Oslo | Privat hage | Skjermet bakgård i prisbelønnet gårdsmiljø | Eksklusivt oppgradert
Prisantydning14 250 000 kr
Nøkkelinfo
- Boligtype
- Enebolig
- Eieform
- Eier (Selveier)
- Soverom
- 2
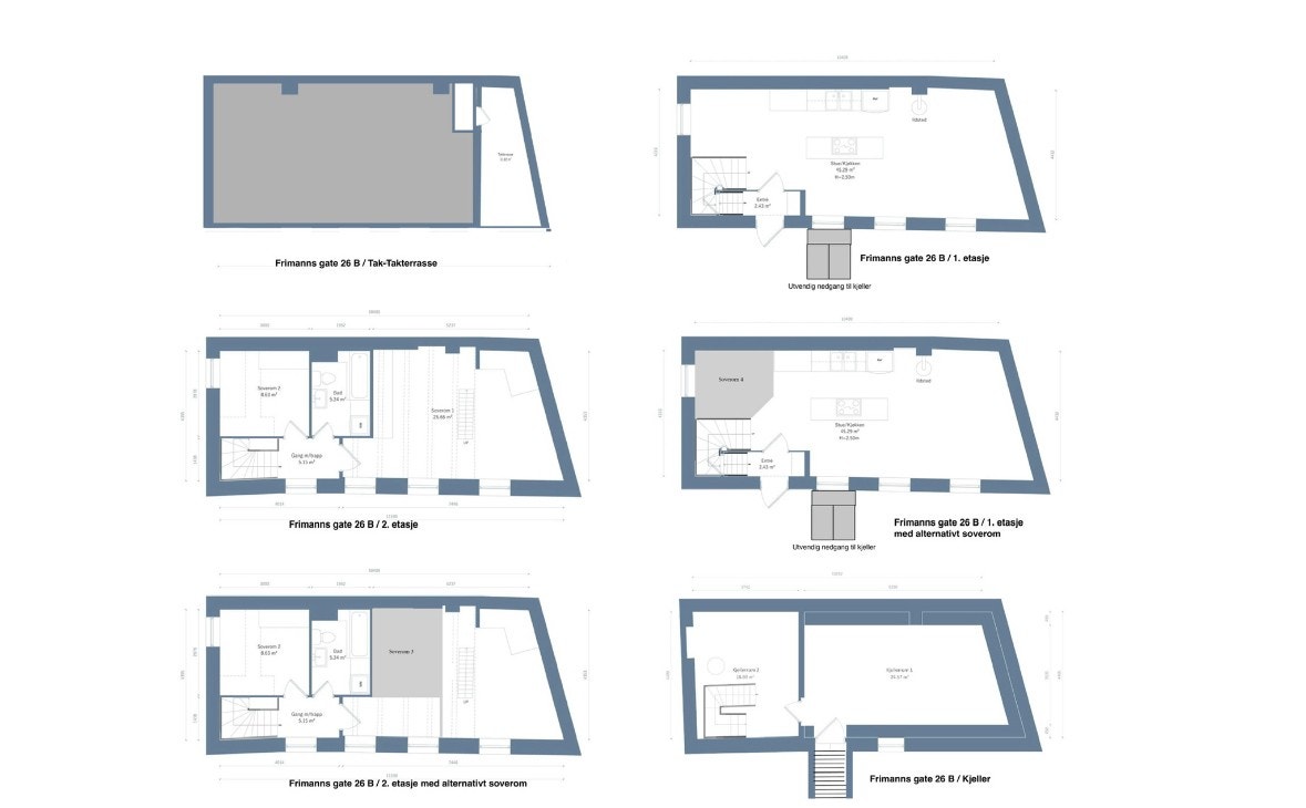
- Internt bruksareal
- 112 m² (BRA-i)
- Bruksareal
- 112 m²
- Balkong/Terrasse
- 11 m² (TBA)
- Etasje
- 3
- Byggeår
- 1875
- Energimerking
- Rom
- 3
- Tomteareal
- 116 m² (eiet)
Fasiliteter
Takterrasse
Balkong/Terrasse
Barnevennlig
Bredbåndstilknytning
Hage
Kjæledyr tillatt
Offentlig vann/kloakk
Parkett
Peis/Ildsted
Rolig
Sentralt
Utsikt
Turterreng
Visning
Alle våre visninger har påmelding. På denne måten sikrer vi at megler har god oversikt og tid til å imøtekomme alle interessenter. Meld deg på visning ved å trykke på lenken visningspåmelding.
VisningspåmeldingOm boligen
Unik, sjarmerende enebolig med privat, lekkert designet og frodig hage få minutters gange fra Karl Johan og hovedstadens yrende kulturliv. Den klassiske og selveide bygningen fra 1875 ligger i en idyllisk, prisbelønnet bakgård og er betydelig oppgradert innvendig og utvendig.
- Schmidt Kjøkken (2020) med hvitevarer fra italienske Steel Cucine (2017)
- Downlights på stue, kjøkken og bad
- Varmeeffektiv klebersteinsovn og varmepumpe
- Pipe med ny stålinnsats
- Moderne, smakfulle interiørløsninger
- Eksklusive materialvalg
- Delvis smart elektrisk anlegg fra 2021/2025 og ny varmtvannsbereder
- Fasaden pusset opp med nye vinduer i 2020/21
- Kjeller med stort utviklingspotensial
NB: Knappen for å vise hele beskrivelsen har kun en visuell effekt.
NB: Knappen for å vise hele beskrivelsen har kun en visuell effekt.
Salgsoppgaven beskriver vesentlig og lovpålagt informasjon om eiendommen
Se komplett salgsoppgaveNyttige lenker
Nærområdet
Nordvik St.Hanshaugen
Annonseinformasjon
| FINN-kode | 435897651 |
|---|---|
| Sist endret | 08. mars 2026 08:57 |
| Referanse | 5-0504/25 |
Annonsene kan være mangelfulle i forhold til lovpålagt opplysningsplikt. Før bindende avtale inngås oppfordres interessenter til å innhente komplett informasjon fra meglerforetaket, selger eller utleier.

























































