Bildegalleri

Lys og flott 2-roms på 50 m².
Persaunet
LYS OG FLOTT 2-ROMS PÅ 50 m². Meste inkludert i fellesutgifter. Sentralt, i rolige omgivelser. Parkering. IN-ordning.
Prisantydning2 350 000 kr
Nøkkelinfo
- Boligtype
- Leilighet
- Eieform
- Andel
- Soverom
- 1
- Internt bruksareal
- 50 m² (BRA-i)
- Bruksareal
- 50 m²
- Etasje
- 2
- Byggeår
- 1941
- Energimerking
- G - Mørkegrønn
- Rom
- 2
- Tomteareal
- 722 m² (eiet)
Fasiliteter
Garasje/P-plass
Kabel-TV
Offentlig vann/kloakk
Parkett
Sentralt
Bredbåndstilknytning
Moderne
Rolig
Balansert ventilasjon
Om boligen
LYS OG FLOTT 2-ROMS PÅ 50 m².
- Meste inkludert i felleskostnader. IN-ordning, fellesgjeld kan innfris
- Sentralt beliggende, i grønne og rolige omgivelser.
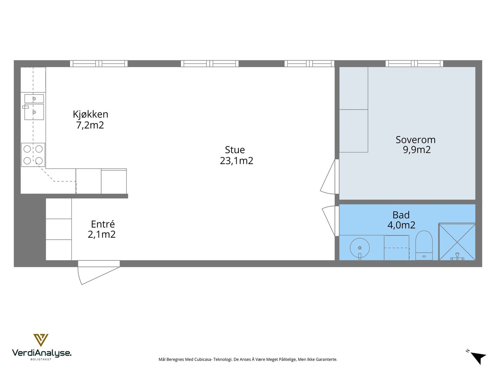
- Romslig og fin planløsning. Store rom, med god arealfordeling
- Moderne, innbydende standard, renovert i 2007
- Parkettgulv, delikate fargevalg og spotter i tak
- Lys, luftig stue på 23,1 m². Flere store vindusflater gir masse lys og luft
- Vinduer er i god stand, vurdert til TG1 av takstmann
- Balansert ventilasjon og fjernvarme gir en god varme og atmosfære
- Hvitt, stilrent kjøkken på 7,2 m²
- God plass til egen spisestue
- Pent flislagt bad. Stilig dusjhjørne. Behagelig gulvvarme. Opplegg for vaskemaskin
- Stort soverom på 9,9 m². Skyvedørsgarderobe
- Stor bod i kjeller på 9 m²
- Umiddelbar nærhet til buss og butikk. Kort vei til Sirkus shopping. Gang- og sykkelavstand til Solsiden og Midtbyen
NB: Knappen for å vise hele beskrivelsen har kun en visuell effekt.
NB: Knappen for å vise hele beskrivelsen har kun en visuell effekt.
Salgsoppgaven beskriver vesentlig og lovpålagt informasjon om eiendommen
Se komplett salgsoppgaveNyttige lenker
Nærområdet
EiendomsMegler 1 Valentinlyst
Vi loser deg trygt gjennom hele boligsalget
Annonseinformasjon
| FINN-kode | 435848777 |
|---|---|
| Sist endret | 13. jan. 2026 05:02 |
| Referanse | 34250357 |
Annonsene kan være mangelfulle i forhold til lovpålagt opplysningsplikt. Før bindende avtale inngås oppfordres interessenter til å innhente komplett informasjon fra meglerforetaket, selger eller utleier.





























