Bildegalleri

Velkommen til Suhms gate 32, presentert av Susanna Hjelset ved Nordvik Bygdøy Allè!
Ettertraktet leilighet, 2 plan m/ townhousefølelse - Solrik privat hage - Garasjeplass og heis - Mulig 4 eller 5 soverom
Prisantydning14 990 000 kr
Nøkkelinfo
- Boligtype
- Leilighet
- Eieform
- Eier (Selveier)
- Soverom
- 4
- Internt bruksareal
- 132 m² (BRA-i)
- Bruksareal
- 139 m²
- Eksternt bruksareal
- 7 m² (BRA-e)
- Balkong/Terrasse
- 14 m² (TBA)
- Byggeår
- 2004
- Energimerking
- F - Mørkegrønn
- Rom
- 5
- Tomteareal
- 13 641 m² (eiet)
Fasiliteter
Balkong/Terrasse
Barnevennlig
Bredbåndstilknytning
Garasje/P-plass
Heis
Kjæledyr tillatt
Parkett
Rolig
Sentralt
Vaktmester-/vektertjeneste
Turterreng
Om boligen
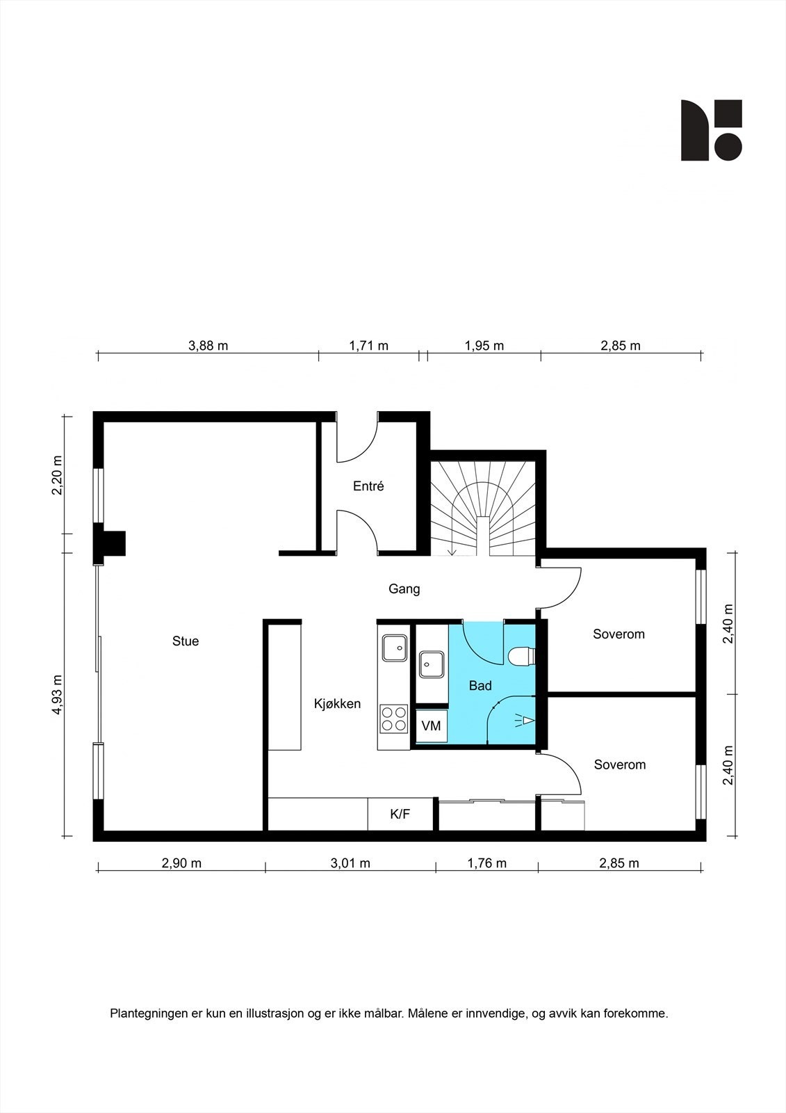
Velkommen til Suhms gate 32 en lys og innholdsrik leilighet over to etasjer. Boligen har en svært sentral og attraktiv beliggenhet, med gode solforhold og lite innsyn. Fra stuen har du direkte utgang til en privat hageparsell med en solrik terrasse på ca. 14 kvm. Her bor du i et populært og sentralt område på Majorstuen, med kort vei til butikker, hyggelige handlegater, parker og gode kollektivforbindelser.
Høydepunkter:
Sentralt, trivelig og barnevennlig område med flotte fellesarealer og lekeplass
Sykkelparkering
Fleksibel planløsning med flere mulige rominndelinger (se alternative plantegninger)
Velfungerende sameie med vaktmestertjeneste
Egen hageparsell med svært gode solforhold
Garasjeplass
To fulle bad
Per nå 3 romslige soverom, kan enkelt gjøres til 4 eller 5 soverom!
Høydepunkter:
Sentralt, trivelig og barnevennlig område med flotte fellesarealer og lekeplass
Sykkelparkering
Fleksibel planløsning med flere mulige rominndelinger (se alternative plantegninger)
Velfungerende sameie med vaktmestertjeneste
Egen hageparsell med svært gode solforhold
Garasjeplass
To fulle bad
Per nå 3 romslige soverom, kan enkelt gjøres til 4 eller 5 soverom!
NB: Knappen for å vise hele beskrivelsen har kun en visuell effekt.
NB: Knappen for å vise hele beskrivelsen har kun en visuell effekt.
Salgsoppgaven beskriver vesentlig og lovpålagt informasjon om eiendommen
Se komplett salgsoppgaveNyttige lenker
Nærområdet
Nordvik Bygdøy Allé
Annonseinformasjon
| FINN-kode | 435565672 |
|---|---|
| Sist endret | 09. des. 2025 09:35 |
| Referanse | 13-0497/25 |
Annonsene kan være mangelfulle i forhold til lovpålagt opplysningsplikt. Før bindende avtale inngås oppfordres interessenter til å innhente komplett informasjon fra meglerforetaket, selger eller utleier.








































