Bildegalleri

EiendomsMegler1 v/Kenneth Johansen har gleden av å presentere Horgsletta 38! Fotograf: Krokstad & Nervik (Jens Martin Nervik)
DELIKAT OG MODERNE 2-ROMS SELVEIER FRA 2018 | Attraktiv beliggenhet | Solrik balkong | TG0/TG1 på "alt" | P-plass | Heis
Prisantydning3 150 000 kr
Nøkkelinfo
- Boligtype
- Leilighet
- Eieform
- Eier (Selveier)
- Soverom
- 1
- Internt bruksareal
- 49 m² (BRA-i)
- Bruksareal
- 54 m²
- Eksternt bruksareal
- 5 m² (BRA-e)
- Balkong/Terrasse
- 8 m² (TBA)
- Etasje
- 2
- Byggeår
- 2018
- Energimerking
- B - Mørkegrønn
- Tomteareal
- 8 954 m² (eiet)
Fasiliteter
Barnevennlig
Balkong/Terrasse
Garasje/P-plass
Kabel-TV
Heis
Offentlig vann/kloakk
Parkett
Turterreng
Utsikt
Vaktmester-/vektertjeneste
Sentralt
Bredbåndstilknytning
Moderne
Rolig
Balansert ventilasjon
Visning
onsdag, 07. januar
16:30 – 17:15
Våre visninger har påmelding. Dette gjør vi for å kunne yte bedre service for våre kunder. Verdifullt for boligkjøper og for oss. Vi anbefaler at salgsoppgaven lastes ned digitalt før visning, og ring oss gjerne på forhånd for spørsmål om boligen. Passer ikke angitt tidspunkt, ta kontakt så finner vi en løsning. Skulle det mot formodning ikke være påmeldte til angitt visningstidspunkt vil ikke visning bli gjennomført.
Om boligen
EiendomsMegler1 ved Kenneth Johansen har gleden av presentere Horgsletta 38!
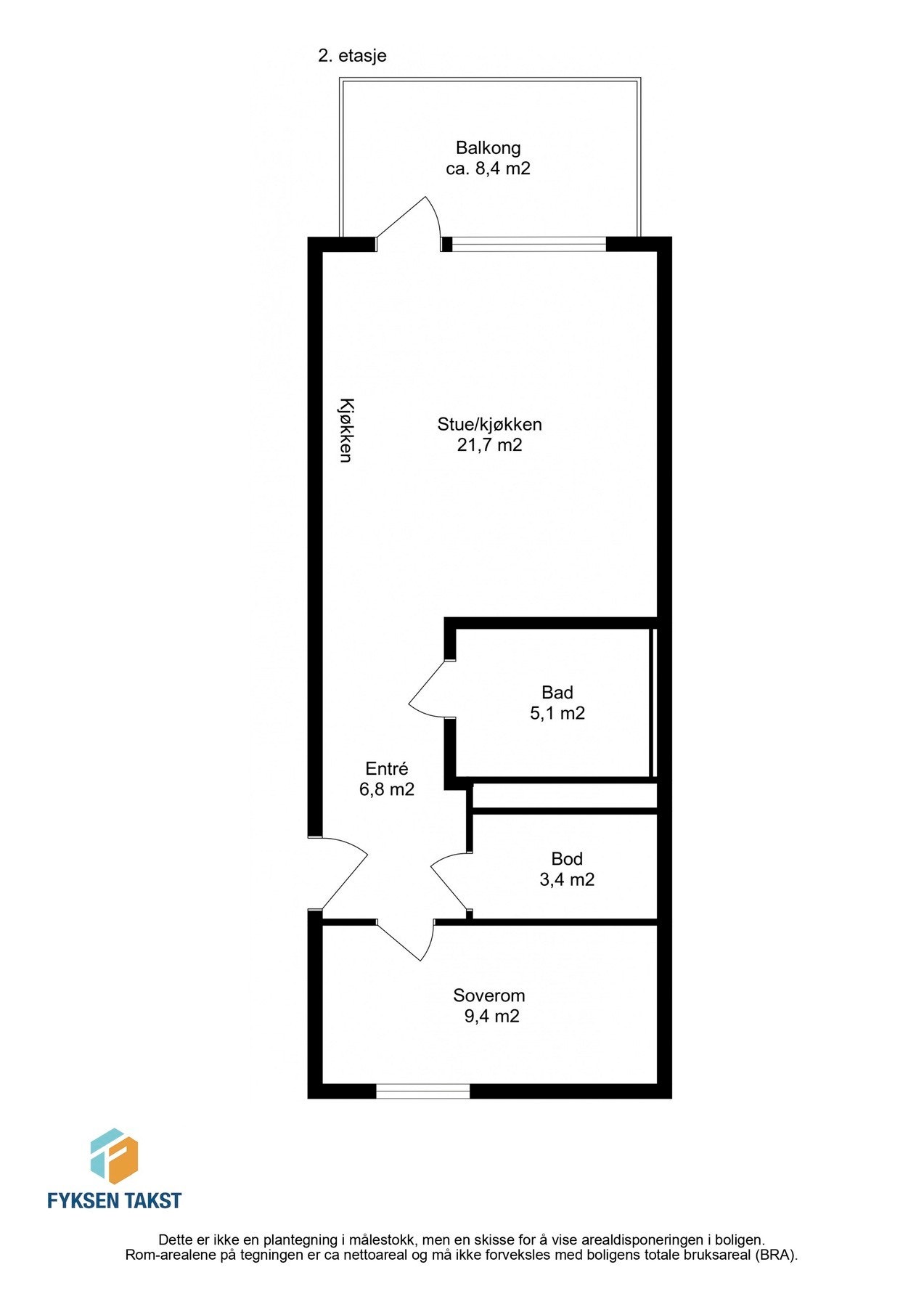
Nå har du muligheten til å sikre deg en delikat 2-roms selveierleilighet på 49m² BRA-i, oppført så sent som i 2018. Boligen holder en særdeles god standard, noe som også gjenspeiles i tilstandsrapporten fra takstmann med TG1/TG0 på samtlige punkter. Leiligheten har en god planløsning i byggets 2.etasje med blant annet en romslig åpen stue-/kjøkkenløsning, pent flislagt bad, praktisk innvendig bod, romslig soverom og en herlig sør-/vestvendt balkong med gode sol- og utsiktsforhold. Leiligheten har en attraktiv beliggenhet og ligger i et sentralt og rolig nabolag på Ranheim. Korte avstander til blant annet dagligvarebutikk, treningssenter, kollektivtransport og flotte tur- og rekreasjonsområder.
Av flere kvaliteter kan man spesielt nevne:
Velkommen til en hyggelig visning!
Nå har du muligheten til å sikre deg en delikat 2-roms selveierleilighet på 49m² BRA-i, oppført så sent som i 2018. Boligen holder en særdeles god standard, noe som også gjenspeiles i tilstandsrapporten fra takstmann med TG1/TG0 på samtlige punkter. Leiligheten har en god planløsning i byggets 2.etasje med blant annet en romslig åpen stue-/kjøkkenløsning, pent flislagt bad, praktisk innvendig bod, romslig soverom og en herlig sør-/vestvendt balkong med gode sol- og utsiktsforhold. Leiligheten har en attraktiv beliggenhet og ligger i et sentralt og rolig nabolag på Ranheim. Korte avstander til blant annet dagligvarebutikk, treningssenter, kollektivtransport og flotte tur- og rekreasjonsområder.
Av flere kvaliteter kan man spesielt nevne:
- Åpen stue-/kjøkkenløsning på ca. 21,7m² med ypperlige møbleringsmuligheter
- Lekker kjøkkeninnredning med integrerte hvitevarer og mye skap- og benkeplass
- Romslig soverom på ca. 9,4m² med god plass til ønsket soveromsmøblement
- Sør-/vestvendt balkong på ca. 8,4m² med gode sol- og utsiktsforhold
- Delikat bad med hvit, stilren innredning og alt man trenger
- Praktisk innvendig bod og en ekstra bod i felles garasjeanlegg
- Leiligheten disponerer en P-plass med elbil-lader
- Fjernvarme samt. kabel-TV/internett inkl. i felleskostnadene
Velkommen til en hyggelig visning!
NB: Knappen for å vise hele beskrivelsen har kun en visuell effekt.
NB: Knappen for å vise hele beskrivelsen har kun en visuell effekt.
Salgsoppgaven beskriver vesentlig og lovpålagt informasjon om eiendommen
Se komplett salgsoppgaveNyttige lenker
Nærområdet
EiendomsMegler 1 Grilstadporten
Vi loser deg trygt gjennom hele boligsalget
Annonseinformasjon
| FINN-kode | 435539634 |
|---|---|
| Sist endret | 25. des. 2025 15:01 |
| Referanse | 33250117 |
Annonsene kan være mangelfulle i forhold til lovpålagt opplysningsplikt. Før bindende avtale inngås oppfordres interessenter til å innhente komplett informasjon fra meglerforetaket, selger eller utleier.










































