Bildegalleri

Fasade/tomt.
Nøtterøy/Torød
Pen og velholdt enebolig beliggende i landlige og naturskjønne omgivelser på Torød. Sol hele dagen!
Prisantydning5 250 000 kr
Nøkkelinfo
- Boligtype
- Enebolig
- Eieform
- Eier (Selveier)
- Soverom
- 4
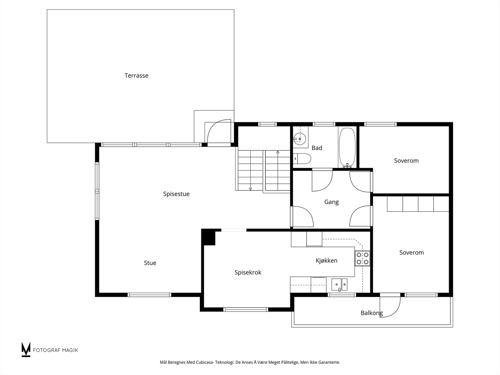
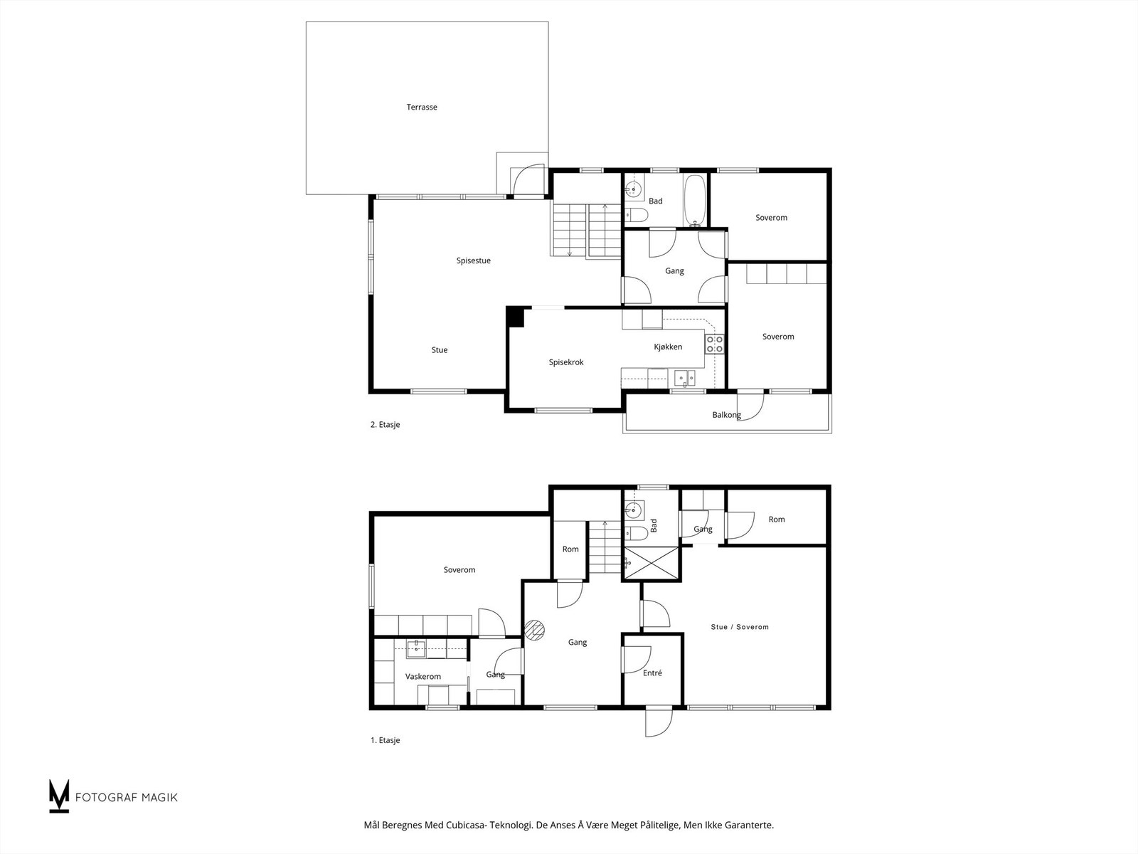
- Internt bruksareal
- 171 m² (BRA-i)
- Bruksareal
- 205 m²
- Eksternt bruksareal
- 34 m² (BRA-e)
- Balkong/Terrasse
- 43 m² (TBA)
- Byggeår
- 1976
- Energimerking
- G - Oransje
- Rom
- 6
- Tomteareal
- 1 528 m² (eiet)
Fasiliteter
Balkong/Terrasse
Barnevennlig
Bredbåndstilknytning
Garasje/P-plass
Hage
Kjæledyr tillatt
Peis/Ildsted
Rolig
Sentralt
Utsikt
Turterreng
Lademulighet
Visning
Ta kontakt dersom man ønsker privatvisning.
For å delta på visning, ber vi om at du melder deg på. Da sikrer vi at du får nødvendig informasjon og at det er satt av tilstrekkelig med tid. Kontakt megler dersom annet tidspunkt ønskes. Husk å lese salgsoppgaven før visningen, så du stiller forberedt. Ønsker du kun å bli holdt orientert, kan du fra eiendommens hjemmeside få varsel om solgtpris, eller kontakte megler.
VisningspåmeldingOm boligen
Velkommen til en romslig og innbydende enebolig over to etasjer med dobbel garasje. Eiendommen ligger fint og solrikt til på Torød på en stor, pent opparbeidet tomt med god plass til både lek og hageglede. Boligen fremstår som solid og godt vedlikeholdt, med en rekke oppgraderinger utført siden eier kjøpte i 2005. Boligen er svært innholdsrik, går over to plan og inneholder entré/hall, tv-stue/soverom, vaskerom, tre soverom, to bad, stue, kjøkken samt flere boder.
En flott familiebolig med mange gode kvaliteter!
En flott familiebolig med mange gode kvaliteter!
NB: Knappen for å vise hele beskrivelsen har kun en visuell effekt.
NB: Knappen for å vise hele beskrivelsen har kun en visuell effekt.
Salgsoppgaven beskriver vesentlig og lovpålagt informasjon om eiendommen
Se komplett salgsoppgaveNyttige lenker
Nærområdet
Krogsveen Tønsberg
Velkommen til en enklere boligreise.
Annonseinformasjon
| FINN-kode | 435091114 |
|---|---|
| Sist endret | 02. des. 2025 09:14 |
| Referanse | KR21.25163 |
Annonsene kan være mangelfulle i forhold til lovpålagt opplysningsplikt. Før bindende avtale inngås oppfordres interessenter til å innhente komplett informasjon fra meglerforetaket, selger eller utleier.









































































