Bildegalleri

Velkommen til Døliringen 30A! En flott 2-roms andelsleilighet med balkong og garasjeplass. Foto: Espen Døhlen v/ImageDay
Lys og moderne 2-roms fra 2022 m/garasjeplass | Balkong | Sentralvarme | Ingen forkjøpsrett
Prisantydning1 290 000 kr
Nøkkelinfo
- Boligtype
- Leilighet
- Eieform
- Andel
- Soverom
- 1
- Internt bruksareal
- 41 m² (BRA-i)
- Bruksareal
- 44 m²
- Eksternt bruksareal
- 3 m² (BRA-e)
- Balkong/Terrasse
- 8 m² (TBA)
- Etasje
- 2
- Byggeår
- 2022
- Energimerking
- Rom
- 2
- Tomteareal
- 435 m² (eiet)
Fasiliteter
Balkong/Terrasse
Garasje/P-plass
Heis
Parkett
Sentralt
Visning
torsdag, 19. mars
17:30 – 18:15
Ønsker du å delta på visningen ber vi deg melde deg på slik at vi vet at du kommer. Da kan vi bistå alle best mulig og gi deg tiden du trenger på visningen. Ta gjerne kontakt med megler på tlf. +47 948 41 566 før visning hvis du har noen spørsmål. Velkommen!
VisningspåmeldingOm boligen
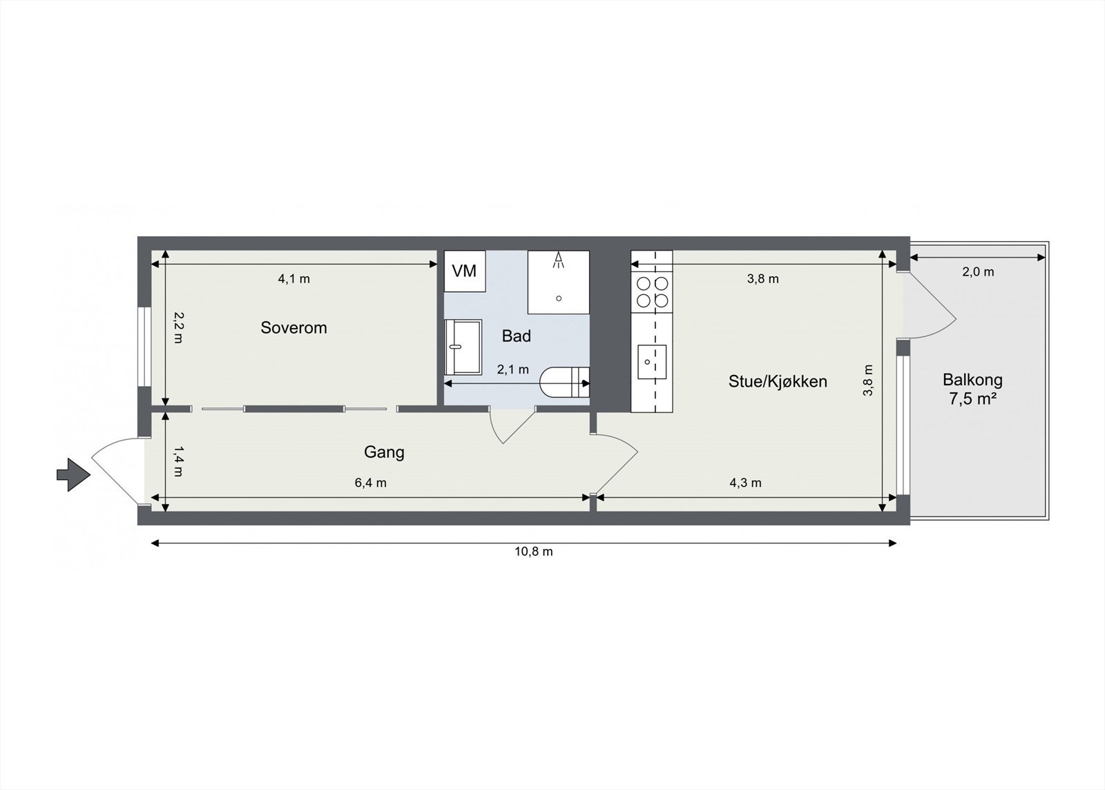
Velkommen til Døliringen 30A!
En lys og moderne 2-roms andelsleilighet fra 2022, med sentral beliggenhet på Jessheim. Her bor du med gangavstand til alt av servicetilbud med Jessheim Storsenter, togstasjon, skoler og barnehager. Området har også god tilgang til turmuligheter i skog og mark.
Leiligheten har en gjennomgående god standard med parkettgulv, lyse vegger og en åpen praktisk planløsning med stue og kjøkken. Stuen har store vindusflater og direkte tilgang til en flott balkong på 7,5 m². Kjøkkenet er moderne og har integrerte hvitevarer. Videre er det et pent flislagt bad med opplegg for vaskemaskin og et komfortabelt soverom. Sentralvarme med radiator gir lun varme og heisen, garasjeplass og kjellerbod bidrar til en enkel hverdag.
Velkommen til visning!
En lys og moderne 2-roms andelsleilighet fra 2022, med sentral beliggenhet på Jessheim. Her bor du med gangavstand til alt av servicetilbud med Jessheim Storsenter, togstasjon, skoler og barnehager. Området har også god tilgang til turmuligheter i skog og mark.
Leiligheten har en gjennomgående god standard med parkettgulv, lyse vegger og en åpen praktisk planløsning med stue og kjøkken. Stuen har store vindusflater og direkte tilgang til en flott balkong på 7,5 m². Kjøkkenet er moderne og har integrerte hvitevarer. Videre er det et pent flislagt bad med opplegg for vaskemaskin og et komfortabelt soverom. Sentralvarme med radiator gir lun varme og heisen, garasjeplass og kjellerbod bidrar til en enkel hverdag.
Velkommen til visning!
NB: Knappen for å vise hele beskrivelsen har kun en visuell effekt.
NB: Knappen for å vise hele beskrivelsen har kun en visuell effekt.
Salgsoppgaven beskriver vesentlig og lovpålagt informasjon om eiendommen
Se komplett salgsoppgaveNyttige lenker
Nærområdet
Eiendomsmegler 1 Jessheim
Vi loser deg trygt gjennom hele boligsalget
Annonseinformasjon
| FINN-kode | 434916073 |
|---|---|
| Sist endret | 12. mars 2026 13:02 |
| Referanse | 6021260082 |
Annonsene kan være mangelfulle i forhold til lovpålagt opplysningsplikt. Før bindende avtale inngås oppfordres interessenter til å innhente komplett informasjon fra meglerforetaket, selger eller utleier.























