Bildegalleri

Velkommen til Ruglsjølia 16 og 18, og denne flotte hytta beliggende i rolige og idylliske omgivelser på Glåmos/Røros! Foto: Oscar Stoltenberg
Rugldalen/Røros
Innholdsrik og flott hytte i naturskjønne omgivelser | Stor terrasse | Sommervann | Bilvei helt frem | Innlagt strøm
Prisantydning1 650 000 kr
- Omkostninger
- 62 240 kr
- Totalpris
- 1 712 240 kr
- Kommunale avg.
- 5 634 kr per år
Nøkkelinfo
- Beliggenhet
- På fjellet
- Boligtype
- Hytte
- Eieform
- Eier (Selveier)
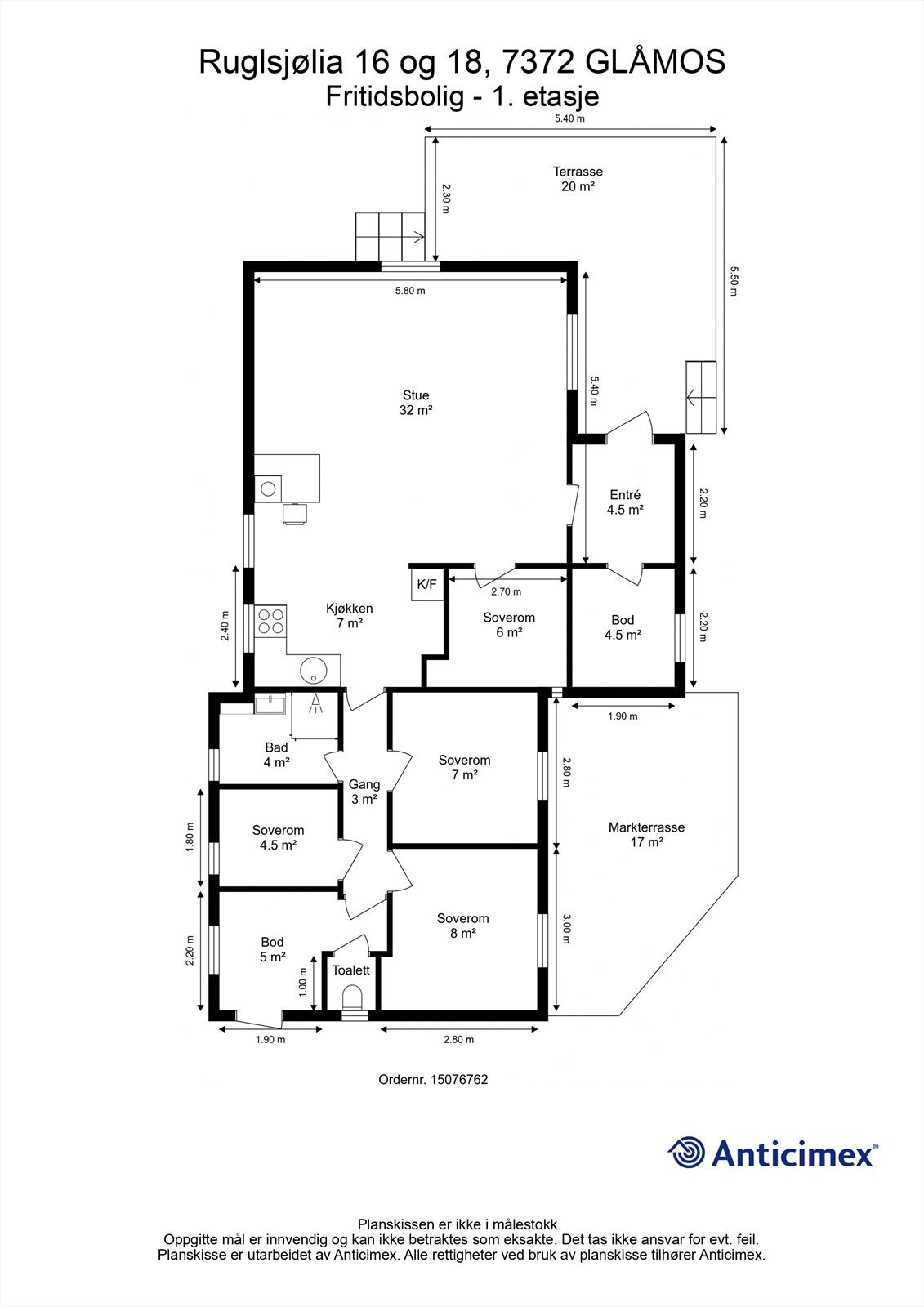
- Internt bruksareal
- 90 m² (BRA-i)
- Bruksareal
- 90 m²
- Balkong/Terrasse
- 37 m² (TBA)
- Tomteareal
- 1 624 m² (eiet)
- Byggeår
- 1972
- Soverom
- 1
- Rom
- 2
- Energimerking
- G - Oransje
Fasiliteter
Balkong/Terrasse
Barnevennlig
Bilvei frem
Garasje/P-plass
Peis/Ildsted
Rolig
Utsikt
Bademulighet
Fiskemulighet
Innlagt strøm
Turterreng
Visning
Ta kontakt med megler for avtale om privatvisning.
Ønsker du kun å bli holdt orientert, kan du fra eiendommens hjemmeside få varsel om solgtpris, eller kontakte megler.
VisningspåmeldingOm boligen
Velkommen til Ruglsjølia 16 og 18, og denne flotte hytta beliggende i rolige og idylliske omgivelser på Rugldalen/Røros! Her bor du med kort vei til blant annet preparerte skiløyper, flotte fjellturer, badevann og et rikt kulturliv.
Verdt å nevne:
- Pent opparbeidet naturtomt på hele 1,6 mål.
- God planløsning med smarte løsninger og godt med gjennomlys.
- Tilbaketrukket kjøkken med rikelig skap- og benkeplass.
- Romslig stue med god plass til både sofagruppe og spisegruppe.
- Terrasse med fantastiske solforhold og en nydelig utsikt.
- Bilvei helt frem og rikelig med parkeringsplasser på egen tomt.
- Sommervann til kran på terrassevegg og brønn på vinteren.
- Innlagt strøm og innebygd utedo i forbindelse med bod.
- Kort vei til Røros og en rekke sommer- og vinteraktiviteter.
Verdt å nevne:
- Pent opparbeidet naturtomt på hele 1,6 mål.
- God planløsning med smarte løsninger og godt med gjennomlys.
- Tilbaketrukket kjøkken med rikelig skap- og benkeplass.
- Romslig stue med god plass til både sofagruppe og spisegruppe.
- Terrasse med fantastiske solforhold og en nydelig utsikt.
- Bilvei helt frem og rikelig med parkeringsplasser på egen tomt.
- Sommervann til kran på terrassevegg og brønn på vinteren.
- Innlagt strøm og innebygd utedo i forbindelse med bod.
- Kort vei til Røros og en rekke sommer- og vinteraktiviteter.
NB: Knappen for å vise hele beskrivelsen har kun en visuell effekt.
NB: Knappen for å vise hele beskrivelsen har kun en visuell effekt.
Salgsoppgaven beskriver vesentlig og lovpålagt informasjon om eiendommen
Se komplett salgsoppgaveNyttige lenker
Nærområdet
Krogsveen Trondheim
Verdien av en god megler.
Annonseinformasjon
| FINN-kode | 434888555 |
|---|---|
| Sist endret | 04. mars 2026 09:23 |
| Referanse | KR68.25146 |
Annonsene kan være mangelfulle i forhold til lovpålagt opplysningsplikt. Før bindende avtale inngås oppfordres interessenter til å innhente komplett informasjon fra meglerforetaket, selger eller utleier.





























