Bildegalleri

Velkommen til Salhusvegen 213 - Presentert av eiendomsmegler Fred Lippens v/Eiendomsmegler A
Solgt
Haugesund - Sakkestad - Enebolig med stor tomt og flott sjøutsikt - Stort potensiale
Prisantydning4 490 000 kr
Nøkkelinfo
- Boligtype
- Enebolig
- Eieform
- Eier (Selveier)
- Soverom
- 5
- Internt bruksareal
- 293 m² (BRA-i)
- Bruksareal
- 312 m²
- Eksternt bruksareal
- 19 m² (BRA-e)
- Balkong/Terrasse
- 10 m² (TBA)
- Byggeår
- 1966
- Rom
- 8
- Tomteareal
- 1 278 m² (eiet)
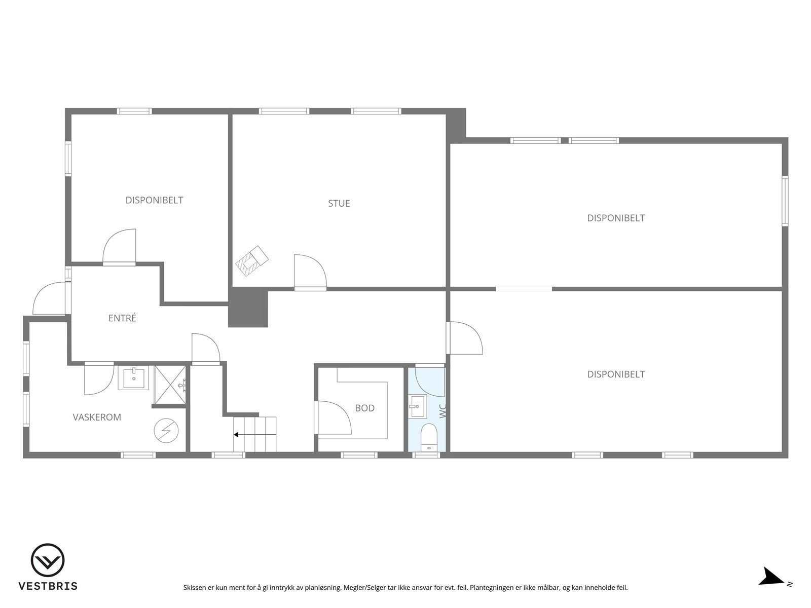
Om boligen
- Fantastisk beliggenhet like ved Solsiden - høyt og fritt over sjøen, og med spektakulær utsikt mot Karmsundet. Eiendommen må rett og slett må oppleves for å få riktig inntrykk!
- Fin, familievennlig planløsning med hele 5 soverom, 3 stuer, separat vaskerom og stor hage/uteområde. I hovedetasjen kommer den nydelige utsikten til sin rett via de store vindusflatene.
- Eiendommen er på hele 1278 kvm og er opparbeidet med flott hage med planter og busker. Hagen er relativt flat, og dermed enkel å vedlikeholde. Asfalt i gårdsrom.
- Garasje med plass til 1 bil. Enkel garasje bygget vegg i vegg med bolig.
- Takstmannen konkluderer: "Boligen fremstår som solid og i bra stand ihht alder. Det registreres avvik, men få avvik som krever umiddelbar utbedring".
- Oppussing må påregnes.
- Fin, familievennlig planløsning med hele 5 soverom, 3 stuer, separat vaskerom og stor hage/uteområde. I hovedetasjen kommer den nydelige utsikten til sin rett via de store vindusflatene.
- Eiendommen er på hele 1278 kvm og er opparbeidet med flott hage med planter og busker. Hagen er relativt flat, og dermed enkel å vedlikeholde. Asfalt i gårdsrom.
- Garasje med plass til 1 bil. Enkel garasje bygget vegg i vegg med bolig.
- Takstmannen konkluderer: "Boligen fremstår som solid og i bra stand ihht alder. Det registreres avvik, men få avvik som krever umiddelbar utbedring".
- Oppussing må påregnes.
NB: Knappen for å vise hele beskrivelsen har kun en visuell effekt.
NB: Knappen for å vise hele beskrivelsen har kun en visuell effekt.
Salgsoppgaven beskriver vesentlig og lovpålagt informasjon om eiendommen
Se komplett salgsoppgaveNyttige lenker
Nærområdet
Eiendomsmegler A AS
Det bor en A i oss alle
Annonseinformasjon
| FINN-kode | 434488981 |
|---|---|
| Sist endret | 16. feb. 2026 13:30 |
| Referanse | EMA1.25300 |
Annonsene kan være mangelfulle i forhold til lovpålagt opplysningsplikt. Før bindende avtale inngås oppfordres interessenter til å innhente komplett informasjon fra meglerforetaket, selger eller utleier.


























































