Bildegalleri

Velkommen til Marviksveien 53a, innholdsrik boligen med blant annet 2 hybler og leieinntekter pr kr 22.500,-
Lund
Moderne bolig med 2 utleieleiligheter med gode leieinntekter | Solrike uteplasser | Garasje | Sentralt
Prisantydning10 300 000 kr
Nøkkelinfo
- Boligtype
- Enebolig
- Eieform
- Eier (Selveier)
- Soverom
- 4
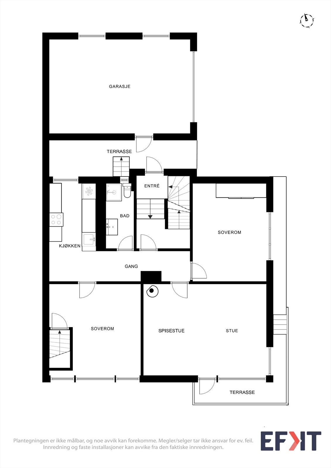
- Internt bruksareal
- 257 m² (BRA-i)
- Bruksareal
- 257 m²
- Balkong/Terrasse
- 48 m² (TBA)
- Etasje
- 1
- Byggeår
- 1939
- Rom
- 8
- Tomteareal
- 338 m² (eiet)
Fasiliteter
Balkong/Terrasse
Barnevennlig
Bredbåndstilknytning
Garasje/P-plass
Hage
Kjæledyr tillatt
Offentlig vann/kloakk
Peis/Ildsted
Rolig
Sentralt
Bademulighet
Turterreng
Lademulighet
Om boligen
Drømmer du om en innholdsrik hel tomannsbolig med leieinntekter og sentral beliggenhet?
Velkommen til Marviksveien 53A - en flott og oppgradert bolig på populære Lund!
Her får du en moderne bolig med god plass, solrike uteplasser og to utleieenheter som gir ca. 22.500,- i måneden. Perfekt for deg som vil bo rimelig, investere smart eller kombinere generasjonsbolig med ekstra inntekt.
Du bor i et etablert nabolag med kort vei til sentrum, skoler, barnehager, butikker og flotte turområder som Bertesbukta og Jegersberg. Boligen har lyse rom, moderne uttrykk og praktiske løsninger, samt parkering på egen tomt/garasje.
En flott mulighet og du får - komfort, plass og gode leieinntekter på én adresse!
Velkommen på visning.
Velkommen til Marviksveien 53A - en flott og oppgradert bolig på populære Lund!
Her får du en moderne bolig med god plass, solrike uteplasser og to utleieenheter som gir ca. 22.500,- i måneden. Perfekt for deg som vil bo rimelig, investere smart eller kombinere generasjonsbolig med ekstra inntekt.
Du bor i et etablert nabolag med kort vei til sentrum, skoler, barnehager, butikker og flotte turområder som Bertesbukta og Jegersberg. Boligen har lyse rom, moderne uttrykk og praktiske løsninger, samt parkering på egen tomt/garasje.
En flott mulighet og du får - komfort, plass og gode leieinntekter på én adresse!
Velkommen på visning.
NB: Knappen for å vise hele beskrivelsen har kun en visuell effekt.
NB: Knappen for å vise hele beskrivelsen har kun en visuell effekt.
Salgsoppgaven beskriver vesentlig og lovpålagt informasjon om eiendommen
Se komplett salgsoppgaveNærområdet
SPARESKILLINGSMEGLEREN AS
Vi selger ikke boliger, vi selger hjem.
Annonseinformasjon
| FINN-kode | 434442881 |
|---|---|
| Sist endret | 03. des. 2025 09:42 |
| Referanse | SM1.2548 |
Annonsene kan være mangelfulle i forhold til lovpålagt opplysningsplikt. Før bindende avtale inngås oppfordres interessenter til å innhente komplett informasjon fra meglerforetaket, selger eller utleier.




















































