Bildegalleri

Bildet er kun ment å være av illustrativ karakter og avvik kan forekomme. Illustrasjoner kan vise elementer og tilvalg som ikke er en del av standard leveransen.
Unik 2-roms toppleilighet | Store takvinduer | Felles solrik takterrasse | Heis
Nøkkelinfo
- Boligtype
- Leilighet
- Eieform
- Andel
- Soverom
- 1
- Internt bruksareal
- 42 m² (BRA-i)
- Bruksareal
- 44 m²
- Eksternt bruksareal
- 2 m² (BRA-e)
- Etasje
- 5
- Rom
- 2
- Tomteareal
- 1 283 m²
Fasiliteter
Visning
Om boligen
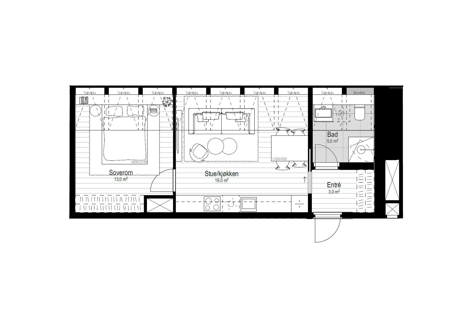
Nå har du mulighten til å sikre deg en unik 2-roms toppleilighet. Leiligheten ligger i 5. etasje, med heis direkte opp. Her får du et hjem med unik karakter, blant annet takket være de store og sammenhengende takvinduene som slipper inn masse naturlig lys i alle rom.
I tillegg til å bo på toppen, får du i samme etasje tilgang til en vestvendt og solrik felles takterrasse - et ideelt sted å nyte rolige ettermiddager.
- Store takvinduer som skaper en lys og luftig atmosfære
- Kjøkken fra Drømmekjøkkenet med integrerte hvitevarer
- Delikat flislagt bad
- Romslig soverom med god plass til garderobe
- Direkte adkomst til den herlige felles takterrassen i samme etg
Forventet ferdigstillelse er august/september 2026.
Fagerborg Sentral ligger midt mellom Fagerborg og Majorstuen i stille og rolig gate.
Salgsoppgaven beskriver vesentlig og lovpålagt informasjon om eiendommen
Se komplett salgsoppgaveNyttige lenker
Nærområdet

PrivatMegleren Allé
Annonseinformasjon
| FINN-kode | 434107251 |
|---|---|
| Sist endret | 28. des. 2025 07:04 |
| Referanse | 186250310 |
Annonsene kan være mangelfulle i forhold til lovpålagt opplysningsplikt. Før bindende avtale inngås oppfordres interessenter til å innhente komplett informasjon fra meglerforetaket, selger eller utleier.














