Bildegalleri

Velkommen til Børjerlia 19!
Lommedalen
Arkitekttegnet enebolig med nydelig særpreg| Flott hage| Garasje| Rett ved marka, alpinbakke, skole og butikk| Utleiedel
Prisantydning13 750 000 kr
Nøkkelinfo
- Boligtype
- Enebolig
- Eieform
- Eier (Selveier)
- Soverom
- 5
- Internt bruksareal
- 288 m² (BRA-i)
- Bruksareal
- 288 m²
- Balkong/Terrasse
- 62 m² (TBA)
- Etasje
- 3
- Byggeår
- 2001
- Energimerking
- Rom
- 7
- Tomteareal
- 916 m² (eiet)
Fasiliteter
Alpinanlegg
Balkong/Terrasse
Barnevennlig
Garasje/P-plass
Golfbane
Hage
Ingen gjenboere
Kabel-TV
Offentlig vann/kloakk
Parkett
Peis/Ildsted
Rolig
Utsikt
Turterreng
Balansert ventilasjon
Om boligen
Her bor du omgitt av vakker natur i Lommedalen, med alpinanlegg, skiløyper, markastier og tennisbaner som nærmeste nabo. Det gir fantastiske muligheter for aktiviteter og opplevelser rett utenfor døren. For familier er dette perfekt utgangspunkt med gangavstand til skoler, barnehage og butikker. Hyggelig og familievennlig nabolag.
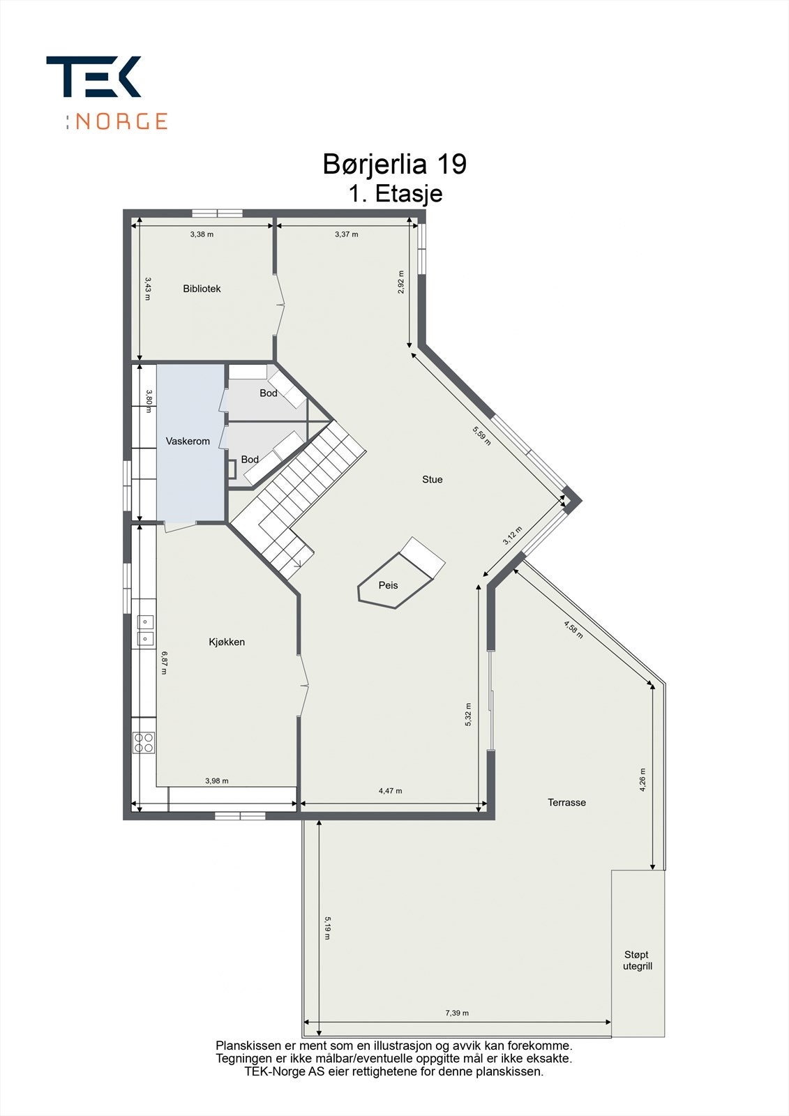
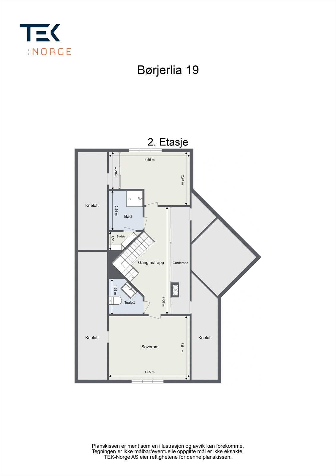
Eneboligen er stor og innholdsrik med utleiedel. Den er over tre etasjer med fem soverom, tre bad og badstue. Hovedetasjen har en romslig stue og bibliotek, samt et stort kjøkken med praktisk kjøkkenøy og dobbelfløyet dør til spisestuen, perfekt for familie og venner. Vaskerom og to boder praktisk plassert rett innenfor kjøkken. Fra boligen er det enkel adkomst til flott solrik hage med nydelig beplantning og uteområde. Stor dobbel garasje. Gode leieinntekter
Eneboligen er stor og innholdsrik med utleiedel. Den er over tre etasjer med fem soverom, tre bad og badstue. Hovedetasjen har en romslig stue og bibliotek, samt et stort kjøkken med praktisk kjøkkenøy og dobbelfløyet dør til spisestuen, perfekt for familie og venner. Vaskerom og to boder praktisk plassert rett innenfor kjøkken. Fra boligen er det enkel adkomst til flott solrik hage med nydelig beplantning og uteområde. Stor dobbel garasje. Gode leieinntekter
NB: Knappen for å vise hele beskrivelsen har kun en visuell effekt.
NB: Knappen for å vise hele beskrivelsen har kun en visuell effekt.
Salgsoppgaven beskriver vesentlig og lovpålagt informasjon om eiendommen
Se komplett salgsoppgaveNyttige lenker
Nærområdet
DNB Eiendom AS
Verdifulle salg
Annonseinformasjon
| FINN-kode | 433733111 |
|---|---|
| Sist endret | 19. mars 2026 20:17 |
| Referanse | 329250141 |
Annonsene kan være mangelfulle i forhold til lovpålagt opplysningsplikt. Før bindende avtale inngås oppfordres interessenter til å innhente komplett informasjon fra meglerforetaket, selger eller utleier.
































































