Bildegalleri

Romslig plass til både en hyggelig sittegruppe og dekorativ beplantning, noe som skaper en lun og trivelig uteplass. Foto: Aleksander Jacobsen.
Moderne og unik 3-roms toppleilighet med spektakulær utsikt mot sjøen. Heisadkomst og to parkeringsplasser. Må sees!
Prisantydning4 590 000 kr
Pris på lån: fra 18 838 kr/mnd
Eff.rente 5,15 %. 3 213 000 o/25 år. Kostnad: 2 438 400 kr. Totalt 5 651 400 kr.
LånekalkulatorNøkkelinfo
- Boligtype
- Leilighet
- Eieform
- Eier (Selveier)
- Soverom
- 2
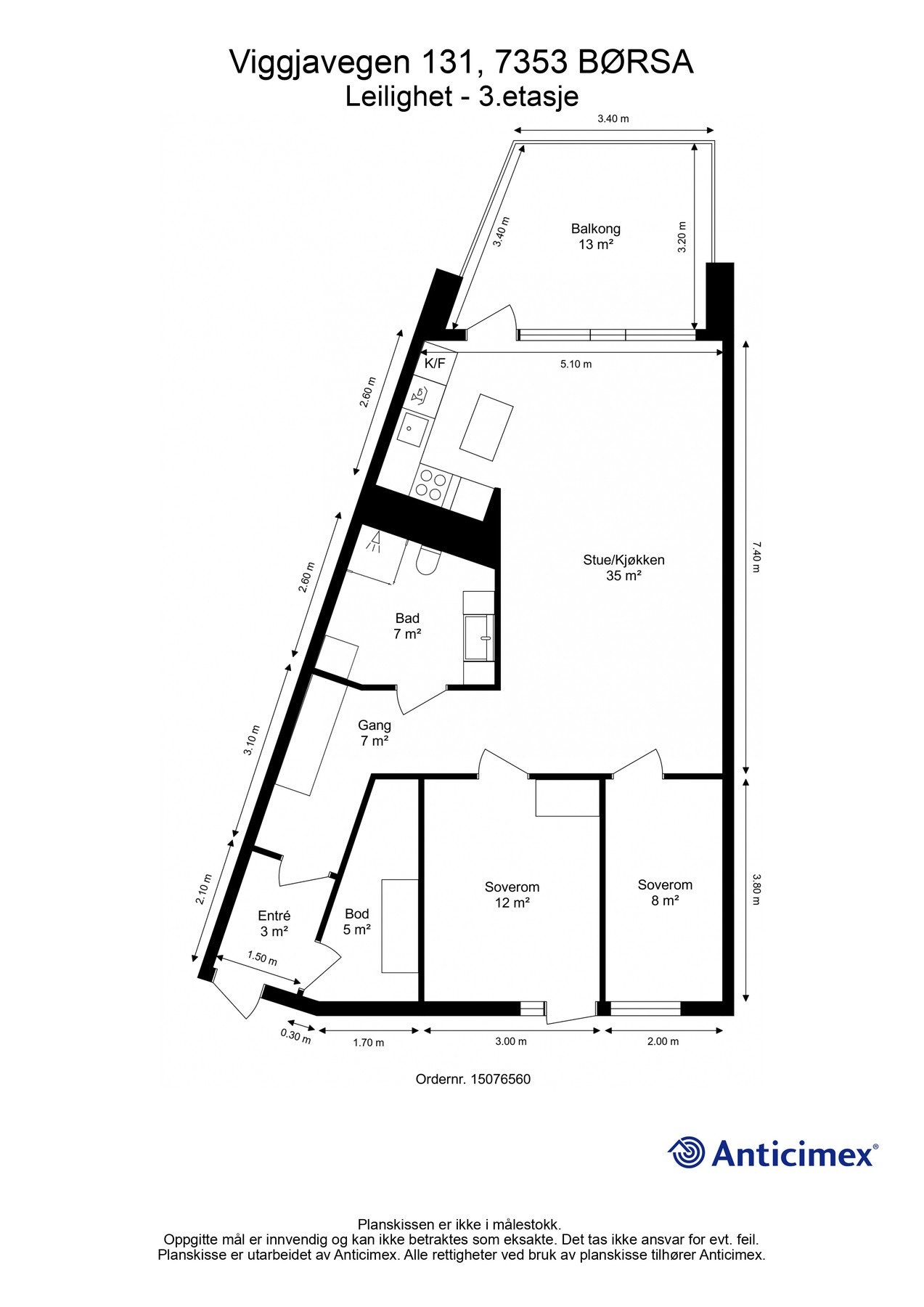
- Internt bruksareal
- 82 m² (BRA-i)
- Bruksareal
- 88 m²
- Eksternt bruksareal
- 6 m² (BRA-e)
- Balkong/Terrasse
- 21 m² (TBA)
- Etasje
- 3
- Byggeår
- 2013
- Energimerking
- C - Mørkegrønn
- Rom
- 3
- Tomteareal
- 6 679 m² (eiet)
Fasiliteter
Barnevennlig
Balkong/Terrasse
Garasje/P-plass
Kabel-TV
Heis
Offentlig vann/kloakk
Ingen gjenboere
Parkett
Strandlinje
Turterreng
Utsikt
Sentralt
Bredbåndstilknytning
Moderne
Rolig
Bademulighet
Lademulighet
Balansert ventilasjon
Om boligen
EIE eiendomsmegling ved Yasin Unal har gleden av å presentere Viggjavegen 131 - En moderne og gjennomført 3-romsleilighet fra 2013 med god standard, flott planløsning og nydelig utsikt mot sjøen og Byneset. Her får du en lys og luftig bolig med to uteplasser, vannbåren gulvvarme og parkeringsplasser i felles garasje. Leiligheten har en rolig og attraktiv beliggenhet i landlige omgivelser, med kort vei til både sjø, servicetilbud og flotte turområder.
Merk dette ved boligen:
- Stor balkong på ca. 13 kvm med fantastisk sjøutsikt
- Åpen stue- og kjøkkenløsning med moderne Mobalpa-innredning og integrerte hvitevarer
- Delikat bad med flislagte overflater og gulvvarme
- To soverom av god størrelse
- Vannbåren gulvvarme i alle rom unntatt soverom
- To biloppstillingsplasser i felles garasje med mulighet for elbillader
- Heis, callinganlegg og bod i garasjekjeller
- Rolig og tilbaketrukket beliggenhet med kort vei til sjø, skole, barnehage og dagligvare
Velkommen til visning!
Merk dette ved boligen:
- Stor balkong på ca. 13 kvm med fantastisk sjøutsikt
- Åpen stue- og kjøkkenløsning med moderne Mobalpa-innredning og integrerte hvitevarer
- Delikat bad med flislagte overflater og gulvvarme
- To soverom av god størrelse
- Vannbåren gulvvarme i alle rom unntatt soverom
- To biloppstillingsplasser i felles garasje med mulighet for elbillader
- Heis, callinganlegg og bod i garasjekjeller
- Rolig og tilbaketrukket beliggenhet med kort vei til sjø, skole, barnehage og dagligvare
Velkommen til visning!
NB: Knappen for å vise hele beskrivelsen har kun en visuell effekt.
NB: Knappen for å vise hele beskrivelsen har kun en visuell effekt.
Salgsoppgaven beskriver vesentlig og lovpålagt informasjon om eiendommen
Se komplett salgsoppgaveNyttige lenker
Nærområdet
EIE eiendomsmegling Heimdal
Annonseinformasjon
| FINN-kode | 433524786 |
|---|---|
| Sist endret | 20. nov. 2025 05:07 |
| Referanse | 97251183 |
Annonsene kan være mangelfulle i forhold til lovpålagt opplysningsplikt. Før bindende avtale inngås oppfordres interessenter til å innhente komplett informasjon fra meglerforetaket, selger eller utleier.





























