Bildegalleri

Herlig skjermet terrasse | Nytt terrassegulv i 2025
Solgt
Ganddal
Utmerket kjedet enebolig med 3 sov./helfliset bad/separat vaskerom/innbydende kjøkken | Skjermet uteareal
Prisantydning4 790 000 kr
Nøkkelinfo
- Boligtype
- Enebolig
- Eieform
- Eier (Selveier)
- Soverom
- 3
- Internt bruksareal
- 98 m² (BRA-i)
- Bruksareal
- 104 m²
- Eksternt bruksareal
- 6 m² (BRA-e)
- Balkong/Terrasse
- 55 m² (TBA)
- Byggeår
- 2011
- Energimerking
- B - Gul
- Tomteareal
- 208 m² (eiet)
Fasiliteter
Barnevennlig
Balkong/Terrasse
Garasje/P-plass
Peis/Ildsted
Utsikt
Bredbåndstilknytning
Moderne
Rolig
Lademulighet
Om boligen
Vi har gleden av å presentere en flott kjedet enebolig med delikat og innbydende standard sentralt plassert på Ganddal. Boligen var ny i 2011 og holder en gjennomført bra standard med fremtredende kvaliteter.
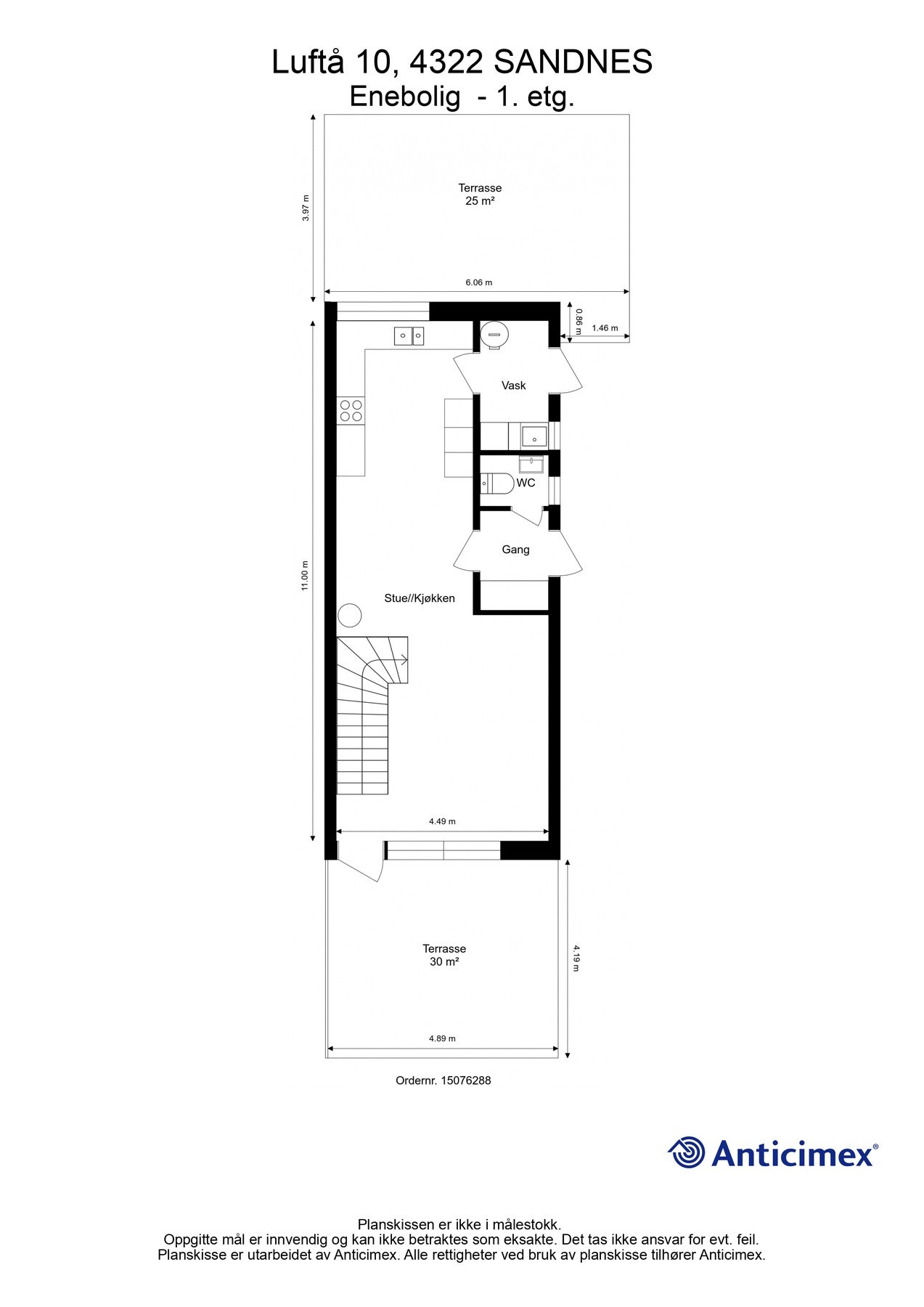
1.etg.:
Gang med speilsatt skyvedørsgarderobe og fliser med varme i gulv, gjestetoalett samt separat vaskerom med bi-inngang. Varme i gulv også her.
Meget pent kjøkken i lys utførelse. Integrert komfyr, mikrobølgeovn, oppvaskmaskin og kjøl/frys som medfølger handelen. Underlimt vask samt store vinduer over kjøkkenbenken.
Stuen er romslig, har vedovn sentralt plassert og med utgang til skjermet, lun og solrik terrasse.
2.etg.:
Gang med god kontorløsning eller plass til en mindre tv-sofa, bod, bad og tre soverom hvorav ett har stor speilsatt skyvedørsgarderobe.
Badet er helfliset, har varme i gulv og dusjhjørne installert.
Dersom du ser etter en gjennomført flott familiebolig så vil jeg på det sterkest legge turen til fellesvisning!
1.etg.:
Gang med speilsatt skyvedørsgarderobe og fliser med varme i gulv, gjestetoalett samt separat vaskerom med bi-inngang. Varme i gulv også her.
Meget pent kjøkken i lys utførelse. Integrert komfyr, mikrobølgeovn, oppvaskmaskin og kjøl/frys som medfølger handelen. Underlimt vask samt store vinduer over kjøkkenbenken.
Stuen er romslig, har vedovn sentralt plassert og med utgang til skjermet, lun og solrik terrasse.
2.etg.:
Gang med god kontorløsning eller plass til en mindre tv-sofa, bod, bad og tre soverom hvorav ett har stor speilsatt skyvedørsgarderobe.
Badet er helfliset, har varme i gulv og dusjhjørne installert.
Dersom du ser etter en gjennomført flott familiebolig så vil jeg på det sterkest legge turen til fellesvisning!
NB: Knappen for å vise hele beskrivelsen har kun en visuell effekt.
NB: Knappen for å vise hele beskrivelsen har kun en visuell effekt.
Salgsoppgaven beskriver vesentlig og lovpålagt informasjon om eiendommen
Se komplett salgsoppgaveNyttige lenker
Nærområdet
Verdi &Partners Sandnes
Verdien av lokalkunnskap
Annonseinformasjon
| FINN-kode | 433251430 |
|---|---|
| Sist endret | 01. nov. 2025 12:04 |
| Referanse | 203250119 |
Annonsene kan være mangelfulle i forhold til lovpålagt opplysningsplikt. Før bindende avtale inngås oppfordres interessenter til å innhente komplett informasjon fra meglerforetaket, selger eller utleier.





























