Bildegalleri

Velkommen til Vinderen/Slemdal
Påkostet familiebolig med solrik hage og dobbelgarasje med attraktiv beliggenhet i blindvei på Vinderen
Prisantydning20 990 000 kr
Nøkkelinfo
- Boligtype
- Enebolig
- Eieform
- Eier (Selveier)
- Soverom
- 3
- Internt bruksareal
- 194 m² (BRA-i)
- Bruksareal
- 229 m²
- Eksternt bruksareal
- 35 m² (BRA-e)
- Balkong/Terrasse
- 28 m² (TBA)
- Byggeår
- 1986
- Energimerking
- E - Oransje
- Rom
- 5
- Tomteareal
- 346 m² (eiet)
Fasiliteter
Barnevennlig
Balkong/Terrasse
Garasje/P-plass
Offentlig vann/kloakk
Parkett
Peis/Ildsted
Sentralt
Bredbåndstilknytning
Moderne
Rolig
Visning
onsdag, 18. februar
17:00 – 17:45
Velkommen til visning!
Vennligst merk at det kun gjennomføres visninger etter avtale innenfor angitt tidsrom. Ta kontakt for å booke deres tid.
Om boligen
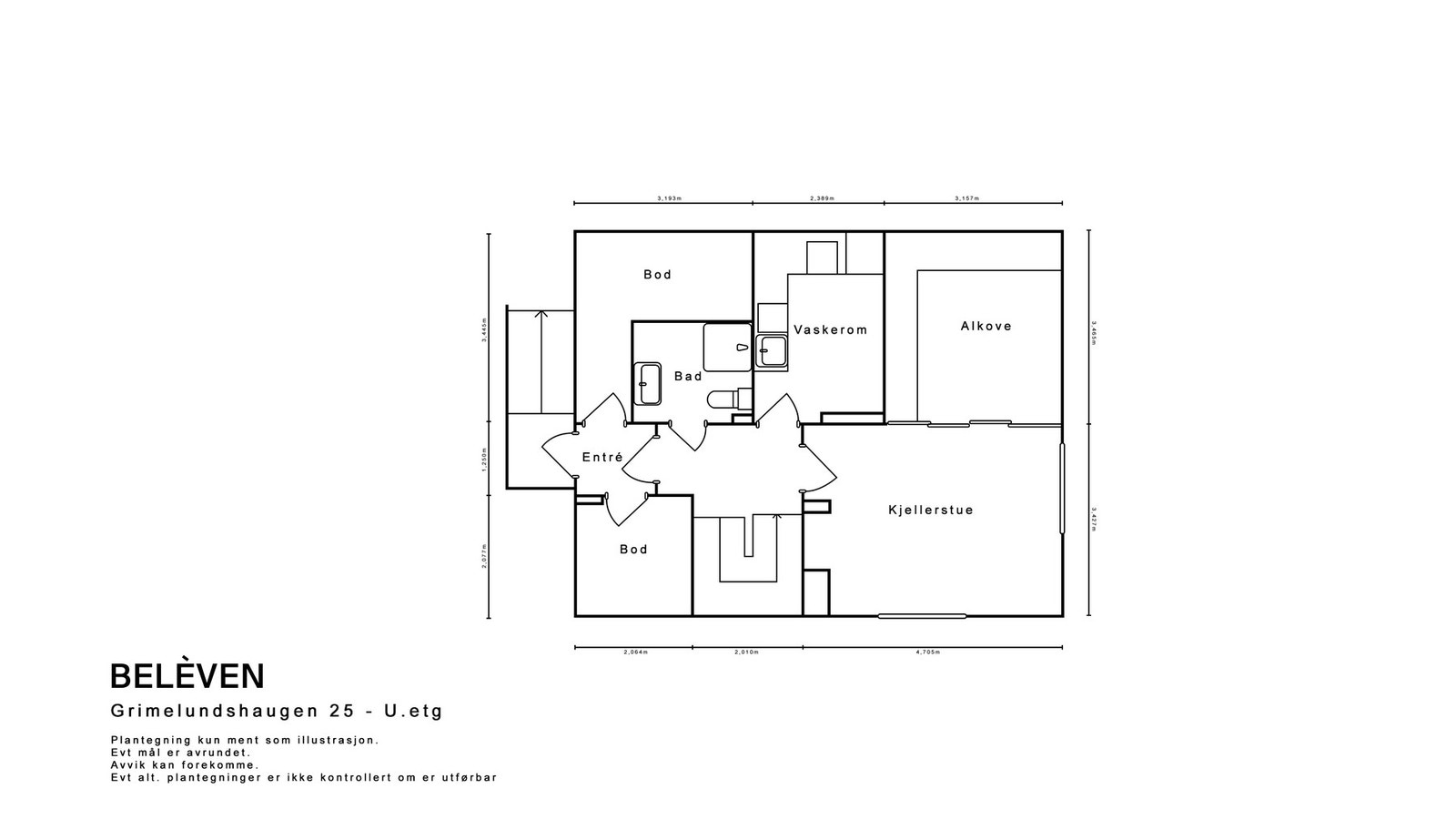
Grimelundshaugen 25 er en påkostet og innholdsrik kjedet enebolig med gjennomtenkt planløsning, flotte uteplasser og dobbelgarasje. Boligen går over to etasjer pluss innredet kjeller og har gjennomgått flere oppgraderinger, inkludert nytt kjøkken, ny parkett og forbedrede tekniske anlegg. Innvendig fremstår den som romslig og tiltalende, med romslig stue med gasspeis, moderne kjøkken, tre soverom, tre bad og ekstra kjellerstue med egen inngang. Den solrike terrassen, den pent opparbeidede hagen og den sjarmerende lekestuen skaper et innbydende og funksjonelt uterom for både store og små.
Eiendommen ligger i et svært attraktivt og barnevennlig boligområde øverst på Vinderen i Oslo vest, omgitt av grønne omgivelser og lite trafikk. Her bor man rolig og tilbaketrukket, med kort vei til "alt". Boligen har en attraktiv kjellerdel med egen inngang, som for ca 6 år siden ga leieinntekter på ca. kr 10 000,- pr. måned. En sjelden mulighet for både komfort og økonomisk fleksibilitet.
Eiendommen ligger i et svært attraktivt og barnevennlig boligområde øverst på Vinderen i Oslo vest, omgitt av grønne omgivelser og lite trafikk. Her bor man rolig og tilbaketrukket, med kort vei til "alt". Boligen har en attraktiv kjellerdel med egen inngang, som for ca 6 år siden ga leieinntekter på ca. kr 10 000,- pr. måned. En sjelden mulighet for både komfort og økonomisk fleksibilitet.
NB: Knappen for å vise hele beskrivelsen har kun en visuell effekt.
NB: Knappen for å vise hele beskrivelsen har kun en visuell effekt.
Salgsoppgaven beskriver vesentlig og lovpålagt informasjon om eiendommen
Se komplett salgsoppgaveNærområdet
Belèven Eiendomsmegling
Annonsene kan være mangelfulle i forhold til lovpålagt opplysningsplikt. Før bindende avtale inngås oppfordres interessenter til å innhente komplett informasjon fra meglerforetaket, selger eller utleier.























































