Bildegalleri

Fra kjøkkenet har man full oversikt over stuen og spisestuen.
Oppegård
Innholdsrik kjedet enebolig | Sydvestvendt terrasse på 55 kvm | Barnevennlig boområde | Carport m/ elbillader | Hage
Prisantydning7 800 000 kr
Nøkkelinfo
- Boligtype
- Enebolig
- Eieform
- Eier (Selveier)
- Soverom
- 3
- Internt bruksareal
- 147 m² (BRA-i)
- Bruksareal
- 153 m²
- Eksternt bruksareal
- 6 m² (BRA-e)
- Balkong/Terrasse
- 70 m² (TBA)
- Byggeår
- 1982
- Energimerking
- F - Oransje
- Rom
- 5
- Tomteareal
- 272 m² (eiet)
Fasiliteter
Balkong/Terrasse
Barnevennlig
Garasje/P-plass
Hage
Offentlig vann/kloakk
Peis/Ildsted
Rolig
Sentralt
Turterreng
Lademulighet
Visning
søndag, 11. januar
13:30 – 14:30
For å delta på visning, ber vi om at du melder deg på. Da sikrer vi at du får nødvendig informasjon og at det er satt av tilstrekkelig med tid. Kontakt megler dersom annet tidspunkt ønskes. Husk å lese salgsoppgaven før visningen, så du stiller forberedt.
Ønsker du kun å bli holdt orientert, kan du fra eiendommens hjemmeside få varsel om solgtpris, eller kontakte megler.
VisningspåmeldingOm boligen
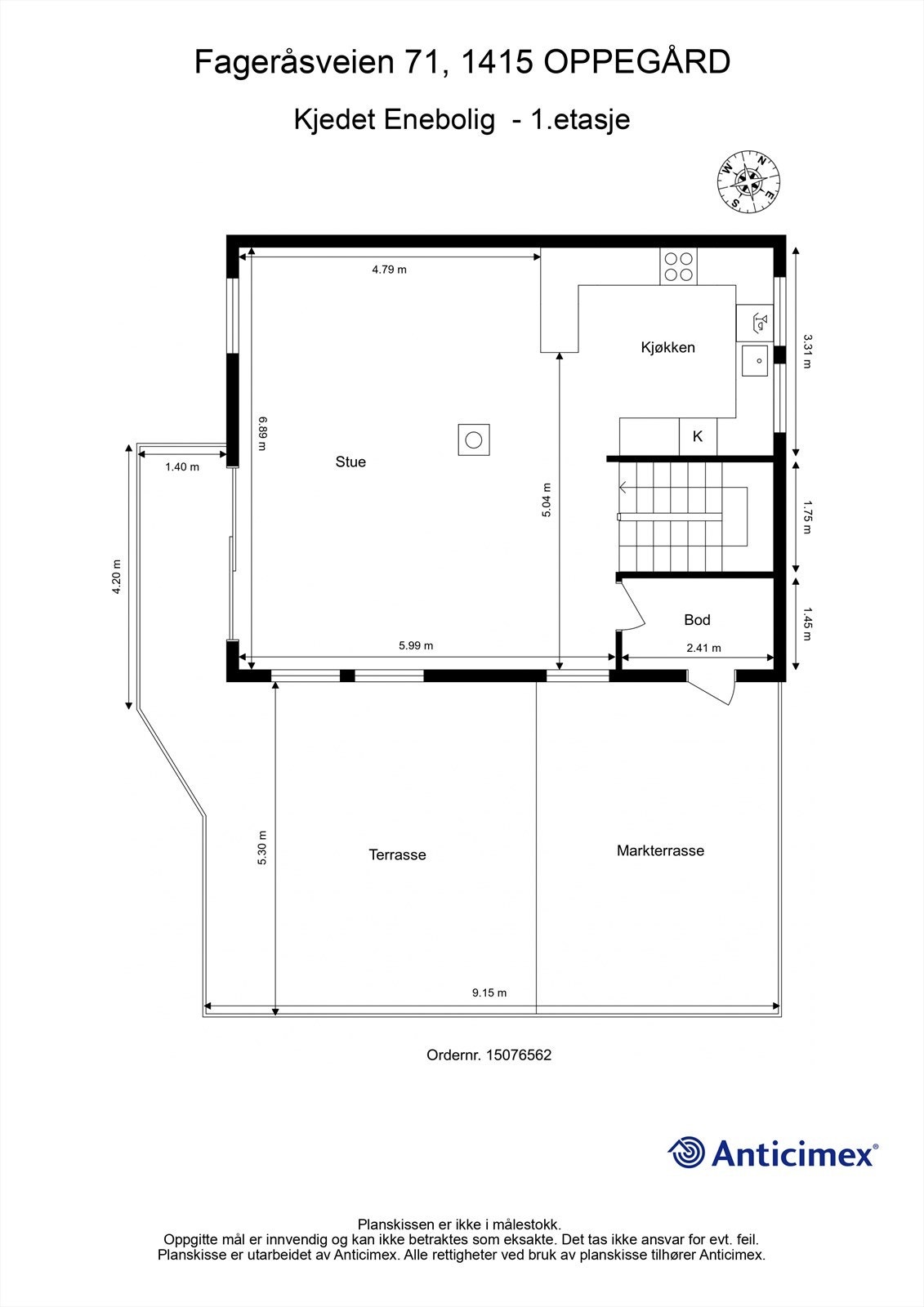
Velkommen til Fageråsveien 71! En innholdsrik og oppgradert kjedet enebolig over tre plan i et stille og rolig nabolag. Området er barnevennlig med kort gangavstand til Greverud skole, barnehager og offentlig transport, noe som gjør hverdagslogistikken enkel. Det er også umiddelbar nærhet til sportsfasiliteter og servicetilbud.
Boligen har en familievennlig planløsning med 3 soverom på samme plan og 2 moderne bad. Første etasje byr på en åpen stue -og kjøkkenløsning med gulvvarme, peisovn og utgang til stor, syd-vestvendt terrasse på 55 kvm. Det stilrene kjøkkenet fra 2021 har integrerte hvitevarer fra Siemens, Liebherr vinskap og Quooker. Innredet loft med soverom (ikke godkjent) og bad. I tillegg finnes elbillader i carporten, varmepumpe (2019) og gode lagringsmuligheter.
Velkommen!
Boligen har en familievennlig planløsning med 3 soverom på samme plan og 2 moderne bad. Første etasje byr på en åpen stue -og kjøkkenløsning med gulvvarme, peisovn og utgang til stor, syd-vestvendt terrasse på 55 kvm. Det stilrene kjøkkenet fra 2021 har integrerte hvitevarer fra Siemens, Liebherr vinskap og Quooker. Innredet loft med soverom (ikke godkjent) og bad. I tillegg finnes elbillader i carporten, varmepumpe (2019) og gode lagringsmuligheter.
Velkommen!
NB: Knappen for å vise hele beskrivelsen har kun en visuell effekt.
NB: Knappen for å vise hele beskrivelsen har kun en visuell effekt.
Salgsoppgaven beskriver vesentlig og lovpålagt informasjon om eiendommen
Se komplett salgsoppgaveNyttige lenker
Nærområdet
Krogsveen Nordstrand
Velkommen til en enklere boligreise.
Annonseinformasjon
| FINN-kode | 432536120 |
|---|---|
| Sist endret | 02. jan. 2026 09:47 |
| Referanse | KR44.25249 |
Annonsene kan være mangelfulle i forhold til lovpålagt opplysningsplikt. Før bindende avtale inngås oppfordres interessenter til å innhente komplett informasjon fra meglerforetaket, selger eller utleier.




























































