Bildegalleri

Velkommen til Hofftunet 12, presentert av Kim Nordtorp v/PrivatMegleren
Hoff / Skøyen
Innbydende 2-roms med stor markterrasse, fornyet baderom (2024) og garasje - Rolig og attraktiv beliggenhet på Hofftunet
Prisantydning6 390 000 kr
Nøkkelinfo
- Boligtype
- Leilighet
- Eieform
- Eier (Selveier)
- Soverom
- 1
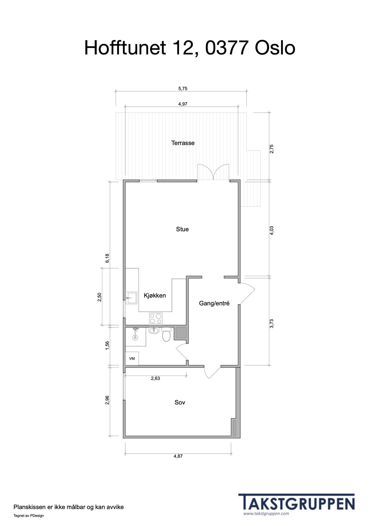
- Internt bruksareal
- 54 m² (BRA-i)
- Bruksareal
- 57 m²
- Eksternt bruksareal
- 3 m² (BRA-e)
- Balkong/Terrasse
- 16 m² (TBA)
- Etasje
- 1
- Byggeår
- 1988
- Tomteareal
- 18 581 m² (eiet)
Fasiliteter
Barnevennlig
Balkong/Terrasse
Garasje/P-plass
Kabel-TV
Offentlig vann/kloakk
Ingen gjenboere
Turterreng
Utsikt
Vaktmester-/vektertjeneste
Sentralt
Bredbåndstilknytning
Moderne
Rolig
Lademulighet
Visning
søndag, 11. januar
16:00 – 16:45
Velkommen til visning!
Alle våre visninger har påmelding. På denne måten sikrer vi at megler har god oversikt og tid til å imøtekomme alle interessenter på beste måte. Dette er veldig verdifullt for boligkjøpere og for oss. Det er enkelt å melde seg på, og du kan like enkelt melde deg av. Kontakt også gjerne megler i forkant av visning dersom du har spørsmål.
Om boligen
Meget delikat og påkostet 2-roms hjørneleilighet med et nydelig, usjenert uteområde og fri utsikt mot grønne omgivelser. Leiligheten ligger i et stille og bilfritt område - en grønn oase midt mellom Smestad og Skøyen. Dette er en av de mest attraktive interne beliggenhetene i sameiet, med utsyn mot vakre Hoff gård og gode solforhold gjennom store deler av dagen.
Leiligheten har en gjennomtenkt og praktisk planløsning med romslig entré, stort soverom, stilrent bad som ble overflateoppusset i 2024, moderne kjøkken fra 2019 og en hyggelig stue med plassbygd bokhylle. Fra stuen er det utgang til en sydøstvendt markterrasse på 16 kvm - en fin forlengelse av boligen i sommerhalvåret.
Kort oppsummert:
. Nydelig, fri utsikt fra stue og terrasse
. Stor, sydøstvendt terrasse på 16 kvm
. Garasjeplass med elbil-lader
. Moderne kjøkken fra 2019
. Overflateoppusset baderom i 2024
. God lagringsplass i to kjellerboder
. Nytt laminatgulv
. Rolig og grønt bomiljø - bilfritt
Velkommen til visning!
Leiligheten har en gjennomtenkt og praktisk planløsning med romslig entré, stort soverom, stilrent bad som ble overflateoppusset i 2024, moderne kjøkken fra 2019 og en hyggelig stue med plassbygd bokhylle. Fra stuen er det utgang til en sydøstvendt markterrasse på 16 kvm - en fin forlengelse av boligen i sommerhalvåret.
Kort oppsummert:
. Nydelig, fri utsikt fra stue og terrasse
. Stor, sydøstvendt terrasse på 16 kvm
. Garasjeplass med elbil-lader
. Moderne kjøkken fra 2019
. Overflateoppusset baderom i 2024
. God lagringsplass i to kjellerboder
. Nytt laminatgulv
. Rolig og grønt bomiljø - bilfritt
Velkommen til visning!
NB: Knappen for å vise hele beskrivelsen har kun en visuell effekt.
NB: Knappen for å vise hele beskrivelsen har kun en visuell effekt.
Salgsoppgaven beskriver vesentlig og lovpålagt informasjon om eiendommen
Se komplett salgsoppgaveNyttige lenker
Nærområdet
PrivatMegleren Bærum
Kun det beste på dine vegne
Annonsene kan være mangelfulle i forhold til lovpålagt opplysningsplikt. Før bindende avtale inngås oppfordres interessenter til å innhente komplett informasjon fra meglerforetaket, selger eller utleier.


































