Bildegalleri

Velkommen til Odd Husbys veg 36 C, presentert av EiendomsMegler 1 v/Ivar Lindrupsen.
Dalgård
SENTRAL OG MODERNE ENEBOLIG OMFATTENDE OPPGRADERT I 2025 | Bad & kjøkken TG 0 | Kort vei til offentlig kommunikasjon
Prisantydning6 490 000 kr
Nøkkelinfo
- Boligtype
- Enebolig
- Eieform
- Selveier
- Soverom
- 3
- Internt bruksareal
- 154 m² (BRA-i)
- Bruksareal
- 154 m²
- Balkong/Terrasse
- 15 m² (TBA)
- Byggeår
- 1955
- Energimerking
- F - Gul
- Tomteareal
- 996 m² (eiet)
Visning
torsdag, 04. juni
17:00 – 17:30
Våre visninger har påmelding. Dette gjør vi for å kunne yte bedre service for våre kunder. Verdifullt for boligkjøper og for oss. Vi anbefaler at salgsoppgaven lastes ned digitalt før visning, og ring oss gjerne på forhånd for spørsmål om boligen. Passer ikke angitt tidspunkt, ta kontakt så finner vi en løsning. Skulle det mot formodning ikke være påmeldte til angitt visningstidspunkt vil ikke visning bli gjennomført.
Om boligen
Velkommen til Odd Husbys veg 36 C, presentert av EiendomsMegler 1 v/Ivar Lindrupsen.
En sentralt beliggende enebolig på Dalgård med kort vei til de fleste servicefunksjoner og bymarka. Huset har vært gjennom omfattende oppussing i løpet av det siste året, der flere byggetekniske deler fremstår som nytt.
Av kvaliteter vil jeg trekke frem følgende:
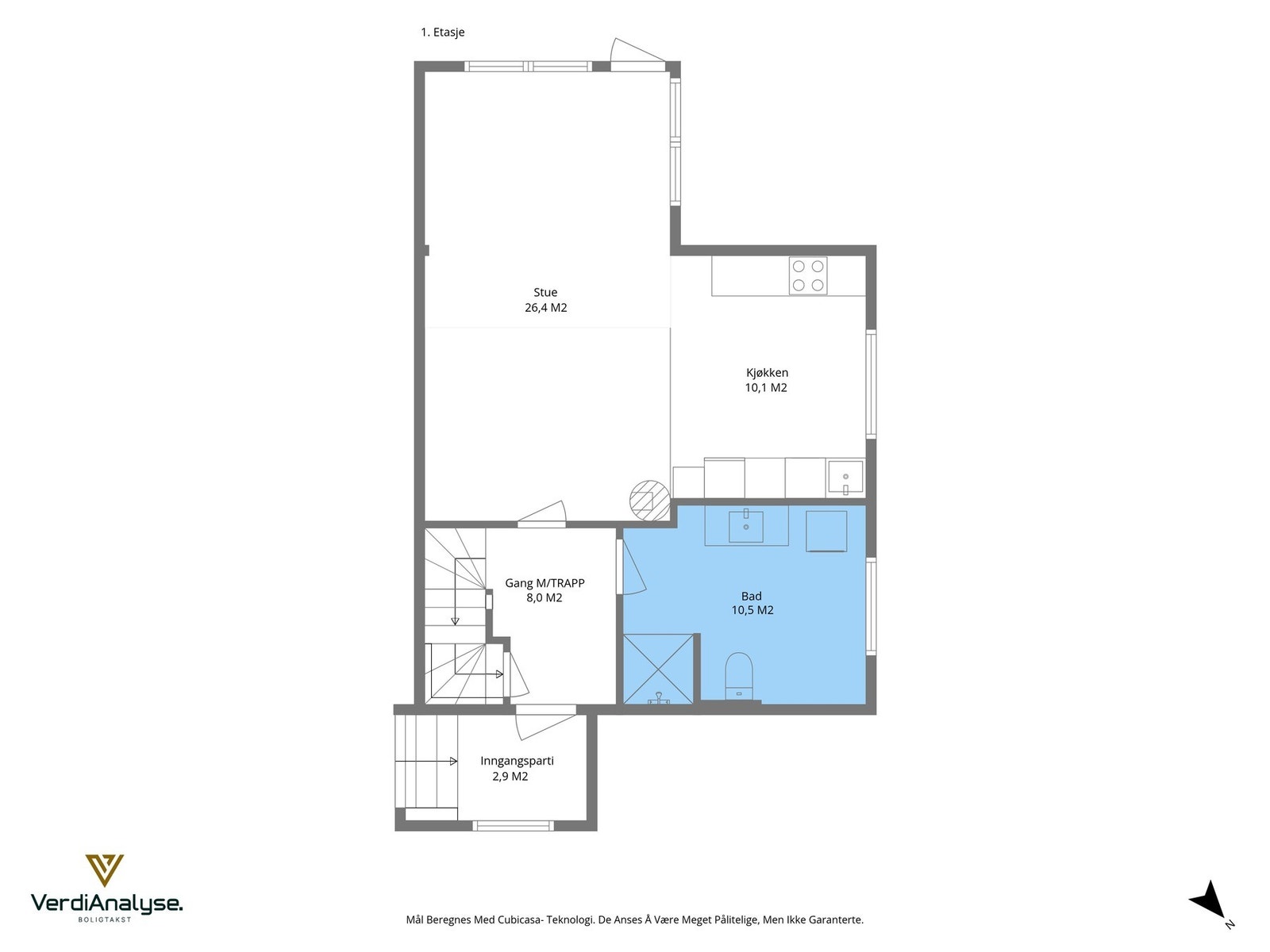
- Eneboligen i sin helhet har et internt bruksareal på 154 m2
- Tre romslige soverom på hhv. 10 m2, 16 m2 og 7,2 m2.
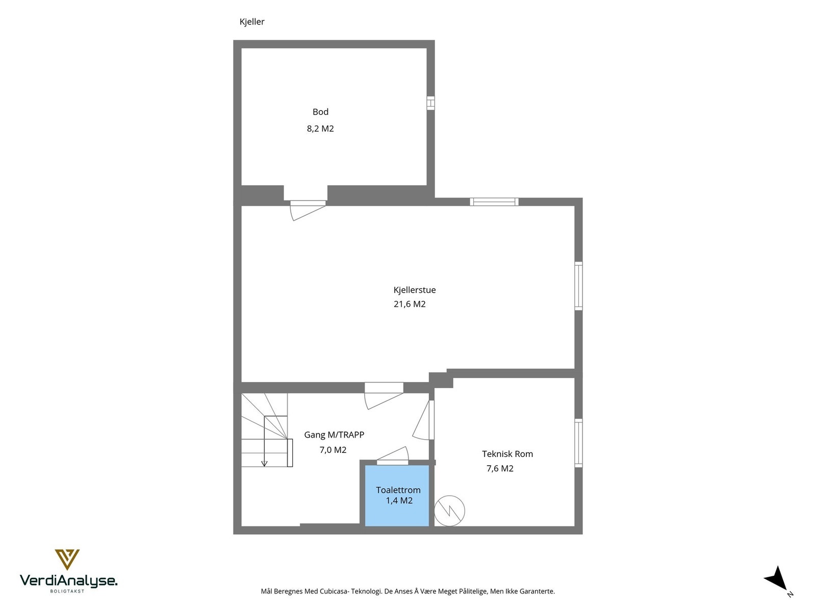
- To stuer på hhv. 26,4 m2 og 21,6 m2
- Lekkert kjøkken fra 2025 med integrerte hvitevarer
- Stort, nyoppusset familiebad på hele 10,5 m2
- Romslig, innvendig bod på 8,2 m2
- Ny enstavs parkett på kjøkken, stue og kjeller i 2025
- Vesentlig oppgradert rør- og el-system i 2025
- Drenering og isolert grunnmur i 2025
- Stor takterrasse på 12,4 m2 med gode solforhold
Last ned salgsoppgaven for nærmere informasjon!
Velkommen på visning!
En sentralt beliggende enebolig på Dalgård med kort vei til de fleste servicefunksjoner og bymarka. Huset har vært gjennom omfattende oppussing i løpet av det siste året, der flere byggetekniske deler fremstår som nytt.
Av kvaliteter vil jeg trekke frem følgende:
- Eneboligen i sin helhet har et internt bruksareal på 154 m2
- Tre romslige soverom på hhv. 10 m2, 16 m2 og 7,2 m2.
- To stuer på hhv. 26,4 m2 og 21,6 m2
- Lekkert kjøkken fra 2025 med integrerte hvitevarer
- Stort, nyoppusset familiebad på hele 10,5 m2
- Romslig, innvendig bod på 8,2 m2
- Ny enstavs parkett på kjøkken, stue og kjeller i 2025
- Vesentlig oppgradert rør- og el-system i 2025
- Drenering og isolert grunnmur i 2025
- Stor takterrasse på 12,4 m2 med gode solforhold
Last ned salgsoppgaven for nærmere informasjon!
Velkommen på visning!
NB: Knappen for å vise hele beskrivelsen har kun en visuell effekt.
NB: Knappen for å vise hele beskrivelsen har kun en visuell effekt.
Salgsoppgaven beskriver vesentlig og lovpålagt informasjon om eiendommen
Se komplett salgsoppgaveNyttige lenker
Nærområdet
EiendomsMegler 1 Byåsen
Vi loser deg trygt gjennom hele boligsalget
Annonsene kan være mangelfulle i forhold til lovpålagt opplysningsplikt. Før bindende avtale inngås oppfordres interessenter til å innhente komplett informasjon fra meglerforetaket, selger eller utleier.



































