Bildegalleri

Velkommen til denne flotte leiligheten midt i hjertet av Fredensborg! Foto: Alexander Granlie | @boliggram
FREDENSBORG / VULKAN
Unik og rålekker 2-R i arkitekttegnet bygg fra 2021 - New York inspirert - Fransk balkong - Takterrasse med flott utsikt
Prisantydning6 300 000 kr
Nøkkelinfo
- Boligtype
- Leilighet
- Eieform
- Eier (Selveier)
- Soverom
- 1
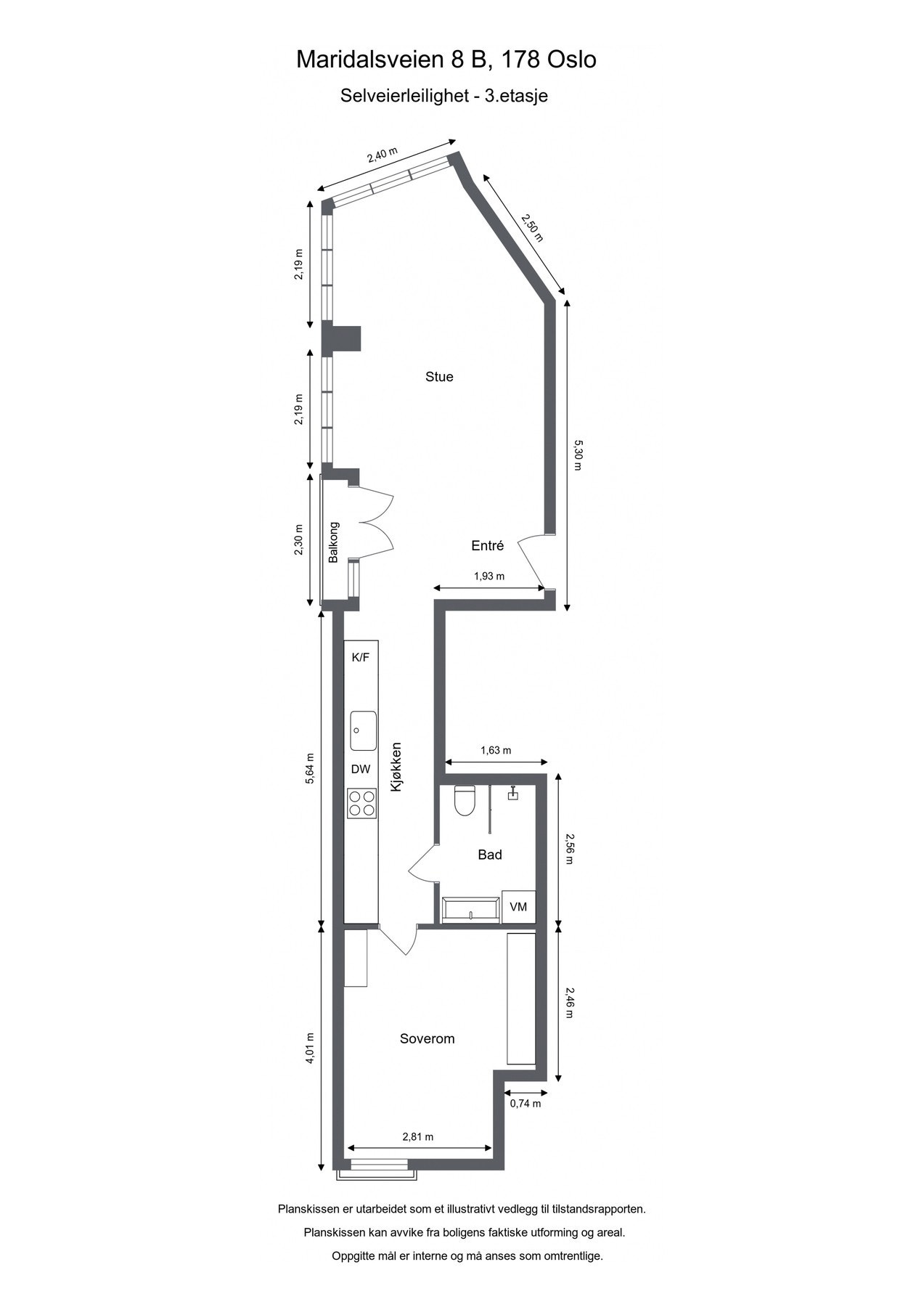
- Internt bruksareal
- 55 m² (BRA-i)
- Bruksareal
- 60 m²
- Eksternt bruksareal
- 5 m² (BRA-e)
- Balkong/Terrasse
- 1 m² (TBA)
- Etasje
- 3
- Byggeår
- 2021
- Energimerking
- B - Mørkegrønn
- Rom
- 2
- Tomteareal
- 257 m² (eiet)
Fasiliteter
Balkong/Terrasse
Heis
Offentlig vann/kloakk
Parkett
Vaktmester-/vektertjeneste
Sentralt
Bredbåndstilknytning
Moderne
Balansert ventilasjon
Om boligen
Velkommen til noe helt unikt - midt i hjertet av Fredensborg!
Dette er en svært innbydende og rålekker 2-roms med topp moderne standard og utsøkt kvalitet på innredninger og overflater. Her får du en deilig kombinasjon av betong og eik, generøs takhøyde og store vindusflater fra gulv til tak som slipper inn rikelig med naturlig dagslys.
I tillegg til god bokomfort er det verdifulle kvaliteter som vannbåren gulvvarme, balansert ventilasjon, heis og felles takterrasse med fantastisk utsikt over byen. Vi kan love deg at du får både hverdagsmagi og godfølelse på kjøpet. Hva mer kan man ønske seg?
- New York inspirert nybygg fra 2021
- Fransk balkong og felles takterrasse med flott utsikt
- Vannbåren varme i gulvene
- Smakfulle og påkostede løsninger
- Fantastisk romfølelse med vinduer fra gulv til tak
- Soverom vendt mot skjermet bakgård
- Enkel adkomst med heis
- Bygården ble nominert til Oslo bys arkitekturpris 2022
- Oppvarming, varmtvann og internett inkludert
- Kun TG1!
Dette er en svært innbydende og rålekker 2-roms med topp moderne standard og utsøkt kvalitet på innredninger og overflater. Her får du en deilig kombinasjon av betong og eik, generøs takhøyde og store vindusflater fra gulv til tak som slipper inn rikelig med naturlig dagslys.
I tillegg til god bokomfort er det verdifulle kvaliteter som vannbåren gulvvarme, balansert ventilasjon, heis og felles takterrasse med fantastisk utsikt over byen. Vi kan love deg at du får både hverdagsmagi og godfølelse på kjøpet. Hva mer kan man ønske seg?
- New York inspirert nybygg fra 2021
- Fransk balkong og felles takterrasse med flott utsikt
- Vannbåren varme i gulvene
- Smakfulle og påkostede løsninger
- Fantastisk romfølelse med vinduer fra gulv til tak
- Soverom vendt mot skjermet bakgård
- Enkel adkomst med heis
- Bygården ble nominert til Oslo bys arkitekturpris 2022
- Oppvarming, varmtvann og internett inkludert
- Kun TG1!
NB: Knappen for å vise hele beskrivelsen har kun en visuell effekt.
NB: Knappen for å vise hele beskrivelsen har kun en visuell effekt.
Salgsoppgaven beskriver vesentlig og lovpålagt informasjon om eiendommen
Se komplett salgsoppgaveNyttige lenker
Nærområdet
EIE eiendomsmegling Ullevål & Sagene
Annonseinformasjon
| FINN-kode | 432375826 |
|---|---|
| Sist endret | 25. jan. 2026 18:08 |
| Referanse | 15251279 |
Annonsene kan være mangelfulle i forhold til lovpålagt opplysningsplikt. Før bindende avtale inngås oppfordres interessenter til å innhente komplett informasjon fra meglerforetaket, selger eller utleier.



































