Bildegalleri

Andreas Valbye ved Eiendomsmegler 1 har gleden av å presentere Konows Gate 82!
Ekebergskrenten
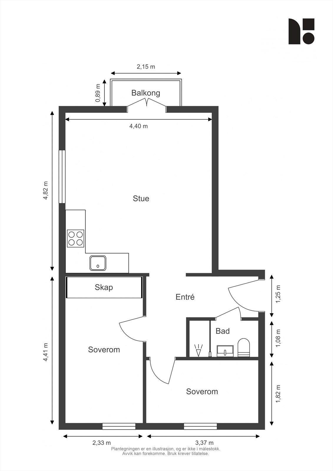
Oppusset 3-roms på 48 m² i Kværnerbyen | Bad og kjøkken fra 2020, vinduer fra 2021 | Nordvestvendt balkong | 3 boder
Prisantydning4 500 000 kr
Nøkkelinfo
- Boligtype
- Leilighet
- Eieform
- Aksje
- Soverom
- 2
- Internt bruksareal
- 48 m² (BRA-i)
- Bruksareal
- 57 m²
- Eksternt bruksareal
- 9 m² (BRA-e)
- Balkong/Terrasse
- 2 m² (TBA)
- Etasje
- 1
- Byggeår
- 1960
- Energimerking
- F - Rød
- Rom
- 3
- Tomteareal
- 564 m² (eiet)
Fasiliteter
Balkong/Terrasse
Barnevennlig
Offentlig vann/kloakk
Rolig
Sentralt
Visning
Vi ønsker på forhånd å vite om du kommer på visning og ber deg ta kontakt for avtale om visning på angitt dag. Dette gjør vi for å kunne yte bedre service til kundene våre.
For visninger utover de annonserte, ta kontakt med megler på telefon 469 10 410.
VisningspåmeldingOm boligen
EiendomsMegler 1 v/Andreas Valbye har gleden av å presentere Konows gate 82!
En pen og moderne 3-roms aksjeleilighet på 48 m² i 1. etasje. Leiligheten har en praktisk planløsning med åpen stue- og kjøkkenløsning, to soverom og et moderne bad. I tillegg har leiligheten en fin nordvestvendt balkong, samt totalt 3 boder for oppbevaring. Området byr på nærhet til dagligvare, kollektivtransport og flotte turområder, noe som gjør dette til en ideell bolig for de fleste.
Kort fortalt:
- Bad og kjøkken pusset opp i 2020, med integrerte hvitevarer
- Vinduer og balkongdør fra 2021
- Nordvestvendt balkong på 2 m²
- God lagringsplass med tre kjellerboder på totalt 9 m²
- Varmekabler på badet
- Mulighet for peis
- Nærbutikk kun 2 minutter unna
- Kort vei til buss.
- Parkeringsplass etter ansiennitet
En pen og moderne 3-roms aksjeleilighet på 48 m² i 1. etasje. Leiligheten har en praktisk planløsning med åpen stue- og kjøkkenløsning, to soverom og et moderne bad. I tillegg har leiligheten en fin nordvestvendt balkong, samt totalt 3 boder for oppbevaring. Området byr på nærhet til dagligvare, kollektivtransport og flotte turområder, noe som gjør dette til en ideell bolig for de fleste.
Kort fortalt:
- Bad og kjøkken pusset opp i 2020, med integrerte hvitevarer
- Vinduer og balkongdør fra 2021
- Nordvestvendt balkong på 2 m²
- God lagringsplass med tre kjellerboder på totalt 9 m²
- Varmekabler på badet
- Mulighet for peis
- Nærbutikk kun 2 minutter unna
- Kort vei til buss.
- Parkeringsplass etter ansiennitet
NB: Knappen for å vise hele beskrivelsen har kun en visuell effekt.
NB: Knappen for å vise hele beskrivelsen har kun en visuell effekt.
Salgsoppgaven beskriver vesentlig og lovpålagt informasjon om eiendommen
Se komplett salgsoppgaveNyttige lenker
Nærområdet
EiendomsMegler 1 Stovner
Vi loser deg trygt gjennom hele boligsalget
Annonseinformasjon
| FINN-kode | 432365827 |
|---|---|
| Sist endret | 11. des. 2025 10:50 |
| Referanse | 3286250439 |
Annonsene kan være mangelfulle i forhold til lovpålagt opplysningsplikt. Før bindende avtale inngås oppfordres interessenter til å innhente komplett informasjon fra meglerforetaket, selger eller utleier.






































